**Standout Features:**
- **Plot Size**: Approximately 0.13 acres, ideal for a family home.
- **Planning Permission**: Full permission granted for a four-bedroom detached family home (Ref: N/105/00097/23).
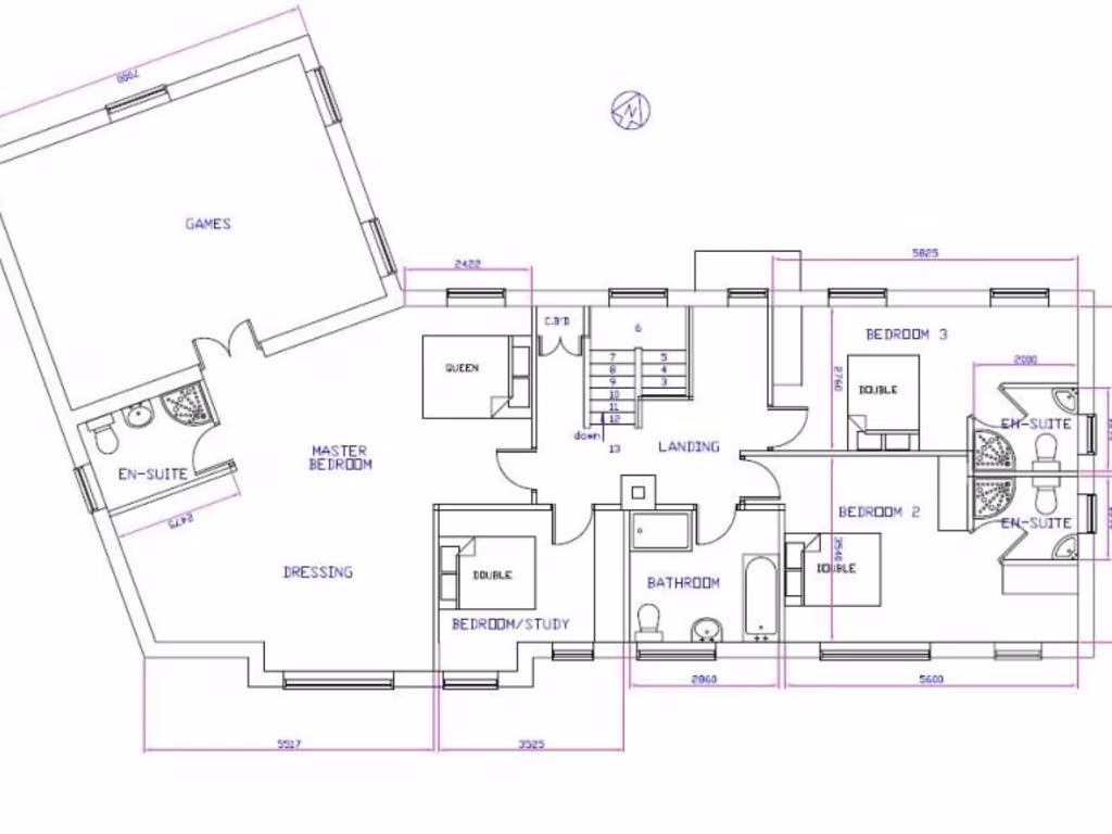
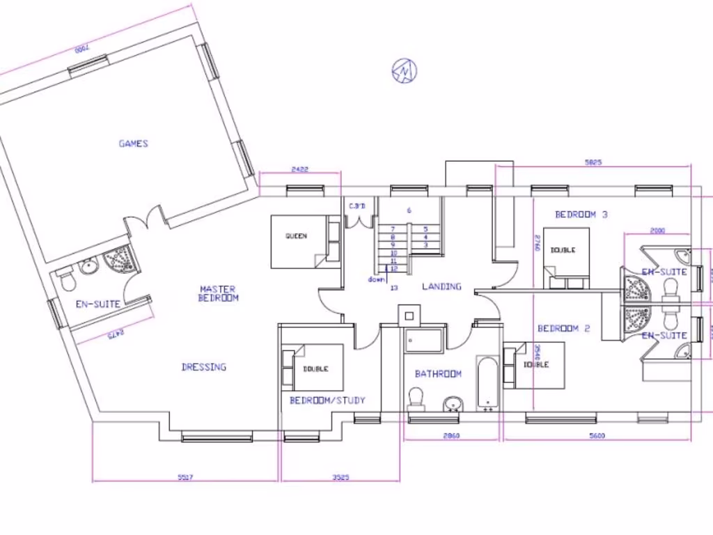
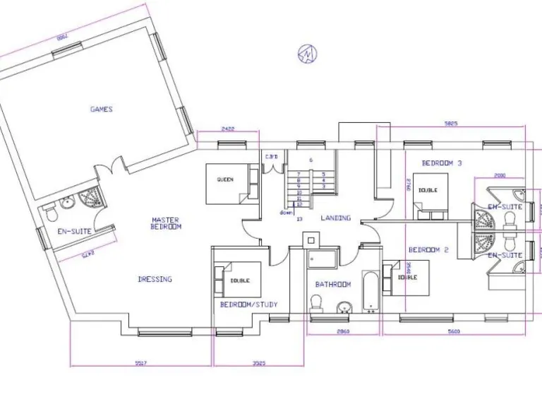
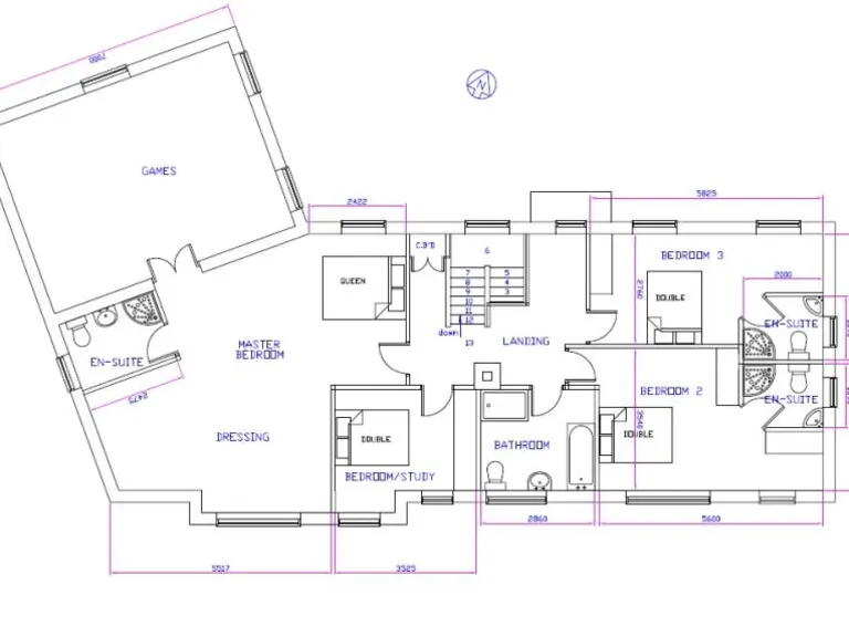
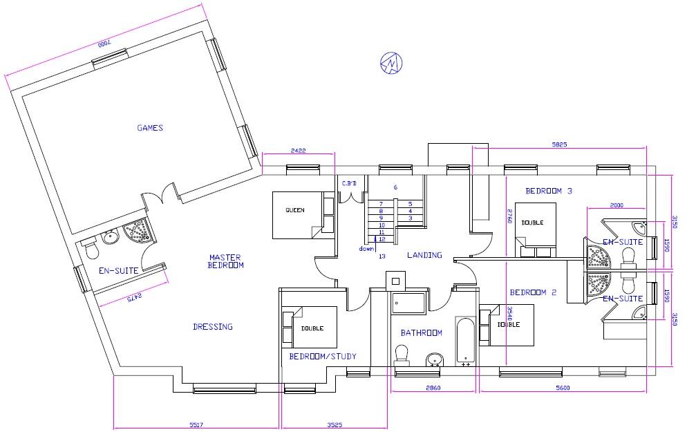
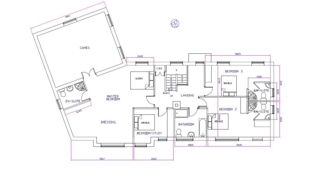
- **Design**: Spacious layout including open-plan kitchen, living/dining area, and a games room.
- **Location**: Sought-after market town of Louth, close to reputable schools and amenities.
- **Tenure**: Freehold.
**Concerns:**
- **Condition**: No insulation; heating provided by wood log room heaters.
- **Broadband**: Currently slow speeds; may affect remote working.
- **Deprivation Level**: The area has a classification indicating outer city hardship.
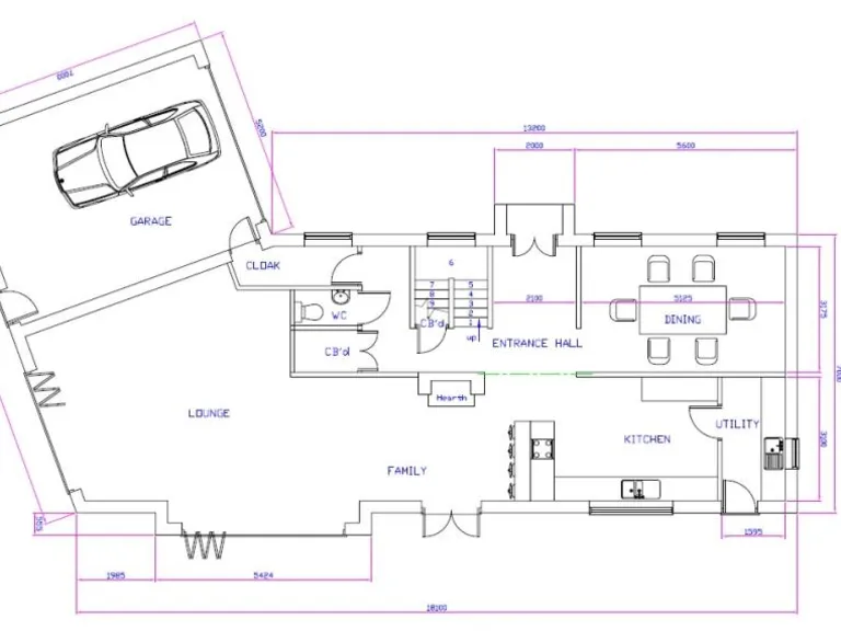
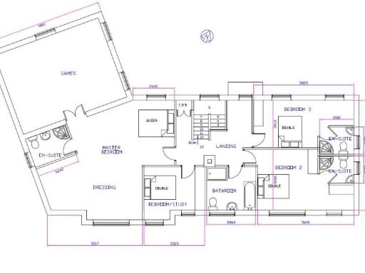
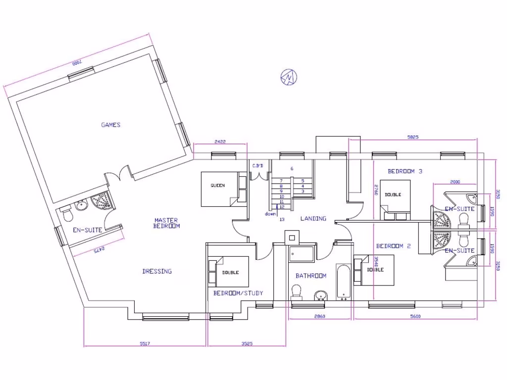
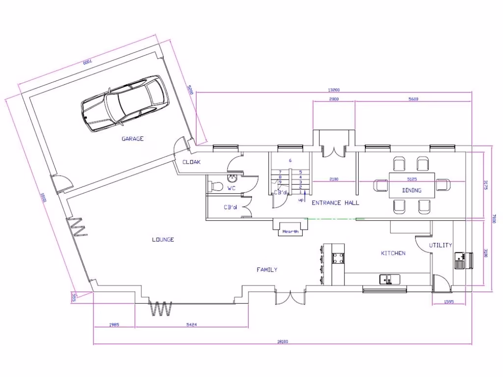
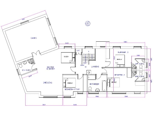
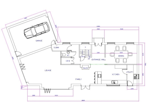
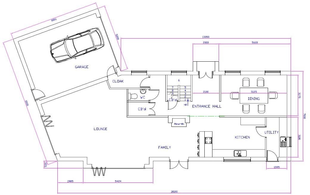
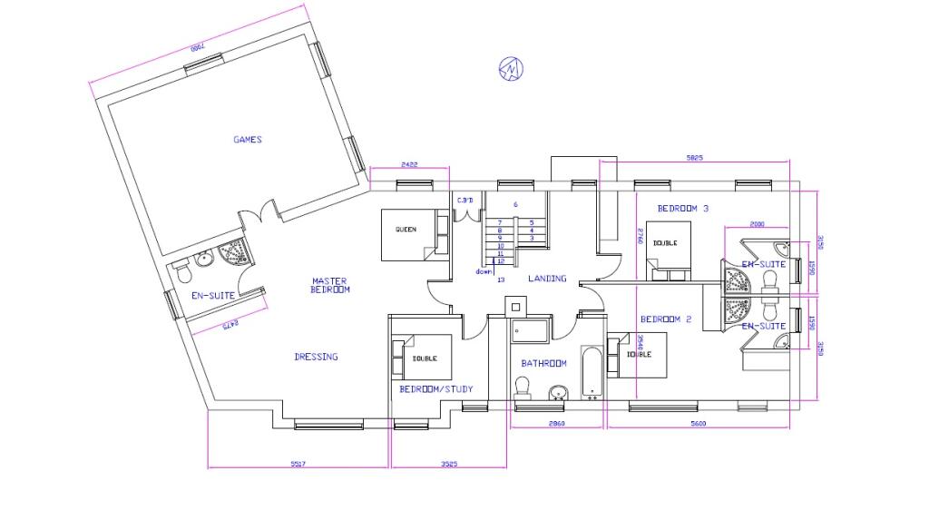
Nestled in the charming market town of Louth, this building plot presents a unique opportunity for families and investors alike, offering full planning permission for an executive four-bedroom detached home. Envision a modern space designed with an entrance hall, cloakroom, open-plan living and kitchen areas, utility room, and luxurious master suite with ensuite and dressing area—all complemented by three additional double bedrooms, two with ensuites. The generous plot, measuring approximately 0.13 acres, comes with the promise of a spacious garage and an inviting games room above.
Families will appreciate the nearby reputable schools, including the Outstanding-rated Louth Kidgate Primary Academy and top-performing secondary options. While the area does exhibit some deprivation indicators, it boasts a rich community spirit and essential amenities like leisure facilities and a local hospital. Don’t miss out on this rare chance to craft your ideal family home in a sought-after location—secure this investment today before it's gone!
Land for sale in Beech Grove, Louth LN11 0BN, LN11 — £50,000 • 1 bed • 1 bath • 892 ft²
Plot for sale in Edward Street, Louth, LN11 — £200,000 • 1 bed • 1 bath • 699 ft²
Plot for sale in St. Marys Lane, Louth, LN11 — £195,000 • 1 bed • 1 bath
Plot for sale in St. Marys Lane, Louth, LN11 — £195,000 • 1 bed • 1 bath
Land for sale in Plot 2 Carlton Road, Manby, LN11 — £100,000 • 5 bed • 1 bath
Land for sale in Land east of Upgate, Louth LN11 9HF, LN11 — £250,000 • 1 bed • 1 bath






























































