**Standout Features:**
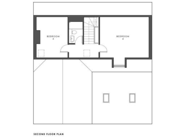
- Large development plot with Full Planning Consent for a detached 5-bedroom, 3-storey home.
- Prime location in the desirable village of Manby, just 5 miles from Louth.
- Excellent access to local amenities including schools, restaurants, and shops.
- Freehold tenure, perfect for developers or self-build projects.
- Additional opportunity to acquire adjacent building plots.
- Planning details from June 16, 2023, ensure a clear path for development.
**Summary Description:**
Discover a unique opportunity to create your dream home in the charming village of Manby with this expansive freehold building plot spanning approximately 0.5 acres. Approved plans are in place for a stylish detached house featuring five bedrooms and a garage, allowing you to envision a perfect family sanctuary amid tranquil rural surroundings. The location combines the peace of countryside living with the conveniences of nearby Louth, making it a prime spot for families and investors alike.
This plot is ideally suited for self-build enthusiasts or developers looking to capitalize on the growing demand for space in rural settings. With excellent local schools, a primary school within walking distance, and a vibrant community close by, this property presents a pathway to both comfortable living and significant investment potential. Don’t miss out on the chance to own a piece of this promising real estate; inquire today, as opportunities like this are sure to attract interest quickly!
Land for sale in Plot 1 Carlton Road, Manby, Louth, LN11 — £100,000 • 5 bed • 1 bath
Land for sale in Plot 3, Carlton Road, Manby, LN11 — £130,000 • 5 bed • 1 bath • 13068 ft²
Land for sale in Beech Grove, Louth LN11 0BN, LN11 — £50,000 • 1 bed • 1 bath • 892 ft²
Plot for sale in Edward Street, Louth, LN11 — £200,000 • 1 bed • 1 bath • 699 ft²
Residential development for sale in Crowtree Lane, Louth, LN11 — £1,000,000 • 1 bed • 1 bath
Plot for sale in Land to the rear of Wheelwrights Cottage, Manby Middlegate, Grimoldby, Louth, Lincolnshire, LN11 — £320,000 • 3 bed • 1 bath


































