Well-positioned plot with clear extension and refurbishment potential.
Vacant freehold two-bedroom end-of-terrace, approx. 778 sq ft
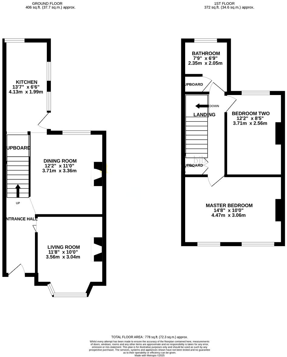
A vacant, freehold two-bedroom end-of-terrace in Stafford offered for sale at online auction. The house provides an entrance hall, lounge, dining room, kitchen, two bedrooms and a first-floor bathroom across approximately 778 sq ft. Externally there is an off-street driveway, a turfed and paved rear garden and a secondary rear garden with storage.
This property is being sold with clear upside for an investor or buyer willing to add value. The plot is a decent size for the area and the rear has potential for multiple extension options (subject to planning). The Victorian/ mid-20th-century character on a residential street gives good curb appeal and scope for improvement.
Practical positives include freehold tenure, vacant possession and fast broadband/excellent mobile signal. Stafford’s transport links and local amenities add rental and resale appeal. The property will be sold at online auction on 18th December 2025; interested buyers should download the legal pack and register to bid beforehand.
Buyers must note material negatives: the wider area is classified as deprived and crime levels are high, which will affect letting prospects and resale comparables. Block viewings are scheduled — bidders should review the legal pack and inspect for any required repairs or modernisation before bidding.
2 bedroom town house for sale in NO. 83, Highfield Grove, Stafford, Staffordshire ST17 9RF, ST17 — £75,000 • 2 bed • 1 bath • 682 ft²
3 bedroom terraced house for sale in 7 Wordsworth Avenue, Highfields, Stafford ST17 9TU, ST17 — £125,000 • 3 bed • 1 bath • 362 ft²
3 bedroom terraced house for sale in 23 Attlee Crescent, Highfields, Stafford, Staffordshire ST17 9RU, ST17 — £125,000 • 3 bed • 1 bath • 354 ft²
2 bedroom terraced house for sale in 17 Pitt Street, Stafford, ST16 1PL, ST16 — £87,000 • 2 bed • 1 bath • 850 ft²
3 bedroom semi-detached house for sale in 97 Merrivale Road, Rising Brook, Stafford, Staffordshire ST17 9EH, ST17 — £127,000 • 3 bed • 1 bath • 323 ft²
2 bedroom terraced house for sale in 22 Pitt Street, Stafford, ST16 1PL, ST16 — £87,000 • 2 bed • 1 bath • 1260 ft²






































































