Cleared coastal plot with full planning for five terraced homes, ready to build..
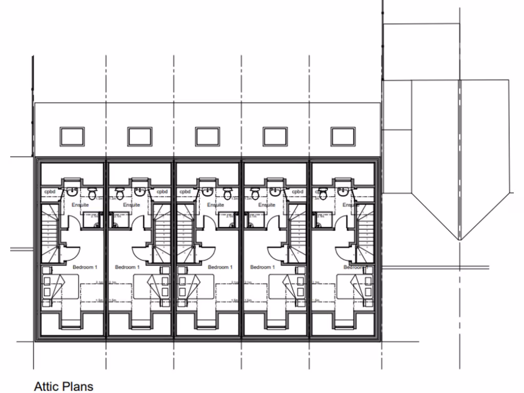
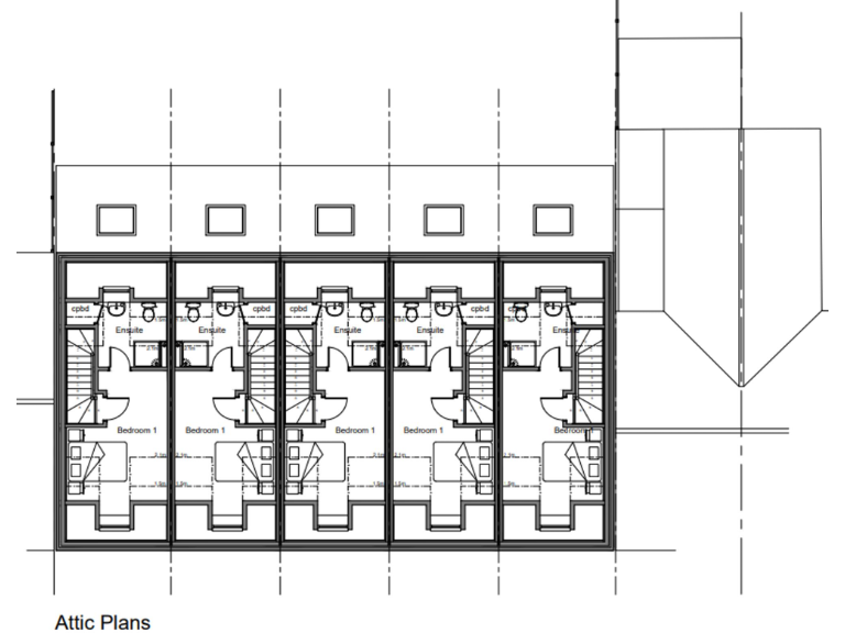
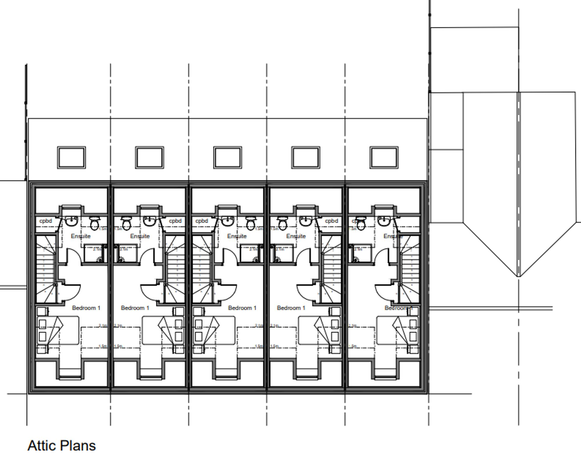
- Full planning for five three-storey terraced dwellings
- Site cleared and ready to build, grant of reserved matters available
- Each dwelling designed as two/three-bedroom with garage parking
- Approximately 10-minute walk to Whitstable station and town centre
- Under 10 minutes’ walk to the beach and harbour amenities
- Small, tightly clustered plot limits private outdoor space
- Existing records note solid brick walls with no insulation assumed
- No flood risk; affluent area with low crime and fast broadband
A rare development opportunity in Whitstable with full planning permission to deliver five three-storey terraced homes. The site is cleared and ready to build, with a grant of reserved matters available, offering a straightforward route to construction and resale or rental in a popular coastal town.
The scheme proposes five two/three-bedroom terraced dwellings arranged over three storeys, each with garage parking. The location is highly convenient: roughly a 10-minute walk to Whitstable station, fast road links to the A299/M2, and under 10 minutes to the beach and town centre amenities. The surrounding area is affluent with low crime and good broadband and mobile coverage — favourable conditions for sales or lettings.
Known constraints are practical: the plot is small and tightly clustered, which limits private outdoor space and may restrict construction logistics. The existing building has been dismantled; some historic structural elements (original walls assumed solid brick with no insulation) are noted in records and should be verified during detailed design. Buyers must allow for full build costs, on-site access management, and standard statutory fees before calculating returns.
This is aimed at developer-investors seeking a near-term build project in a seaside market with strong commuter links. Full planning granted reduces planning risk, but buyers should review the reserved matters grant, build cost estimates, and local procurement options before exchange.
Plot for sale in Joy Lane, Whitstable, CT5 — £1,000,000 • 1 bed • 1 bath • 10354 ft²
3 bedroom terraced house for sale in Canterbury Road, Whitstable, CT5 — £375,000 • 3 bed • 1 bath • 1381 ft²
Residential development for sale in Sea Street, Herne Bay, CT6 8JY, CT6 — £200,000 • 1 bed • 1 bath
Commercial development for sale in North Foreland Road, Broadstairs, CT10 3NT, CT10 — POA • 1 bed • 1 bath • 2153 ft²
Commercial property for sale in Castle Road, Tankerton, Whitstable, CT5 — £750,000 • 2 bed • 2 bath • 2215 ft²
Land for sale in St Leonards Road, Hythe, CT21 — £175,000 • 1 bed • 1 bath • 1362 ft²






























































































