Period charm with modern upgrades and a private courtyard garden.
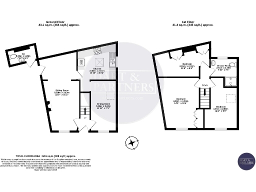
Three-bedroom end-of-terrace in town centre location
This charming three-bedroom end-of-terrace sits in Dawlish’s Old Town, within easy reach of shops, services and transport. The house blends period character—sash windows, feature fireplaces and cob walls—with practical updates including gas central heating, uPVC double glazing and solar photovoltaic panels (buyers should check any third-party agreements).
Living space is arranged over two floors with a sitting room, separate dining room, modern kitchen with skylight, and a useful ground-floor WC/utility. A small, enclosed courtyard garden offers private outdoor space and direct access onto Regent Street. The property is freehold and has an EPC rating of C.
There are some maintenance items to note: the exterior is dated and the property may need attention in places (images suggest possible damp risk in areas). Double glazing was installed before 2002 and the building’s cob construction will benefit from sensitive upkeep. Overall this is a solid town-centre home with scope for cosmetic updating and sensible investment in weatherproofing.
3 bedroom end of terrace house for sale in Brook Street, DAWLISH, Devon, EX7 — £220,000 • 3 bed • 2 bath • 957 ft²
3 bedroom end of terrace house for sale in Badlake Hill, Dawlish, EX7 — £250,000 • 3 bed • 1 bath • 980 ft²
2 bedroom terraced house for sale in Hatcher Street, Dawlish, EX7 — £250,000 • 2 bed • 1 bath • 1210 ft²
5 bedroom terraced house for sale in Barton Crescent, Dawlish, EX7 — £415,000 • 5 bed • 2 bath • 2075 ft²
4 bedroom terraced house for sale in Park Road, Dawlish, EX7 — £260,000 • 4 bed • 1 bath • 998 ft²
3 bedroom end of terrace house for sale in Badlake Hill, Dawlish, EX7 — £250,000 • 3 bed • 1 bath • 1005 ft²






























































