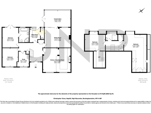
**Standout Features:**
- Four bedrooms plus a study that can serve as a fifth bedroom
- Spacious living with three reception rooms for flexible usage
- Modernized bathrooms: two full baths
- Large garden with lawn, decking, treehouse, greenhouse, and two sheds
- Driveway parking for multiple vehicles
- Stunning countryside views
- Walk-in loft for extra storage or potential development
- Prime location near Naphill Common and local amenities
This inviting detached chalet bungalow, nestled in an affluent locale in Naphill, offers ample living space across approximately 2,262 square feet, making it an ideal family home or investment opportunity with potential rental income of £3,000-£3,500 per month. The property boasts four spacious bedrooms, a dedicated study, and three versatile reception rooms that cater to various lifestyle needs. The bright and airy kitchen-dining area seamlessly integrates with the lovely outdoor spaces, which include a well-kept garden featuring an expansive deck and a charming treehouse, perfect for family gatherings or peaceful retreats.
Enjoy serene countryside views and direct access to the rich natural surroundings of Naphill Common, a haven for nature lovers. The bungalow comes with significant storage options, including a walk-in loft that could offer renovation potential, subject to necessary approvals. Although the property shines with character, it's noted that some areas may need modernization; however, its expansive layout and favorable location make it a rare find in today’s market. Don’t miss this unique opportunity to own a spacious home within a vibrant community, where tranquility meets accessibility.
4 bedroom bungalow for sale in Naphill Common, Naphill, High Wycombe, Buckinghamshire, HP14 — £900,000 • 4 bed • 3 bath • 2155 ft²
3 bedroom bungalow for sale in Cryers Hill, High Wycombe, Buckinghamshire, HP15 — £595,000 • 3 bed • 1 bath • 1372 ft²
5 bedroom bungalow for sale in Four Ashes Road, Cryers Hill, High Wycombe, Buckinghamshire, HP15 — £675,000 • 5 bed • 2 bath • 1827 ft²
3 bedroom bungalow for sale in Hazlemere View, Hazlemere, High Wycombe, HP15 — £585,000 • 3 bed • 1 bath • 1068 ft²
3 bedroom detached bungalow for sale in Purssells Meadow, Naphill, High Wycombe, Buckinghamshire, HP14 — £700,000 • 3 bed • 2 bath • 2003 ft²
5 bedroom bungalow for sale in Cressex Road, High Wycombe, Buckinghamshire, HP12 — £700,000 • 5 bed • 2 bath • 2439 ft²






































































































