Compact low‑maintenance coastal base moments from beach and rail links.
- Sea glimpse and close to Carbis Bay beach and local station
- Private courtyard plus shared communal courtyard space
- Modern fitted kitchen with integrated appliances
- Compact footprint about 428 sq ft; limited living space
- Leasehold with 102 years remaining
- Average service charge approximately £1,600 per year
- Slow broadband speeds; may affect home working and streaming
- No flood risk; mains gas heating and double glazing
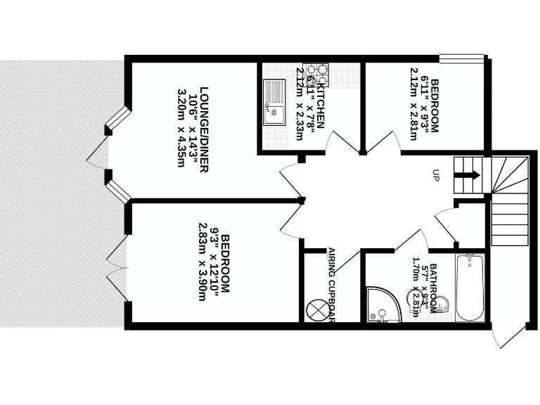
Set on the seaward side of Carbis Bay, this compact two-bedroom apartment offers a useful sea glimpse and easy access to the beach, local station and St Ives. The interior is bright with double-glazed windows and a modern kitchen with integrated appliances, suited to a low-maintenance seaside lifestyle. A private courtyard and communal areas add outdoor space without garden upkeep.
The apartment is modest in size at about 428 sq ft and best suited to downsizers or a second home rather than a family needing lots of living space. It is leasehold with 102 years remaining and an average service charge of £1,600 a year — factor these running costs into budgeting. Broadband speeds are reported slow; streaming or home working may need a specialist provider or solution.
Construction dates place the building in the late 1990s/early 2000s with cavity wall insulation and mains gas central heating via boiler and radiators. There is no flooding risk identified and the area is generally affluent with low crime, making the location reassuring for retirees or those seeking a coastal base. The property will suit someone wanting a turnkey, low-maintenance seaside apartment, but note the limited internal space and ongoing service charge commitment.
2 bedroom apartment for sale in Compass Point, Boskerris Road, Carbis Bay, St. Ives, TR26 — £370,000 • 2 bed • 2 bath • 652 ft²
2 bedroom apartment for sale in Fairfield House, Porthrepta Road, Carbis Bay, TR26 2NZ, TR26 — £360,000 • 2 bed • 2 bath • 667 ft²
2 bedroom apartment for sale in Boskerris Road, Carbis Bay, St. Ives, Cornwall, TR26 — £299,000 • 2 bed • 1 bath • 622 ft²
2 bedroom flat for sale in Apartment close to local amenities, Carbis Bay, TR26 — £145,000 • 2 bed • 1 bath • 375 ft²
2 bedroom apartment for sale in Headland Road, Carbis Bay, St. Ives, Cornwall, TR26 — £550,000 • 2 bed • 2 bath • 1270 ft²
2 bedroom apartment for sale in The Sands, Porthrepta Road, Carbis Bay, St. Ives, TR26 — £395,000 • 2 bed • 2 bath • 709 ft²


























































