Private south-facing plot close to town — ideal single-level living and easy maintenance..
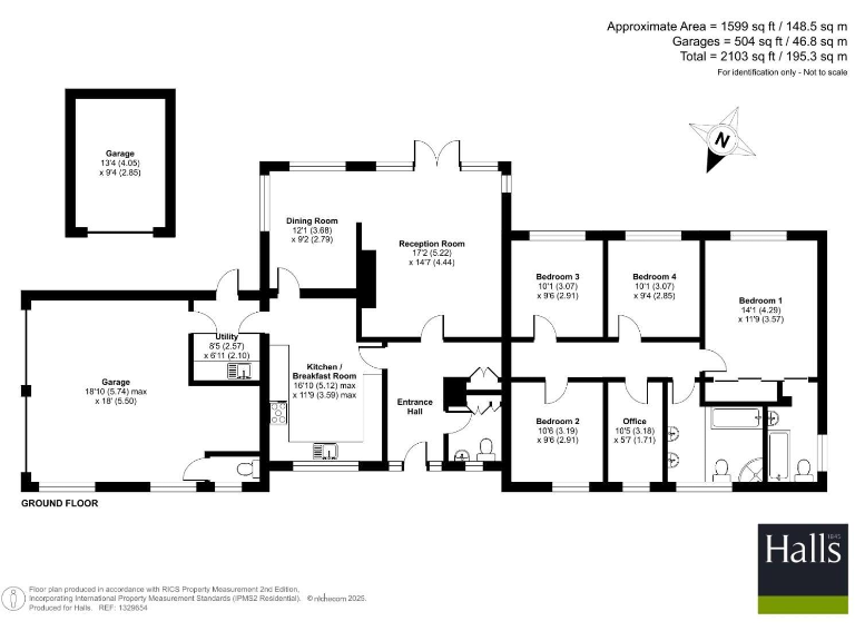
Individually designed four-bedroom detached bungalow, single-level living
A spacious, individually designed four-bedroom bungalow offering single-level living on a generous 0.66-acre plot, close to Newtown town centre. The layout suits someone looking to downsize without compromising on living space: bright reception rooms, a separate study and four good bedrooms, including a principal with ensuite. The south-facing paved patio and wraparound lawn provide private outdoor space designed for low maintenance and entertaining.
Practical strengths include a large twin garage with electric roller doors, separate workshop with WC, modern-style kitchen and utility room with direct garage access. The property is sold with no onward chain and benefits from excellent mobile signal and fast broadband, useful for home working and keeping connected.
Buyers should note some material facts: the house dates from the late 1960s/early 1970s so parts may benefit from updating, the property uses private drainage, glazing install date is unknown, and council tax is in a high band (G). The wider area is classified as having significant deprivation indicators. A viewing is recommended to appreciate the size, plot, privacy and outlook for a downsizing move.
3 bedroom bungalow for sale in Churchill Close, Newtown, Powys, SY16 — £310,000 • 3 bed • 1 bath • 1195 ft²
3 bedroom detached bungalow for sale in Uchel Dre, Kerry, Newtown, SY16 — £385,000 • 3 bed • 2 bath • 1401 ft²
4 bedroom country house for sale in Mill Fields, Milford, Newtown, SY16 — £600,000 • 4 bed • 2 bath • 1892 ft²
3 bedroom detached bungalow for sale in Hillside, Rhallt, Trelydan, Welshpool, SY21 — £499,950 • 3 bed • 3 bath • 1811 ft²
4 bedroom detached house for sale in Woodland Way, Newtown, Powys, SY16 — £295,000 • 4 bed • 3 bath • 1204 ft²
4 bedroom bungalow for sale in Tregynon, Newtown, Powys, SY16 — £435,000 • 4 bed • 1 bath • 3745 ft²






















































































































































