Large, secure two-bedroom retirement apartment close to Bournemouth town centre and seafront..
Large two-bedroom, two-bathroom retirement apartment, one of the development's largest
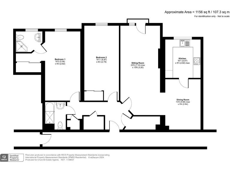
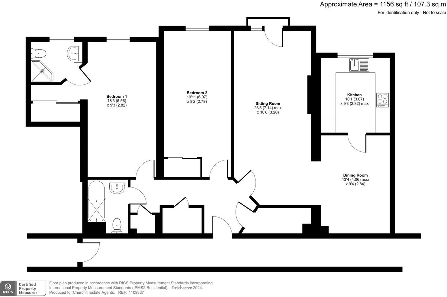
Third-floor, lift-served position with Juliet balcony and separate dining area
Lodge Manager five days a week; regular Owners’ Lounge social events
24-hour Careline, secure entry, intruder and smoke detection systems
Private owners’ car park and Guest Suite available for visitors
Leasehold with about 112 years remaining; service charge £3,617.36 pa
Ground rent £656.08 pa (review due November 2025)
Electric room heaters only — potentially higher running costs; crime above average
This large two-bedroom, two-bathroom third-floor apartment in Osbourne Lodge offers spacious, well-presented accommodation tailored for retirement living. One of the development’s largest two-bed homes, it benefits from a bright living room with a Juliet balcony, separate dining area, built-in wardrobes and three hallway storage cupboards — ready to move into with good decorative order.
The development is designed for peace of mind and sociable living: a Lodge Manager is available five days a week, a 24-hour Careline and intruder/fire systems provide security, and an Owners’ Lounge hosts regular social events. Practical extras include a private owners’ car park, on-site laundry, lift access, and a Guest Suite available to book for visiting family and friends.
Costs and running details are important: the property is leasehold (about 112 years remaining), with an annual service charge of £3,617.36 and ground rent of £656.08 (review due November 2025). Heating is by electric room heaters, which can be more expensive than mains gas. The area has above-average crime statistics, so prospective buyers should factor in personal security and insurance considerations.
Situated under five minutes from the town centre, seafront and transport links, the location suits downsizers who want easy access to shops, culture and regular buses. The apartment will particularly appeal to those who prioritise community, convenience and low-exertion living, while accepting higher service charges and electric heating costs.
2 bedroom retirement property for sale in Osbourne Lodge, Bournemouth, BH2 — £270,000 • 2 bed • 2 bath • 934 ft²
1 bedroom retirement property for sale in Osbourne Lodge, Bournemouth, Dorset, BH2 — £230,000 • 1 bed • 1 bath • 539 ft²
1 bedroom retirement property for sale in Osbourne Lodge, Bournemouth, BH2 — £165,000 • 1 bed • 1 bath • 663 ft²
1 bedroom retirement property for sale in Osbourne Lodge, Bournemouth, BH2 — £199,950 • 1 bed • 1 bath • 527 ft²
1 bedroom retirement property for sale in Osbourne Lodge, Bournemouth, BH2 — £160,000 • 1 bed • 1 bath • 654 ft²
1 bedroom apartment for sale in Osbourne Lodge 4 Poole Road, Bournemouth, BH2 — £160,000 • 1 bed • 1 bath • 341 ft²


























































































