Freehold trade-counter and warehouse near the beach — flexible, vacant, ready for modernisation.
Freehold vacant possession — immediate control for owner or investor
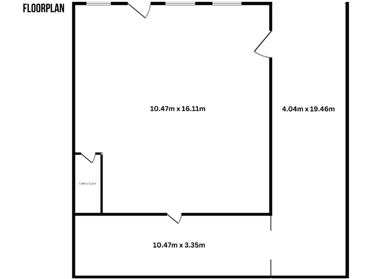
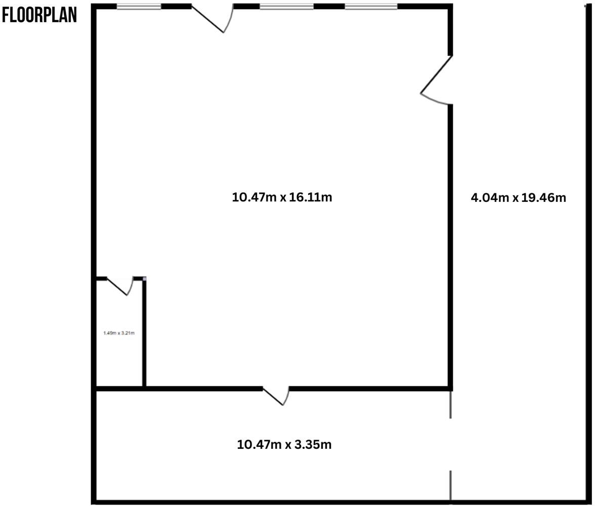
A rare freehold trade-counter and warehouse building in Perranporth, offered with vacant possession. The semi-detached unit sits on Station Road trading estate, close to the beach and within easy reach of the A30 and Truro. On-site parking for four cars, a main open-plan warehouse with a front trade counter, additional stores and a covered area give immediate commercial utility and scope for reconfiguration.
The property is equipped with mains water, drainage and three-phase electricity; the EPC is rated E. Internally the space is industrial in character with exposed brickwork and bare walls — practical but in need of modernisation. The covered adjacent area could be enclosed to increase internal footprint or retained as external storage depending on operational needs.
This suits an owner-occupier wanting a coastal trading location or an investor seeking a flexible asset with conversion potential (offices, more warehousing or mixed-use subject to consents). Note the unit sits on a small plot, broadband speeds are very slow and business rates are being reassessed, which should be checked before purchase.
Light industrial facility for sale in & 4, Station Road Industrial Estate, Perranporth, Cornwall, TR6 0LH, TR6 — £280,000 • 1 bed • 1 bath • 2192 ft²
Property for sale in 4 Boscawen Road, Perranporth, TR6 — £425,000 • 1 bed • 1 bath • 989 ft²
Commercial property for sale in Boscawen Road, Perranporth, Cornwall, TR6 0EW, TR6 — £425,000 • 1 bed • 1 bath • 725 ft²
Commercial property for sale in Commercial Property To Let, TR16 — £33,600 • 1 bed • 1 bath • 4200 ft²
3 bedroom end of terrace house for sale in Wheal Leisure Close, Perranporth, TR6 — £320,000 • 3 bed • 1 bath • 1187 ft²
4 bedroom mixed use property for sale in TR3 — £435,000 • 4 bed • 1 bath • 2535 ft²


















































