Spacious garden and versatile living ideal for growing families.
Extended living room with log burner and built-in shelving
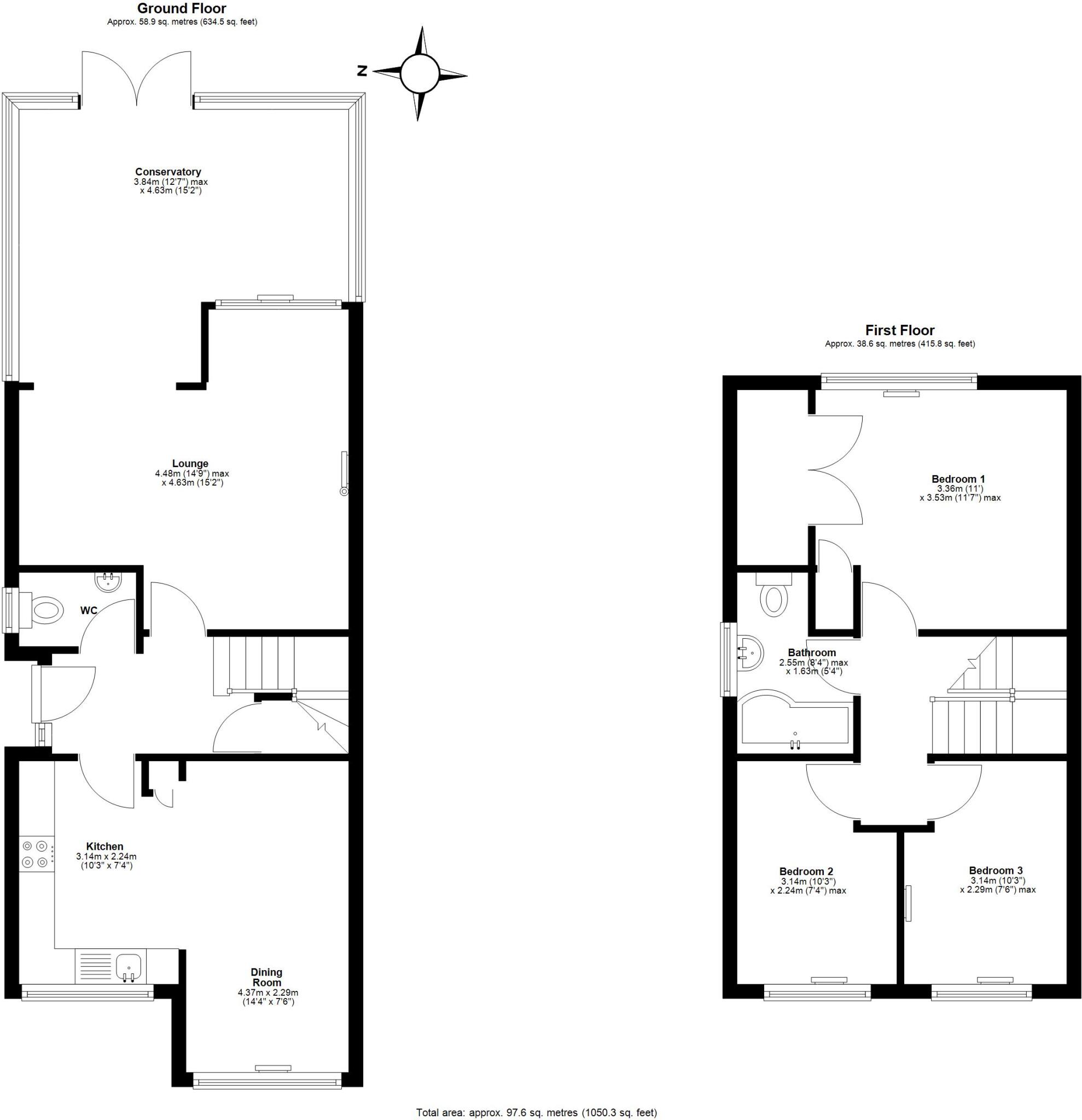
This extended semi-detached home on Somerset Road is arranged over two storeys and suits a growing family seeking outdoor space and versatile living. The ground floor flows from a kitchen into a spacious dining room and a large conservatory, perfect for family meals and play. The extended living room with a log burner creates a cosy focal point for colder evenings.
Upstairs there are three good-sized bedrooms served by a single family bathroom. The standout feature is the rear garden of approximately 96 ft depth — rare for the area and ideal for children, gardening or entertaining. Off-street parking for at least two cars adds everyday convenience.
Practical points to note: the house dates from the early 20th century and has solid brick walls (no known cavity insulation), so buyers should expect some thermal and potential upgrade work. There is only one bathroom and no indication of en-suites. Double glazing was fitted after 2002 and the property runs on mains gas with a boiler and radiators.
Located close to shops, good local schools and amenities, the home offers comfortable family living with scope to modernise and add value. For families who prioritise garden space, flexible reception rooms and parking, this house is worth a viewing.
3 bedroom semi-detached house for sale in Lynchford Road, Farnborough, GU14 — £450,000 • 3 bed • 1 bath • 1140 ft²
3 bedroom house for sale in Southwood Road, Farnborough, GU14 — £475,000 • 3 bed • 2 bath • 1220 ft²
2 bedroom semi-detached house for sale in Winchester Street, Farnborough, GU14 — £400,000 • 2 bed • 1 bath • 669 ft²
3 bedroom semi-detached house for sale in Camberley, Surrey, GU15 — £475,000 • 3 bed • 1 bath • 1152 ft²
2 bedroom semi-detached house for sale in Winchester Street, Farnborough, GU14 — £400,000 • 2 bed • 1 bath • 840 ft²
3 bedroom semi-detached house for sale in Albert Road, Farnborough, Hampshire, GU14 — £450,000 • 3 bed • 2 bath • 1216 ft²






















































































