DE15 0DP - 2 bedroom terraced house for sale in Berry Hedge Lane, Wins…

View on Property Piper

2 bedroom terraced house for sale in Berry Hedge Lane, Winshill, Burton-on-Trent, DE15

Summary - 2 BERRY HEDGE LANE BURTON-ON-TRENT DE15 0DP

2 bed 1 bath Terraced

**Standout Features:**
- Charming Victorian terraced house with a classic brick façade
- Two well-proportioned bedrooms and one bathroom
- Well-presented interior with mid-century modern living space
- Small front garden and rear driveway leading to an enclosed garden
- Conveniently located near amenities and parks in Old Winshill
- Freehold tenure with low council tax

**Potential Concerns:**
- Average room sizes may not suit those needing more space
- Small plot size may limit outdoor activities or gardening options

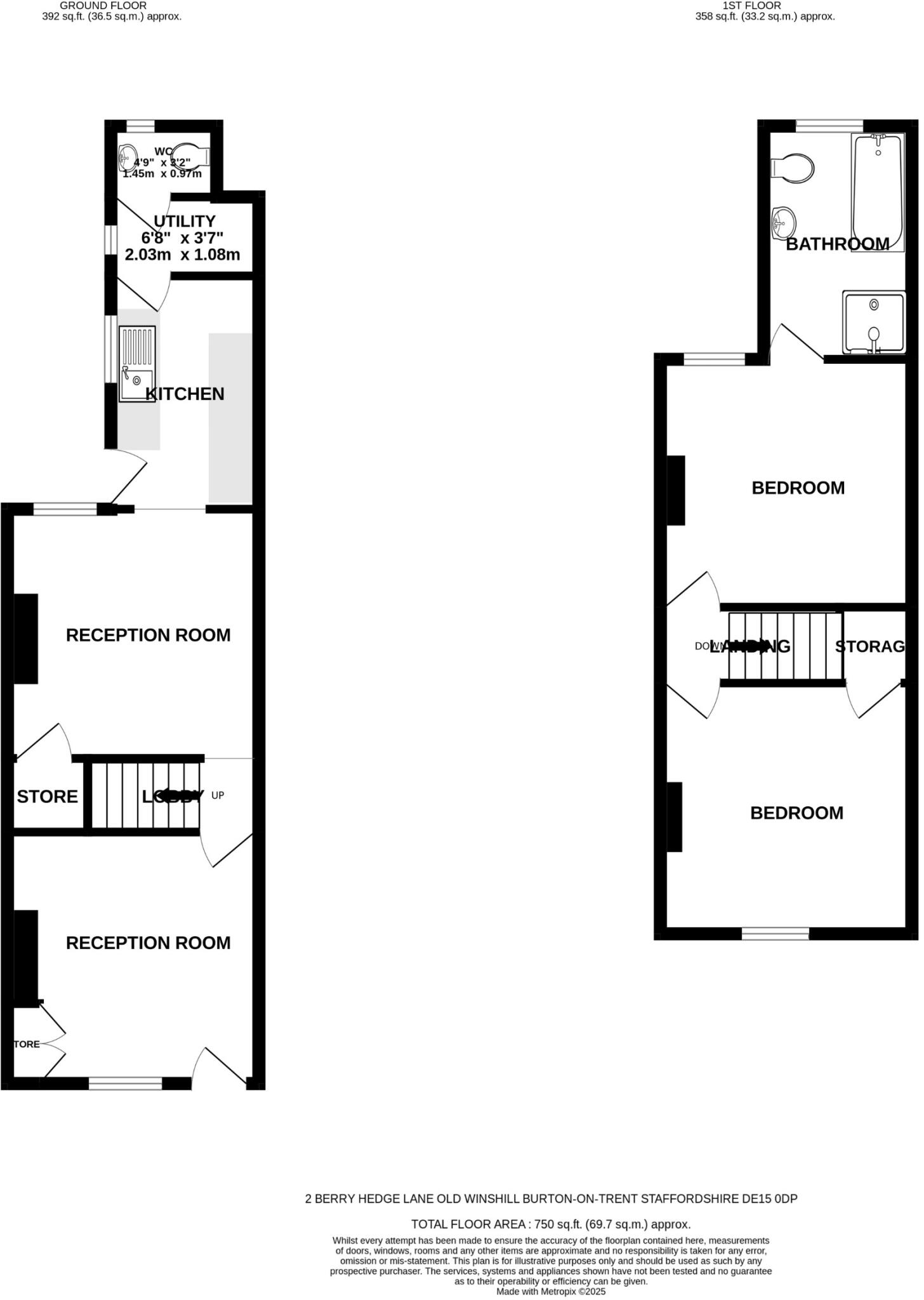
Nestled in the desirable area of Old Winshill, this lovely two-bedroomed terraced cottage offers a delightful mix of character and comfort. The home showcases period features that enhance its charm, complemented by modern conveniences such as UPVC double glazing and gas central heating. Perfect for small families or couples, the layout includes a cozy living room, separate rear sitting room, and a quaint kitchen with a handy utility area.

The property’s front garden provides a pleasant welcome, while the rear driveway offers off-street parking and access to an enclosed outdoor space, perfect for quiet relaxation. With local schools rated “Good” and a low crime rate in the neighborhood, it’s an ideal spot for families looking to settle in a serene suburb. Given its attractive price point of £145,000, viewing is highly recommended to fully appreciate the charm and future potential this home offers. Don't miss out on this gem in a rapidly growing area—schedule your visit today!

Property Details

Brochure Descriptions

Image Descriptions

Floorplan Description

Rooms

Textual Property Features

Detected Visual Features

Nearby Schools

Nearest Bars And Restaurants

,,,,}

Nearest General Shops

,,}

Nearest Grocery shops

,,}

Nearest Supermarkets

,,}

Nearest Religious buildings

,,}

Nearest Medical buildings

,,,}

Nearest Airports

}

Nearest Leisure Facilities

,,,,}

Nearest Tourist attractions

,,}

Nearest Train stations

,,,,}

Nearest Bus stations and stops

,,,,}

Nearest Hotels

,,}

Tags

Local Market Stats

AirBnB Data

Similar Properties

Meta

High Res Images

Compatible Images

Low res Images

Thumbnails

Raw Images

High Res Floorplan Images

Compatible Floorplan Images

Low res Floorplan Images

FloorplanImages Thumbnail

Raw Floorplan Images