DE13 0TP - 3 bed victorian terrace with attic in Craven Street, DE13 0…

View on Property Piper

3 bedroom terraced house for sale in Craven Street, BURTON-ON-TRENT, DE13

Summary - 8 CRAVEN STREET BURTON-ON-TRENT DE13 0TP

3 bed 1 bath Terraced

Ready-to-move two-bedroom home with lawned garden and scope to add a third bedroom.
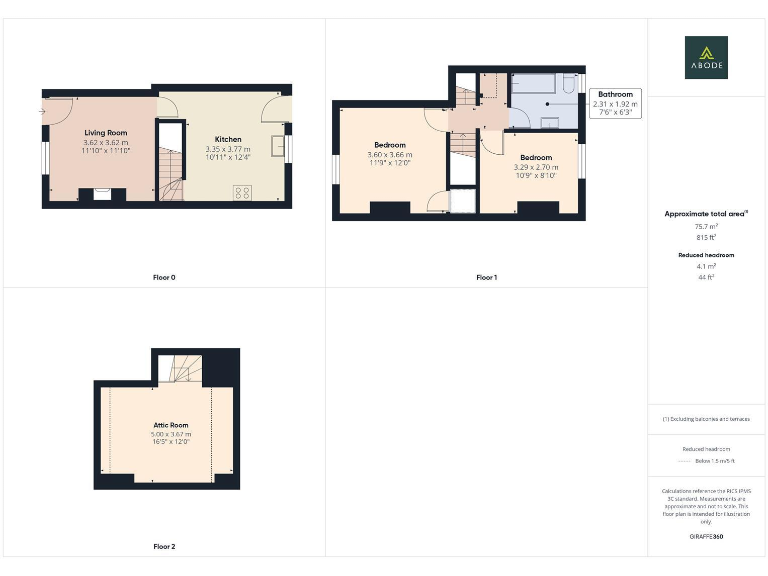
Three-storey mid-terrace with 815 sq ft overall size
This traditional mid-terrace offers practical family living over three floors in a central Burton-on-Trent location. The ground floor provides a separate living room and a kitchen-diner that opens to a lawned rear garden with patio — useful for outdoor entertaining and everyday storage in the rear shed.

Two double bedrooms and a family bathroom sit on the first floor, while a spacious attic room (accessed via a fixed staircase) presents genuine potential for a third bedroom or home office. The property benefits from mains gas central heating, double glazing (fitted post-2002) and a compact 815 sq ft layout that suits first-time buyers or landlords seeking a rentable three-bed unit once altered.

Buyer note: the house is a period build with solid brick walls and is assumed to have no wall insulation; some external and internal maintenance may be needed to modernise finishes. The property sits in a very deprived wider area classification with average local crime and good local amenities and schools nearby. Viewing will show the space and scope on offer.

Property Details

Image Descriptions

Floorplan Description

Rooms

Textual Property Features

Target Audience

AI Tags

Detected Visual Features

EPC Details

Nearby Schools

Nearest Bars And Restaurants

,,,,}

Nearest General Shops

,,}

Nearest Grocery shops

,,}

Nearest Supermarkets

,,}

Nearest Religious buildings

,,}

Nearest Medical buildings

,,,}

Nearest Airports

}

Nearest Leisure Facilities

,,,,}

Nearest Tourist attractions

,,}

Nearest Train stations

,,,,}

Nearest Bus stations and stops

,,,,}

Nearest Hotels

,,}

Tags

Local Market Stats

Similar Properties

Meta

High Res Images

Compatible Images

Low res Images

Thumbnails

Raw Images

High Res Floorplan Images

Compatible Floorplan Images

Low res Floorplan Images

FloorplanImages Thumbnail

Raw Floorplan Images