Spacious, characterful home with balcony and spectacular coastal views.
Converted chapel with high ceilings and arched windows
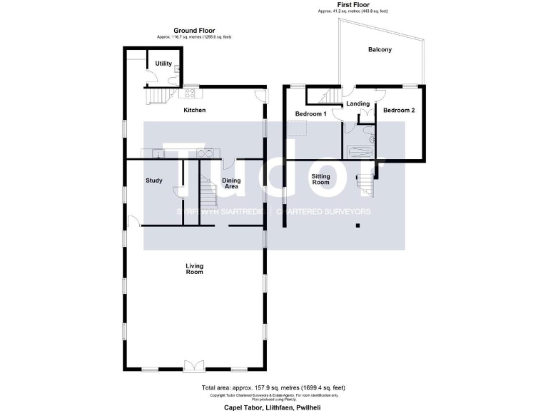
An arresting former chapel converted into a spacious two-bedroom detached home, Capel Tabor combines dramatic ecclesiastical proportions with everyday comforts. The principal living space is vast with high arched windows, a gallery snug and mezzanine dining area that showcase uninterrupted views towards Cardigan Bay and distant mountains. The kitchen-diner is large and characterful, fitted with repurposed pine units and an oil-fired AGA.
Practical features include double glazing (fitted post-2002), a balcony and raised front seating area to enjoy the views, off-street parking for one vehicle and a useful pantry/utility room. The property offers unusually generous internal volume (approximately 1,699 sq ft) for a two-bedroom house and has retained many traditional granite stone features.
Buyers should note some material points: the original granite walls are assumed to be uninsulated, the plot is small with limited outdoor space, and vehicle parking is for one only. Heating arrangements are mixed in the marketing information (oil-fired boiler/AGA and electric storage heaters are both referenced) so purchasers should confirm the current setup and running costs. The village setting is rural with limited local services, and the wider area is described as economically deprived.
This home will suit someone seeking a unique character property with generous interior space and spectacular views rather than extensive outside grounds; a viewing is recommended to appreciate the scale and potential firsthand.
3 bedroom semi-detached house for sale in Morfa Nefyn, Pwllheli LL53 — £275,000 • 3 bed • 2 bath • 1118 ft²
4 bedroom terraced house for sale in Chwilog, Pwllheli, Gwynedd, LL53 — £375,000 • 4 bed • 2 bath • 2277 ft²
2 bedroom house for sale in High Street, Criccieth, LL52 — £250,000 • 2 bed • 1 bath • 1109 ft²
Detached house for sale in Capel Boduan, Boduan, Pwllheli, LL53 — £165,000 • 1 bed • 1 bath • 1567 ft²
5 bedroom detached house for sale in Boduan, Pwllheli, LL53 — £165,000 • 5 bed • 1 bath
Detached house for sale in Capel Engedi, Chwilog, Pwllheli, Gwynedd, LL53 — £99,950 • 1 bed • 1 bath • 1087 ft²






































































































