**Standout Features:**
- Charming Tudor-style semi-detached house built in 1930
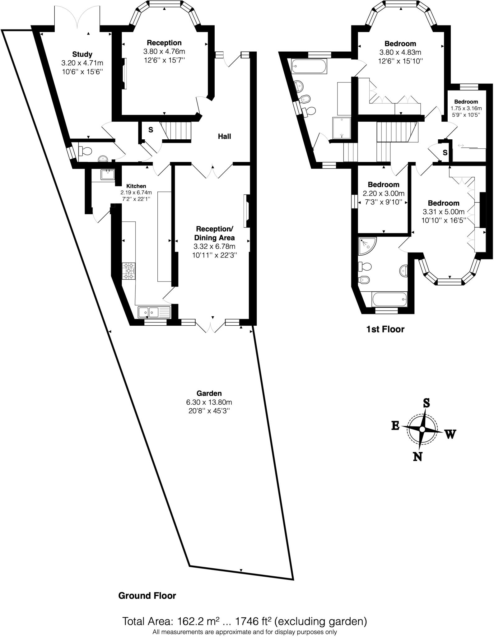
- Spacious layout: 1,764 sq. ft. with 4 generous bedrooms and 2 bathrooms
- Recently renovated with modern kitchen fittings
- Private garden with patio, perfect for relaxation and entertaining
- Off-street parking for three cars
- Situated in a quiet cul-de-sac in desirable Kensal Rise
- Excellent transport links and proximity to local amenities
Nestled in a tranquil cul-de-sac on Egerton Gardens, this beautifully presented Tudor-style semi-detached home combines timeless elegance with modern living. With four spacious bedrooms and two well-appointed bathrooms, this 1,764 sq. ft. gem is ideal for families seeking comfort and space. The tastefully refurbished interiors showcase a blend of original charm—like striking bay windows and warm wooden flooring—with contemporary enhancements in the updated kitchen and dining area, perfect for gatherings. Outside, a mature garden offers a serene escape with ample room for outdoor activities.
Located in the vibrant and family-friendly Kensal Rise, the property benefits from excellent transport links to central London, plus easy access to a vibrant local scene filled with independent shops, cafes, and lush green parks. Nearby, you’ll find outstanding schools, making it not just a home, but a community. The potential for a loft conversion adds an exciting opportunity for future expansion, making it an enticing option for investors and families alike. Don’t miss out on this exceptional opportunity—properties like this in such a sought-after location are rare to find!
 4 bedroom house for sale in Irwin Gardens, London NW10 — £1,750,000 • 4 bed • 1 bath • 1642 ft²
 4 bedroom house for sale in Irwin Gardens, London NW10 — £1,750,000 • 4 bed • 1 bath • 1642 ft² 4 bedroom terraced house for sale in Doyle Gardens, London, NW10 — £1,250,000 • 4 bed • 2 bath • 1492 ft²
 4 bedroom terraced house for sale in Doyle Gardens, London, NW10 — £1,250,000 • 4 bed • 2 bath • 1492 ft² 5 bedroom end of terrace house for sale in Mortimer Road, London, NW10 — £1,350,000 • 5 bed • 2 bath • 1467 ft²
 5 bedroom end of terrace house for sale in Mortimer Road, London, NW10 — £1,350,000 • 5 bed • 2 bath • 1467 ft² 5 bedroom house for sale in Chamberlayne Road, London NW10 — £1,595,000 • 5 bed • 3 bath • 2166 ft²
 5 bedroom house for sale in Chamberlayne Road, London NW10 — £1,595,000 • 5 bed • 3 bath • 2166 ft² 3 bedroom semi-detached house for sale in Wakeman Road, Kensal Rise, NW10 — £1,150,000 • 3 bed • 1 bath • 1363 ft²
 3 bedroom semi-detached house for sale in Wakeman Road, Kensal Rise, NW10 — £1,150,000 • 3 bed • 1 bath • 1363 ft² 5 bedroom house for sale in Chamberlayne Road, Kensal Rise, NW10 — £1,450,000 • 5 bed • 2 bath • 1840 ft²
 5 bedroom house for sale in Chamberlayne Road, Kensal Rise, NW10 — £1,450,000 • 5 bed • 2 bath • 1840 ft²










































