Quiet end-of-street location close to transport and local schools.
Three double bedrooms including large principle suite and en-suite
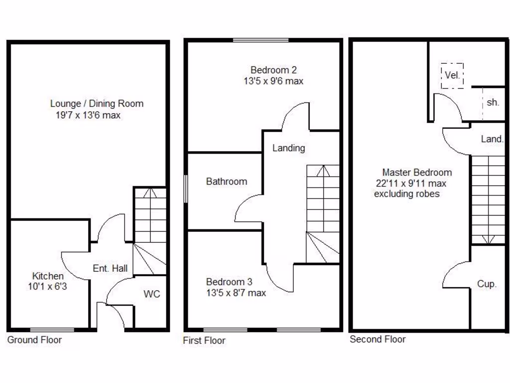
This three-storey end terrace in Kirk Sandall sits at the quiet end of a cul-de-sac and offers practical family living across 801 sq ft. The house has three double bedrooms including a large second-floor principal suite with en-suite, a ground-floor WC, and a generous lounge/diner opening to the rear garden. A driveway and a brick-built garage (part of a block of three) provide off-street parking and storage.
The layout suits commuters and growing families. Kirk Sandall railway station, bus routes, supermarkets and primary schools are all close by. The property benefits from PVC double glazing, gas central heating and fast broadband availability — ready for everyday use while offering room to personalise fixtures and finishes.
Note the property sits on a small plot with modest front and side gardens. Overall internal space is compact compared with larger family homes, and some buyers may want to update cosmetic elements and confirm the boiler age. The garage forms part of a communal block at the rear rather than adjoining the house.
Offered freehold and with very low flood risk, this home is presented for a quick move-in or sensible improvement project. Viewings are recommended to appreciate the layout and light, and to assess suitability for family routines or rental potential.
3 bedroom semi-detached house for sale in Fountains Close, Kirk Sandall, Doncaster, DN3 — £220,000 • 3 bed • 2 bath • 770 ft²
3 bedroom detached house for sale in Ecton Court, Kirk Sandall, Doncaster, DN3 — £225,000 • 3 bed • 2 bath • 979 ft²
3 bedroom semi-detached house for sale in Fountains Close, Kirk Sandall, Doncaster, DN3 — £195,000 • 3 bed • 2 bath • 1174 ft²
3 bedroom semi-detached house for sale in Old School Drive, Doncaster, DN3 — £210,000 • 3 bed • 2 bath • 864 ft²
3 bedroom semi-detached house for sale in Orchard Close, Kirk Sandall, Doncaster, DN3 — £200,000 • 3 bed • 1 bath • 862 ft²
2 bedroom end of terrace house for sale in Astcote Court, Kirk Sandall, Doncaster, DN3 — £180,000 • 2 bed • 1 bath • 571 ft²














































