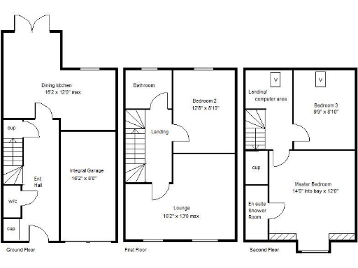
Contemporary 3-bed family home with integral garage and large dining kitchen..
Three bedrooms across three floors, master with en‑suite
Large open dining kitchen with double doors to rear garden
L-shaped first-floor lounge provides flexible living space
Integral single garage plus block‑paved driveway parking
Compact courtyard rear garden, modest for outdoor space
Boiler age not confirmed (buyer to verify)
PVC double glazing and mains gas central heating
Excellent broadband and mobile coverage; very low flood risk
A contemporary three-storey semi-detached house offering practical family living across three floors. The property features a large, open dining kitchen with double doors to a private courtyard-style rear garden, an L-shaped first-floor lounge, and a principal bedroom with en-suite on the top floor. Interiors are neutrally finished and largely move-in ready, with PVC double glazing and gas central heating.
Outside there is an integral single garage, a block-paved driveway plus additional nearby parking/grassed area, making parking straightforward for multiple vehicles. Broadband and mobile coverage are excellent, while local schools, shops and the nearby train station place daily amenities within easy reach.
Notable negatives are the modest overall size and courtyard rear garden typical of town properties, and the boiler age is not stated (age TBC). Measurements are approximate; buyers should verify specifics if exact dimensions or systems' ages are critical. Council tax band C and freehold tenure are confirmed.
3 bedroom end of terrace house for sale in Nunnington Way, Kirk Sandall, Doncaster, DN3 — £190,000 • 3 bed • 2 bath • 801 ft²
3 bedroom town house for sale in Nunnington Way, Kirk Sandall, Doncaster, DN3 — £225,000 • 3 bed • 2 bath • 1120 ft²
3 bedroom detached house for sale in Elizabeth Avenue, Kirk Sandall, DONCASTER, DN3 — £210,000 • 3 bed • 1 bath • 732 ft²
3 bedroom detached house for sale in Thorpe Hall Road, Kirk Sandall, DONCASTER, DN3 — £225,000 • 3 bed • 1 bath • 732 ft²
3 bedroom semi-detached house for sale in Nunnington Way, Kirk Sandall, Doncaster, DN3 — £230,000 • 3 bed • 2 bath • 1052 ft²
3 bedroom detached house for sale in Horton View, Kirk Sandall, Doncaster, DN3 — £250,000 • 3 bed • 2 bath • 1202 ft²


























































































































