Small, ready‑to‑move one-bedroom with parking and a long lease.
Allocated off‑street parking space included
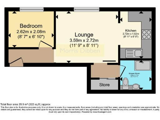
This compact one-bedroom upper-floor flat in Crombie Close offers a straightforward, low-maintenance home or buy-to-let in a well-connected Hampshire suburb. At around 322 sq ft the layout includes a bright lounge, fitted kitchen, double bedroom and bathroom — all ready to move into. Allocated off-street parking and communal lawns add practical appeal for daily living.
The property sits in a purpose-built mid‑20th century brick block with a long lease (approx. 119 years remaining) giving security for buyers. Broadband speeds are fast and mobile signal is excellent, supporting home working and digital convenience. Local shops, buses and good primary and secondary schools are within easy reach, making the location sensible for first-time buyers or investors seeking straightforward rental demand.
Notable costs and constraints are clear: the service charge is relatively high (circa £2,229 pa) and there is a small annual ground rent of £100. The home uses electric room heaters rather than a central gas system and the EPC is shown as D — energy costs may therefore be higher than gas‑heated alternatives. Internally the apartment is small, so it suits single occupancy, couples, or someone prioritising location and low upkeep over generous space.
Overall this flat is a practical, budget‑friendly entry onto the property ladder or a manageable addition to a rental portfolio. Buyers should factor the service charge, electric heating and modest internal size into affordability, yield or lifestyle calculations before viewing.
1 bedroom flat for sale in Crombie Close, Waterlooville, Hampshire, PO8 — £120,000 • 1 bed • 1 bath • 343 ft²
1 bedroom flat for sale in Crombie Close, Waterlooville, Hampshire, PO8 — £120,000 • 1 bed • 1 bath • 307 ft²
1 bedroom flat for sale in Thames Court, Crombie Close, Waterlooville, PO8 — £120,000 • 1 bed • 1 bath • 335 ft²
1 bedroom flat for sale in Cambrai Close, Hilsea, PO3 — £164,000 • 1 bed • 1 bath • 786 ft²
1 bedroom flat for sale in High Street, PORTSMOUTH, Hampshire, PO6 — £135,000 • 1 bed • 1 bath • 578 ft²
1 bedroom flat for sale in Freeley Road, Havant, Hampshire, PO9 — £155,000 • 1 bed • 1 bath • 461 ft²


















































