Large Grade 1 arable block with buildings and AOC farmhouse consent.
65.28 acres predominantly Grade 1 arable land
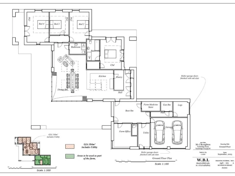
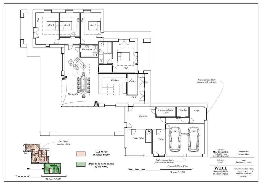
Planning permission for 4-bed farmhouse subject to Agricultural Occupancy Condition
Adaptable modern farm buildings formerly for pig rearing (may need consents)
Large slurry store (480,000 gallon) and concrete manure store on site
Lots B–D have no services connected; mains nearby
Entered into Countryside Stewardship agreement until 31/12/2026
Small areas flagged high surface-water flood risk on mapping
Further adjoining 56.42 acres available by separate negotiation
This is a substantial agricultural opportunity: 65.28 acres of predominantly Grade 1 arable land with an adaptable yard and modern farm buildings. The parcel includes detailed planning permission (ref: 23/02202/FUL) for a contemporary four‑bedroom farmhouse subject to an Agricultural Occupancy Condition (AOC). Several large steel portal-frame buildings, a substantial slurry store and concrete manure store provide an operational footprint for continued farming or alternative agricultural uses (subject to consents).
The site is well located for connectivity to the A303 corridor and local market towns (South Petherton 2 miles, Crewkerne 4 miles). Lot A offers mains three‑phase electricity and a borehole; Lots B, C and D have no connected services although a mains supply is recorded in the adjoining road. The land is currently in arable rotation (maize) and entered into a Countryside Stewardship Mid‑Tier agreement running until 31 December 2026.
Material constraints are clear and important. The planning consent includes an AOC restricting occupation to those working or last working in agriculture/forestry (and certain dependants), limiting open-market residential use. Small areas of Lots A, B and D are identified at higher surface‑water flood risk on government mapping (owner reports no history of flooding). Lots B–D currently lack on-site services and will need connections for most non‑agricultural uses. Buildings were last used for pig rearing and may require refurbishment or specific consents for change of use.
For buyers seeking a productive, ring‑fenced block or an operational farm with development potential, this holding presents scale, Grade 1 soils and immediate infrastructure. There is further adjoining land (56.42 acres) available by separate negotiation to create up to c.121.7 acres. Purchasers should note the AOC, stewardship commitments and service limitations before proceeding.
Land for sale in South Petherton, Crewkerne, TA13 — £595,000 • 1 bed • 1 bath
Land for sale in Somerton, TA11 — £515,000 • 1 bed • 1 bath
Land for sale in Somerton, TA11 — £240,000 • 1 bed • 1 bath
Land for sale in Somerton, TA11 — £2,285,000 • 1 bed • 1 bath
Land for sale in Somerton, TA11 — £450,000 • 1 bed • 1 bath
Land for sale in Somerton, TA11 — £550,000 • 1 bed • 1 bath






















































