**Standout Features:**
- **Historic Character**: Grade II listed former Merchant's House, dating back to 1800 with stunning architectural features.
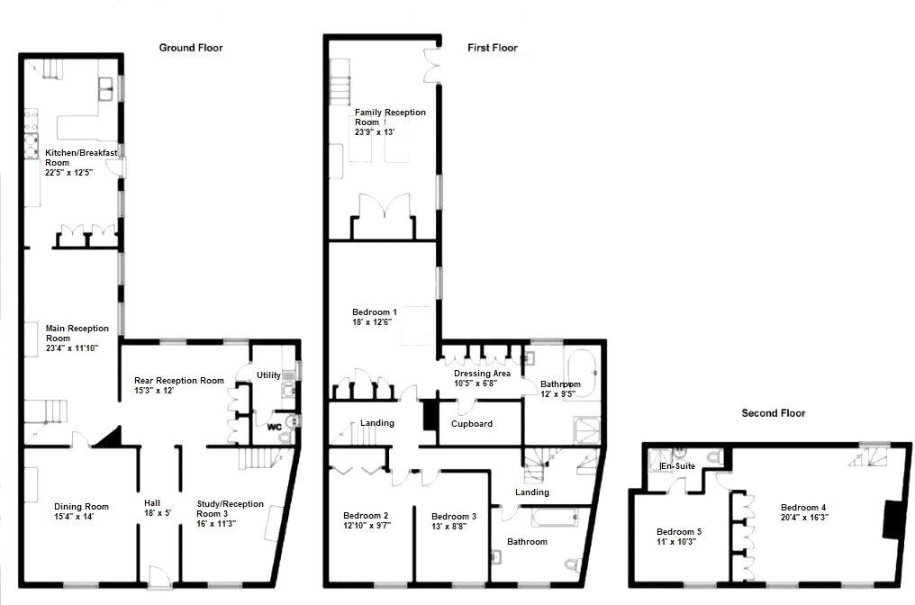
- **Spacious Living**: Five double bedrooms and numerous reception rooms offer ample space for family and entertaining.
- **Outdoor Sanctuary**: Private, sheltered courtyard garden perfect for relaxation.
- **Prime Location**: Quiet setting just a two-minute walk from local amenities, including shops and eateries.
- **Community Feel**: Nestled within the charming town of Ashburton, on the edge of Dartmoor National Park.
**Potential Downsides:**
- **Listed Status**: May present renovation challenges and restrictions.
- **Age and Condition**: As a historic property, it may require ongoing maintenance to preserve its character.
---
Experience the charm and warmth of The Meeting House, a breathtaking Grade II listed property nestled in the heart of Ashburton. With its stunning stone façade and historic significance, this five-bedroom semi-detached home offers an abundance of character and space. The interior boasts features such as beamed ceilings, period fireplaces, and multiple reception rooms, ideal for family gatherings or cozy evenings.
Step outside to the secure courtyard garden—your personal oasis in the bustling town. Just minutes from local conveniences like shops, cafes, and excellent schools, this property combines the best of peaceful living with community spirit. While the property's listed status may present some renovation complexities, its unique charm and location make it a valuable investment for families or those seeking a picturesque retreat. Embrace the opportunity to be a part of Ashburton’s vibrant community while exploring the endless possibilities for personalization in this historic gem. Don't miss your chance; properties like this don't linger on the market long!
5 bedroom semi-detached house for sale in North Street, Ashburton, Devon, TQ13 — £850,000 • 5 bed • 3 bath • 3246 ft²
6 bedroom terraced house for sale in East Street, Ashburton, TQ13 7AX, TQ13 — £625,000 • 6 bed • 1 bath • 2803 ft²
3 bedroom terraced house for sale in East Street, Ashburton, Newton Abbot, TQ13 — £339,950 • 3 bed • 2 bath
5 bedroom end of terrace house for sale in Blogishay Lane, Ashburton, Newton Abbot, Devon, TQ13 — £700,000 • 5 bed • 1 bath • 2334 ft²
3 bedroom terraced house for sale in East Street, Ashburton , TQ13 — £520,000 • 3 bed • 2 bath • 1853 ft²
2 bedroom terraced house for sale in East Street, Ashburton, TQ13 — £359,950 • 2 bed • 1 bath • 1059 ft²










































