Two double bedrooms, garden access, walking distance to stations — leasehold with 72 years remaining.
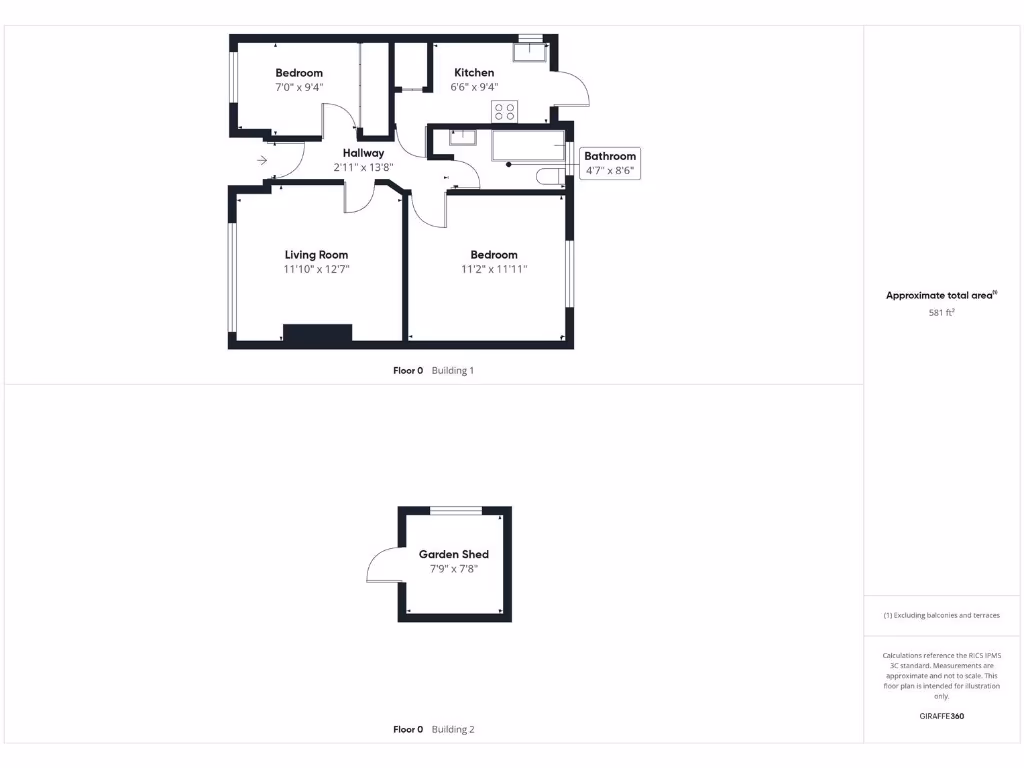
Ground-floor maisonette with private rear garden
A bright ground-floor two-bedroom maisonette in Ruislip with direct access to a private rear garden. The layout includes two double bedrooms, a spacious living room, fitted kitchen and a modern bathroom — presented in neutral, well-kept condition and ready to occupy. Double glazing and gas central heating provide practical, economical comforts.
The location is a key strength: a short walk to Ruislip High Street, Ruislip Gardens and Central Ruislip stations (Central, Metropolitan and Piccadilly lines), local shops, Waitrose and several well-regarded schools. Low crime, fast broadband and excellent mobile signal support everyday convenience and lettability.
Important lease information must be noted: the property is leasehold with 72 years remaining. This is below typical lender preferences and many mortgage providers may refuse to lend unless the lease is extended. Buyers should obtain legal advice and factor potential lease-extension costs and timelines into their offer. Ground rent is modest at £50 per year.
The maisonette’s compact total area and small rear garden suit first-time buyers or buy-to-let investors seeking a low-maintenance home in a well-connected suburban location. Some buyers may see scope for internal modernisation or insulation improvements (solid brick walls assumed uninsulated). Council Tax band C keeps running costs reasonable.
 2 bedroom maisonette for sale in West End Road, Ruislip, HA4 — £350,000 • 2 bed • 1 bath • 512 ft²
 2 bedroom maisonette for sale in West End Road, Ruislip, HA4 — £350,000 • 2 bed • 1 bath • 512 ft² 2 bedroom maisonette for sale in Elm Avenue, Ruislip, HA4 — £365,000 • 2 bed • 1 bath • 523 ft²
 2 bedroom maisonette for sale in Elm Avenue, Ruislip, HA4 — £365,000 • 2 bed • 1 bath • 523 ft² 2 bedroom maisonette for sale in Beechwood Avenue, Ruislip, HA4 — £350,000 • 2 bed • 1 bath • 606 ft²
 2 bedroom maisonette for sale in Beechwood Avenue, Ruislip, HA4 — £350,000 • 2 bed • 1 bath • 606 ft² 2 bedroom flat for sale in Elm Avenue, Ruislip, HA4 — £335,000 • 2 bed • 1 bath • 541 ft²
 2 bedroom flat for sale in Elm Avenue, Ruislip, HA4 — £335,000 • 2 bed • 1 bath • 541 ft² 2 bedroom maisonette for sale in Meadway Gardens, Ruislip, HA4 — £400,000 • 2 bed • 1 bath • 577 ft²
 2 bedroom maisonette for sale in Meadway Gardens, Ruislip, HA4 — £400,000 • 2 bed • 1 bath • 577 ft² 2 bedroom ground floor maisonette for sale in Beechwood Avenue, Ruislip, HA4 — £365,000 • 2 bed • 1 bath • 527 ft²
 2 bedroom ground floor maisonette for sale in Beechwood Avenue, Ruislip, HA4 — £365,000 • 2 bed • 1 bath • 527 ft²






































