Open-plan living with large plot and garage parking for family life.
Upgraded open-plan kitchen/family/dining with French doors to garden
Dual-aspect lounge offering plenty of natural light
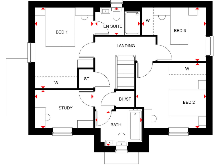
Main bedroom includes an en suite shower room
Three further bedrooms share the family bathroom
Separate utility room and ground-floor WC for practicality
Garage plus two off-street parking spaces included
Huge plot with potential for garden or extension (subject to planning)
Internal area is compact (approx. 854 sq ft); inspect to confirm space
This modern four-bedroom detached home offers adaptable family living with a bright open-plan kitchen/family/dining area that opens to the garden via French doors. The upgraded kitchen and dual-aspect lounge provide comfortable daily living and space for entertaining. A separate utility and ground-floor WC add practical convenience.
Upstairs, the main bedroom benefits from an en suite shower room while three further bedrooms share the family bathroom, making the layout suitable for children or multi-generational use. Room sizes are compact overall, so the internal living area is efficient rather than expansive.
Externally the plot is notable — described as huge — and the property includes a garage plus two parking spaces, offering strong outdoor potential for gardens, play areas or extensions (subject to permissions). The home is a new-build style with modern finishes and excellent local broadband and mobile signal.
Buyers should note the property’s relatively small internal footprint (around 854 sq ft) compared with the large plot, so those seeking very generous interior room sizes should view before committing. Tenure is not specified, and there are no internal photographs supplied here, so a viewing and documentation check are recommended to confirm exact accommodation and specification.
4 bedroom detached house for sale in Ersham Road,
Hailsham,
BN27 3PN, BN27 — £541,995 • 4 bed • 1 bath • 1308 ft²
4 bedroom detached house for sale in Ersham Road,
Hailsham,
BN27 3PN, BN27 — £525,000 • 4 bed • 1 bath • 1339 ft²
4 bedroom detached house for sale in Ersham Road,
Hailsham,
BN27 3PN, BN27 — £544,995 • 4 bed • 1 bath • 1330 ft²
3 bedroom detached house for sale in Ersham Road,
Hailsham,
BN27 3PN, BN27 — £414,995 • 3 bed • 1 bath • 807 ft²
4 bedroom detached house for sale in Ersham Road,
Hailsham,
BN27 3PN, BN27 — £480,000 • 4 bed • 1 bath • 854 ft²
4 bedroom detached house for sale in Ersham Road,
Hailsham,
BN27 3PN, BN27 — £532,500 • 4 bed • 1 bath • 1228 ft²














































