Let property with strong yield for cash buyers seeking a renovation project.
Let at £525 pcm (£6,300 pa), immediate income
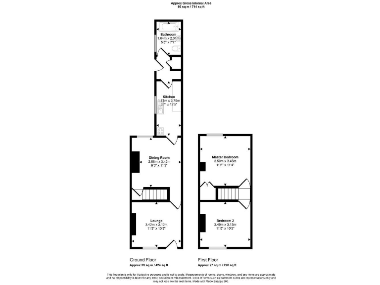
Offered at auction with a sitting tenant, this Victorian end-terrace is presented as a straightforward investment with immediate income. The property is let at £525 pcm (£6,300 pa), giving a guide-price yield of about 9.6% before costs. Accommodation is simple and functional: lounge, dining room, kitchen and bathroom to the ground floor, two bedrooms above and a small yard to the rear.
The house requires refurbishment and is being sold without an internal inspection by the auctioneer; buyers should budget for renovation and obtain the legal pack. It’s freehold and compact at around 714 sq ft, making it suitable for short-term refurbishment to improve rental value or hold as a low-maintenance income let. Mobile signal and broadband are both strong in this area.
Location offers practical advantages: close to local shops, fast food and leisure amenities, and within reach of several schools rated Good or independent options. Note the property sits in a very deprived area with a high local crime rate and a very small plot — factors that will affect tenant demand and resale. No flood risk is recorded.
Auction particulars are important: an unconditional lot with a 10% deposit on the fall of the hammer (minimum £5,000) and a Buyers Administration Fee of £1,200 + VAT; contracts exchange immediately and completion is required 28 days later. Prospective buyers should review the legal pack and factor additional fees and renovation costs into their offer.
2 bedroom terraced house for sale in 11 Lindley Street, Stoke-on-Trent, Staffordshire, ST6 2DW, ST6 — £20,000 • 2 bed • 1 bath • 778 ft²
2 bedroom terraced house for sale in 5 Lindley Street, Stoke-On-Trent, Staffordshire ST6 2DW, ST6 — £16,000 • 2 bed • 1 bath • 764 ft²
2 bedroom end of terrace house for sale in Fell Street, Stoke-On-Trent, ST6 1JT, ST6 — £86,000 • 2 bed • 1 bath • 786 ft²
2 bedroom terraced house for sale in 54 Lowther Street, Stoke-on-Trent, Staffordshire, ST1 5JF, ST1 — £20,000 • 2 bed • 1 bath
2 bedroom terraced house for sale in Adkins Street, Stoke-on-Trent, ST6 — £25,000 • 2 bed • 1 bath • 736 ft²
2 bedroom terraced house for sale in Adkins Street, Cobridge, Stoke-on-Trent, ST6 — £55,000 • 2 bed • 1 bath • 588 ft²






































