Generous garden, sun room and garage near Tain town centre and amenities.
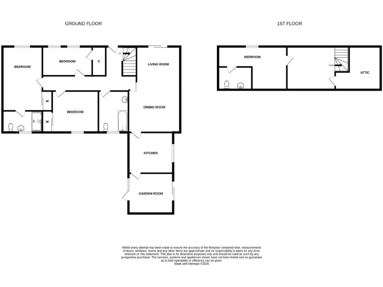
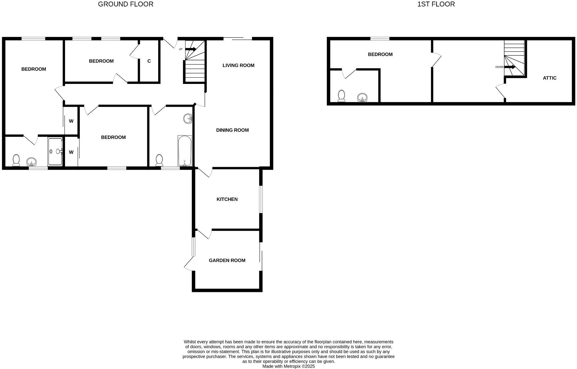
- Four bedrooms and three bathrooms across a multi-story layout
- Large, private gardens in three distinct areas with mature trees
- Sunny sun room plus sheltered deck and private paved courtyard
- Detached garage and generous off-street parking for multiple cars
- Fast broadband; average mobile signal suitable for home working
- £6,000 below valuation — immediate value opportunity
- Mid-20th-century fittings; property requires updating/modernisation
- Located in quiet cul-de-sac, short walk to Tain High Street
Set at the end of a quiet cul-de-sac in Tain, this four-bedroom freehold home sits on a generous plot with three distinct outdoor areas. The property includes a sunny sun room that opens to a private paved courtyard plus a sheltered deck ideal for outdoor dining. A detached garage and a wide gravel drive provide substantial parking for family vehicles or guests.
Internally the layout gives flexible family living across multiple levels — a large living/dining room, kitchen/diner and a useful sun room alongside four bedrooms and three bathrooms. The house benefits from fast broadband, average mobile signal and easy walking access to Tain High Street, supermarkets and local services, making it practical for daily life and commuting to Inverness by rail.
There is clear scope to modernise and personalise: the property shows mid-20th-century exterior and fittings in places, so buyers should expect renovation or updating to achieve contemporary finishes. The overall footprint and room sizes deliver strong potential for extension or reconfiguration subject to planning.
Important practical points: the home is freehold with no flood risk and sits in a largely rural area with limited local employment choice. Broadband is fast but the wider area scores as very deprived, which may affect longer-term resale prospects for some buyers.
4 bedroom detached house for sale in Moss Road, Tain, IV19 — £300,000 • 4 bed • 2 bath • 926 ft²
2 bedroom end of terrace house for sale in 13 Ross St, Tain, Ross-Shire, IV19 1BA, IV19 — £115,000 • 2 bed • 1 bath • 747 ft²
3 bedroom detached bungalow for sale in 8 Culpleasant Ave, Tain, Ross-Shire, IV19 1JS, IV19 — £255,000 • 3 bed • 2 bath • 1170 ft²
3 bedroom detached bungalow for sale in Ard Shonas, 1 Lower Tullich, Delny, Invergordon, Ross-Shire, IV18 0NW, IV18 — £199,000 • 3 bed • 1 bath • 1041 ft²
3 bedroom detached bungalow for sale in St. Catherines Cross, Fearn, IV20 1RS, IV20 — £305,000 • 3 bed • 2 bath • 1313 ft²
4 bedroom bungalow for sale in Fairview Fearn, Tain, Ross and Cromarty, IV20 1XH, IV20 — £330,000 • 4 bed • 2 bath • 1410 ft²






























































































































































































