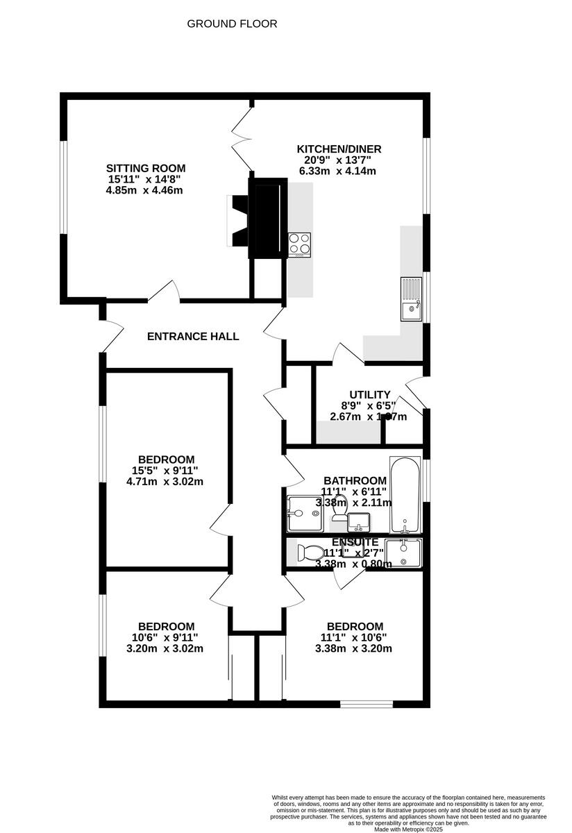
**Standout Features:**
- Three spacious bedrooms, including an en-suite
- Modern glossy white kitchen with appliances
- Full-size bathroom with separate bath and shower
- Detached garage, summer house, and greenhouse
- Oil-fired central heating and PVC double glazing
- Bright sitting room with wood-burning stove
- Ample parking with a large driveway for multiple vehicles
- Peaceful rural location near Tain and local beaches
- Chain-free, freehold property
This charming mid-20th century detached bungalow boasts expansive living spaces and delightful outdoor areas, offering a perfect retreat for families or investors. The bright sitting room, illuminated by a large bay window, features a cozy wood-burning stove ideal for creating a warm atmosphere. The modern kitchen is the heart of the home, and the separate utility room enhances practical living. With three generous bedrooms, including a primary suite that offers a private en-suite, this property combines functionality with comfort.
Outside, the well-maintained grounds include a detached garage and a variety of spaces for gardening enthusiasts, highlighted by a large greenhouse and a relaxing summer house. Although some modernization may be needed to revive certain areas, the overall condition is inviting and ready for your personal touches. With excellent potential for future renovations and extensions, this is an opportunity not to be missed. Located just moments from Tain's shops, services, and stunning coastal scenery, this property encapsulates the best of rural living. Act quickly—properties in this desirable area don’t stay on the market for long!
4 bedroom detached bungalow for sale in Birch Place, Tain, IV19 1FF, IV19 — £310,000 • 4 bed • 3 bath • 1819 ft²
4 bedroom detached house for sale in Moss Road, Tain, IV19 — £300,000 • 4 bed • 2 bath • 926 ft²
2 bedroom detached bungalow for sale in 33 Canmore Way, Tain, IV19 — £185,000 • 2 bed • 1 bath • 645 ft²
4 bedroom detached bungalow for sale in Balintore, Tain, IV20 1XN, IV20 — £450,000 • 4 bed • 2 bath • 2573 ft²
3 bedroom detached bungalow for sale in 18 Mayfield Wynd, Tain, Ross-Shire, IV19 1LL, IV19 — £180,000 • 3 bed • 1 bath • 997 ft²
3 bedroom detached bungalow for sale in Moray View, Balintore, Tain, IV20 — £300,000 • 3 bed • 1 bath






































































































































































































