One-bedroom retirement flat with communal gardens and excellent transport links.
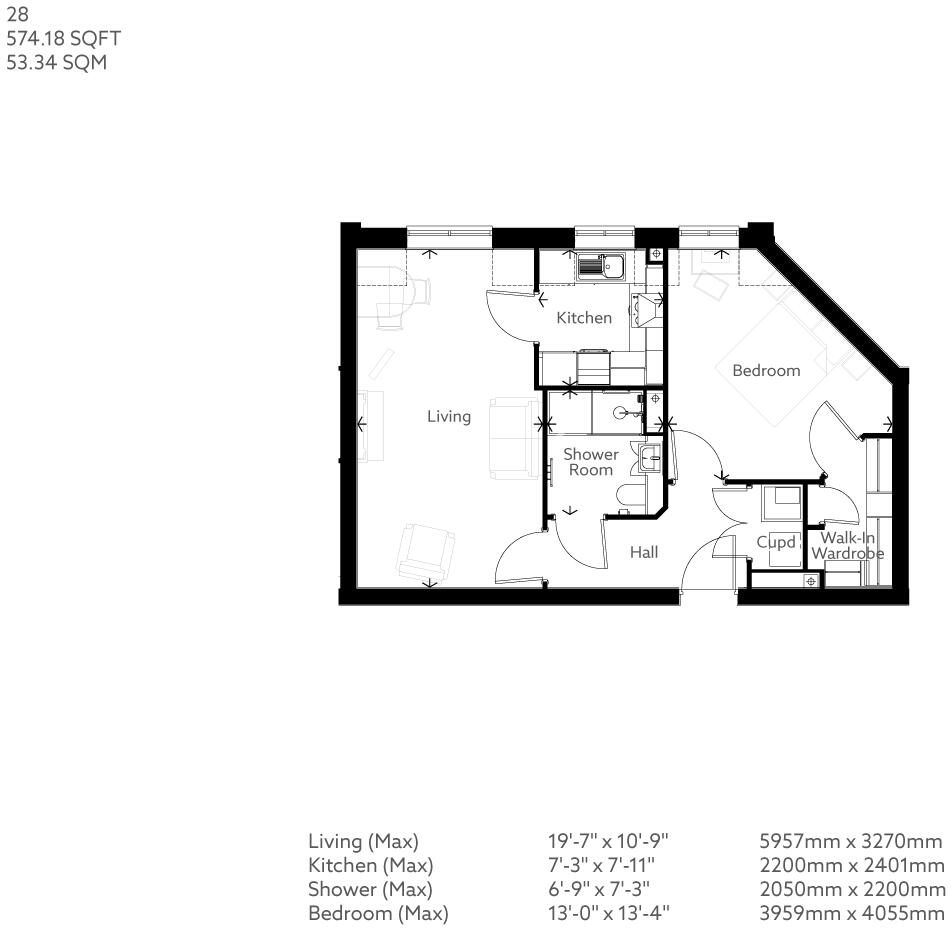
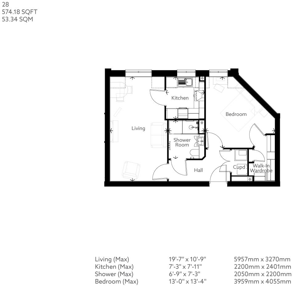
West-facing one-bedroom with large walk-in wardrobe
Spacious living/dining area with good natural light
Fully fitted kitchen with integrated appliances
Dedicated house manager and communal lounge
Landscaped gardens, guest suite, mobility scooter charging
Near Chipstead station; easy M25/M23 access
Built 2017; SAP rating up to 81, modern construction
Electric room heaters and slow broadband speeds
This west-facing one-bedroom apartment at Goldfinch House is designed for comfortable retirement living. The spacious living/dining room and fully fitted kitchen with integrated appliances suit easy daily routines, while a large walk-in wardrobe and additional utility cupboard provide generous storage. Communal facilities include a lounge, landscaped gardens, a guest suite, lift access and mobility-scooter charging points, supported by a dedicated house manager for added peace of mind.
Set in a peaceful countryside edge location yet close to Chipstead station and quick links to the M25 and M23, the development offers a friendly, affluent community and easy access to local amenities. Built in 2017 with a strong SAP rating (up to 81), the apartment benefits from modern construction and contemporary finishes tailored for seniors.
Practical considerations: heating is by electric room heaters (no gas central heating), broadband speeds are reported slow, and the property is leasehold (995 years remaining). The apartment is part of an over-60s development and may suit buyers seeking low-maintenance, community-focused retirement living rather than full independent family accommodation.
1 bedroom apartment for sale in Outwood Lane, Chipstead, Coulsdon, CR5 — £389,999 • 1 bed • 1 bath • 558 ft²
2 bedroom ground floor flat for sale in Outwood Lane, Chipstead, Surrey, CR5 — £420,000 • 2 bed • 2 bath • 569 ft²
1 bedroom apartment for sale in Outwood Lane,Chipstead,Coulsdon,CR5 3LU, CR5 — £395,000 • 1 bed • 1 bath
1 bedroom retirement property for sale in 6-12 Woodcote Valley Road,
Purley,
Surrey,
CR8 3EQ, CR8 — £345,000 • 1 bed • 1 bath • 582 ft²
2 bedroom ground floor flat for sale in Outwood Lane, Chipstead, Surrey, CR5 — £277,000 • 2 bed • 2 bath • 569 ft²
1 bedroom retirement property for sale in Wray Park Road, Reigate, Surrey, RH2 — £175,000 • 1 bed • 1 bath • 636 ft²










































