Modern low‑maintenance retirement flat with communal gardens and parking.
Second-floor one-bedroom with French balcony and communal garden views
Built 2023 with modern finishes and high SAP rating (up to 78)
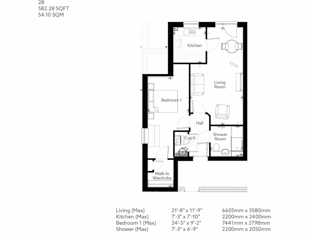
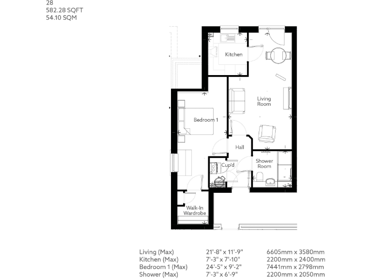
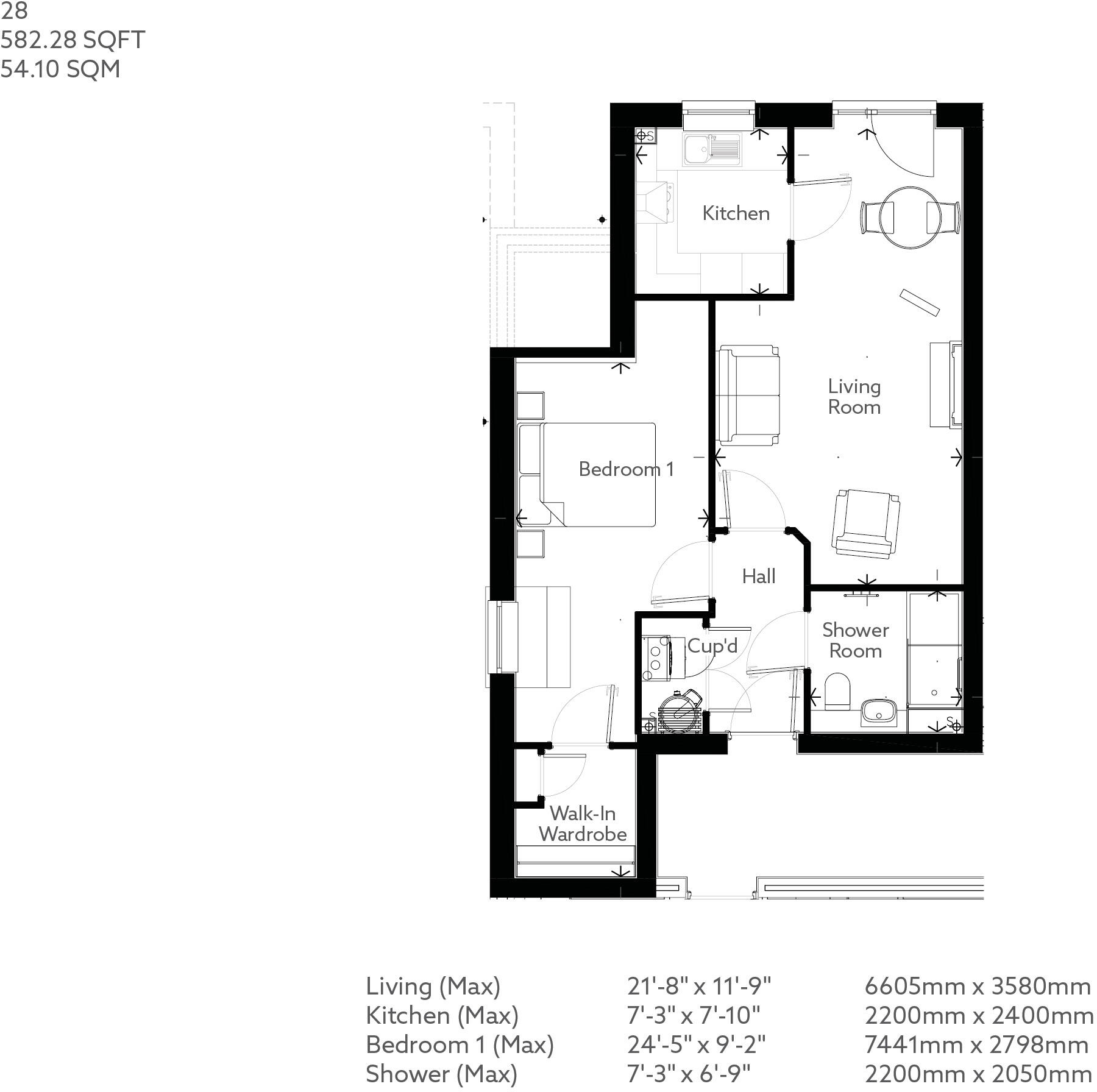
Large walk-in wardrobe and separate kitchen; good internal storage
On-site parking and manager present during office hours
Leasehold: 998 years remaining; retirement living for over-60s
Main heating: electric room heaters — may mean higher running costs
Medium-sized apartment (approx. 582 sq ft) suited to one or two people
No flooding risk; situated in a very affluent area with fast broadband
Light-filled one-bedroom retirement apartment in a purpose-built McCarthy Stone development, finished in 2023 and designed for low-maintenance living. The living/dining room opens via glazed doors to a French balcony overlooking neatly landscaped communal gardens, offering fresh air and a pleasant outlook without garden upkeep. A generous bedroom with a large walk-in wardrobe, separate kitchen and in-unit storage suit residents who want easy organisation and space.
Practical features include on-site parking and a friendly manager available during office hours, helping with day-to-day queries and adding reassurance. The apartment sits on the second floor with a north-west orientation and benefits from modern fittings throughout and a high SAP rating (up to 78). The lease is long (998 years), and the building is exclusively for the over-60s.
Buyers should note this is a leasehold retirement property with electric room heaters as the main heating source; electric heating is efficient for installation but can give higher running costs compared with gas. The apartment is medium-sized (approx. 582 sq ft) and designed for single or couple occupancy rather than larger households.
Overall, this property is well suited to downsizers or retirees seeking a contemporary, low-maintenance home with communal facilities, easy access to Purley amenities and straightforward transport links to Central London.
2 bedroom retirement property for sale in 6-12 Woodcote Valley Road,
Purley,
Surrey,
CR8 3EQ, CR8 — £470,000 • 2 bed • 1 bath • 818 ft²
1 bedroom retirement property for sale in 6-12 Woodcote Valley Road,
Purley,
Surrey,
CR8 3EQ, CR8 — £299,000 • 1 bed • 1 bath • 481 ft²
2 bedroom retirement property for sale in 6-12 Woodcote Valley Road,
Purley,
Surrey,
CR8 3EQ, CR8 — £425,000 • 2 bed • 1 bath • 911 ft²
1 bedroom apartment for sale in Woodcote Valley Road, Purley, CR8 — £299,000 • 1 bed • 1 bath • 572 ft²
1 bedroom apartment for sale in Foxley Lane, Reynard Court, CR8 — £115,000 • 1 bed • 1 bath • 493 ft²
2 bedroom apartment for sale in Woodcote Valley Road, Purley, CR8 — £425,000 • 2 bed • 2 bath • 851 ft²






















