Freehold single‑plot with planning for a 4‑bed detached home and pleasant elevated garden outlook..
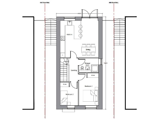
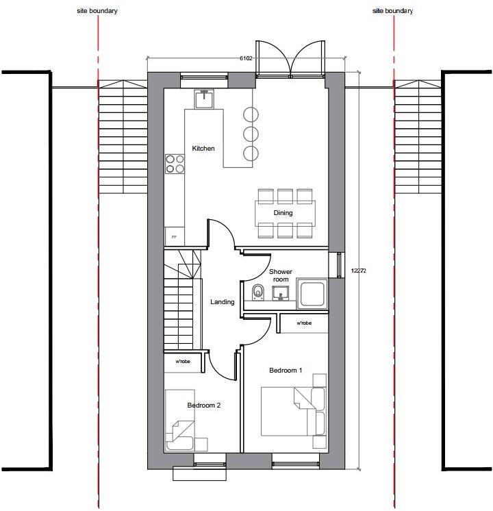
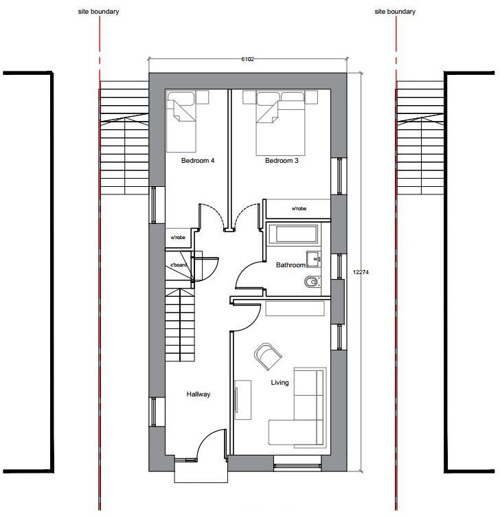
Planning permission for a 4‑bed detached house (Plot K1)
Freehold plot within Coombe Farm 72‑unit regeneration area
Effectively ready for build; utilities expected easily connected
Rectangular plot; rear steps up into sloping green embankment
East–west aspect; morning and evening sun to garden
Modest footprint and limited front/setback working area for contractors
Broadband very slow; mobile signal average — connectivity constraint
No flood risk; nearby schools rated Good or Independent
This cleared single residential plot (Plot K1) is offered with planning permission for a four‑bedroom detached house and sits within the wider Coombe Farm regeneration (72 units). The site is effectively ready to build with expected easy utility connections and on‑site access for plant — attractive to a self‑builder or small developer seeking a modest infill opportunity in an established, affluent farming-edge community.
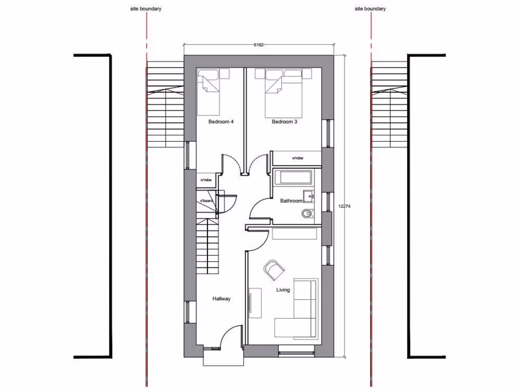
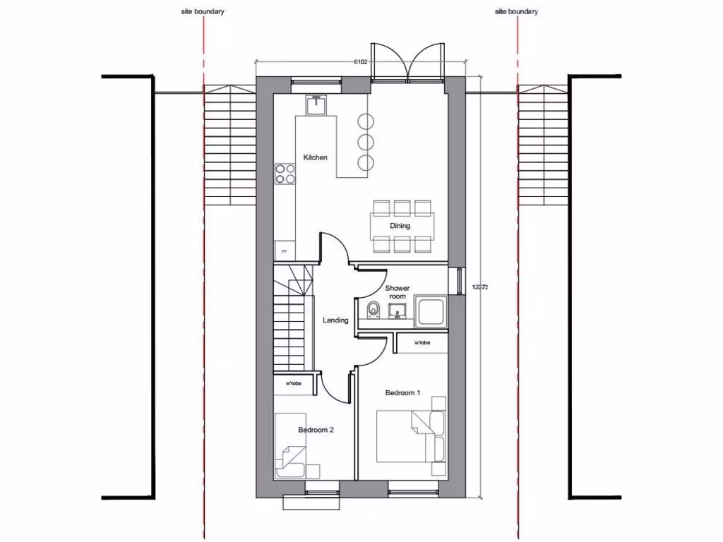
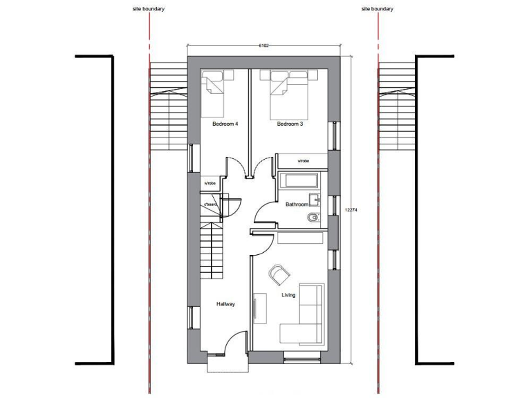
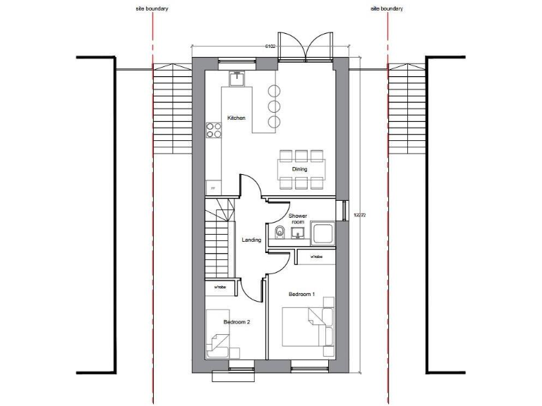
The parcel is rectangular, steps up to a raised rear garden and benefits from an east–west aspect for morning and evening sun. The rear outlook opens onto a sloping green embankment/open grassland, providing a pleasant elevated green view and more privacy than a typical urban infill plot. Off‑street parking is provided on a forecourt driveway.
Buyers should note practical constraints: the footprint is modest (single‑plot infill), the front setback and working area are limited, and detailed room dimensions, garden measurements and floorplans are not provided. Broadband speeds in the area are reported as very slow and mobile signal average — relevant for modern connectivity needs.
This freehold plot is suited to a self‑builder, small developer or investor targeting a detached family home in a suburban/countryside fringe setting. It offers quick build potential but requires a buyer to manage pre‑commencement conditions, site build logistics, and final fit‑out costs.
Plot for sale in 70 Downs Valley Road, Brighton, BN2 — £140,000 • 3 bed • 2 bath • 1012 ft²
Land for sale in Merston Close, Brighton, BN2 — £175,000 • 4 bed • 2 bath • 5134 ft²
Plot for sale in Green Lane, South Chailey, BN8 — £225,000 • 1 bed • 1 bath • 1011 ft²
4 bedroom link detached house for sale in Coombe Farm, Westfield Avenue North, Saltdean, Brighton, BN2 — £750,000 • 4 bed • 3 bath • 1480 ft²
4 bedroom link detached house for sale in Saltdean, Brighton, East Sussex, BN2 8HY, BN2 — £800,000 • 4 bed • 2 bath • 1480 ft²
Plot for sale in Hurst Road, Hassocks, BN6 — £1,000,000 • 5 bed • 5 bath • 5140 ft²






















