Practical three-bedroom home with garden, garage and extension potential close to parks.
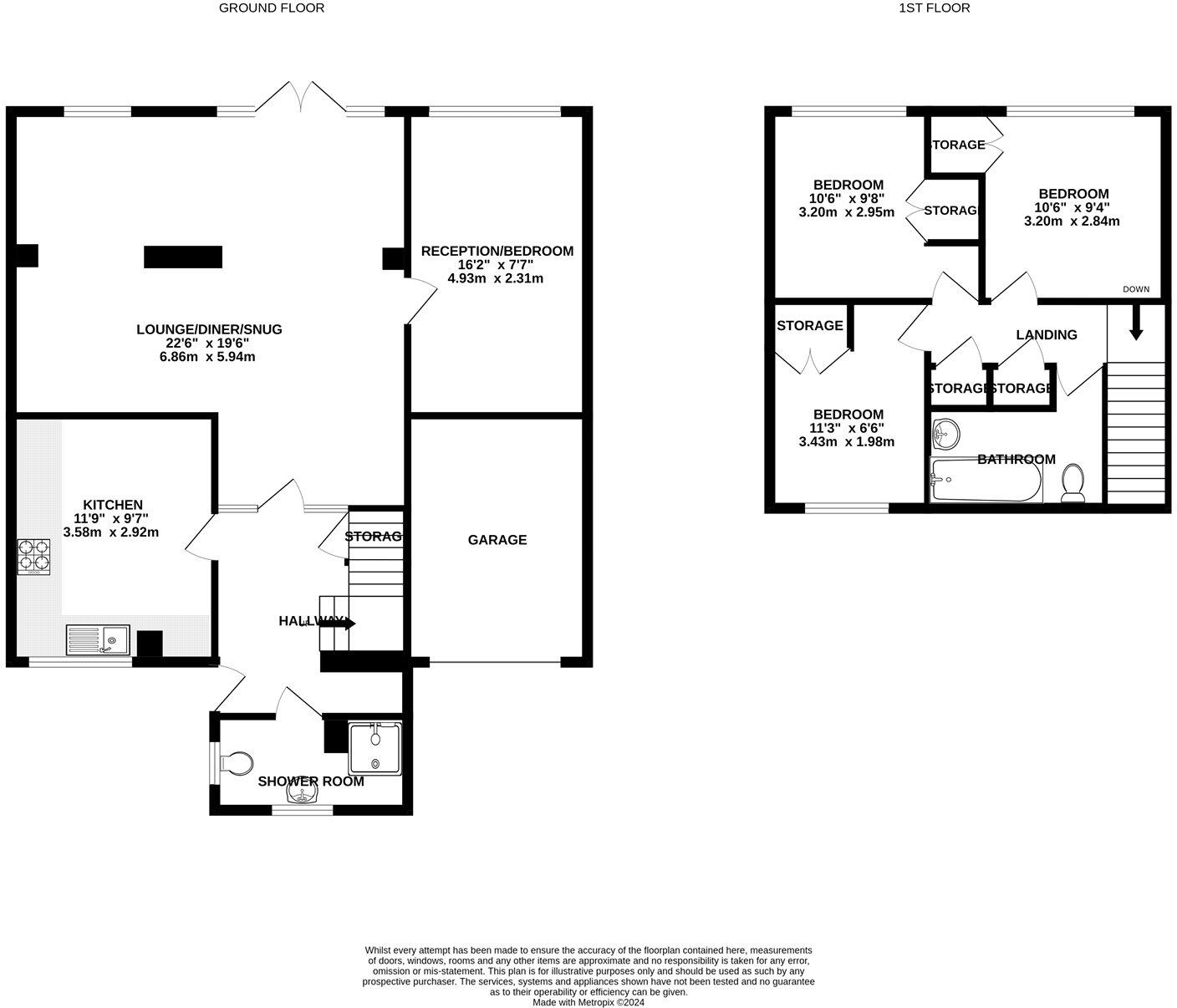
- Three bedrooms and two bathrooms, suitable family layout
- Private, enclosed rear garden with patio and mature trees
- Driveway parking plus single attached garage
- Potential to extend subject to planning permission
- EPC rating E (54); energy performance could be improved
- Constructed 1967–1975; cavity walls likely uninsulated
- Liveable condition but would benefit from updating
- Council Tax Band D; very low local crime rate
Set on the popular Avenue Farm Development, this three-bedroom link-detached house suits families seeking practical living close to parks and good schools. The property offers two reception rooms, a modern kitchen, downstairs shower room and a contemporary family bathroom, with French doors opening to a private, enclosed rear garden and patio for outdoor dining.
Driveway parking and an attached garage add convenience, while the plot and layout provide scope to extend (subject to planning) or reconfigure to increase living space. The house is liveable now but would reward updating and modest modernisation to unlock additional value.
Notable practical points: the EPC is rated E (54) and the property was constructed in the late 1960s–1970s with cavity walls likely lacking insulation. Council Tax band D applies. Viewing is recommended to assess condition and extension potential.
3 bedroom detached house for sale in Woburn Avenue, Farnborough, Hampshire, GU14 — £475,000 • 3 bed • 2 bath • 862 ft²
3 bedroom semi-detached house for sale in Charlecote Close, Farnborough, Hampshire, GU14 — £425,000 • 3 bed • 1 bath • 822 ft²
3 bedroom terraced house for sale in Purmerend Close, Farnborough, Hampshire, GU14 — £390,000 • 3 bed • 1 bath • 556 ft²
3 bedroom semi-detached house for sale in Pyestock Crescent, Farnborough, Hampshire, GU14 — £475,000 • 3 bed • 1 bath • 814 ft²
3 bedroom detached house for sale in Copse Avenue, Farnham, Surrey, GU9 — £585,000 • 3 bed • 1 bath • 696 ft²
4 bedroom link detached house for sale in Blackstone Close, Farnborough, Hampshire, GU14 — £525,000 • 4 bed • 2 bath • 1513 ft²


































































