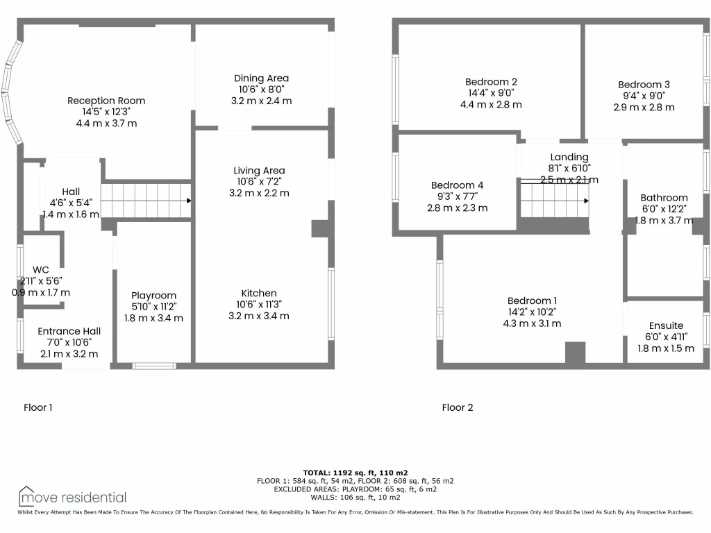
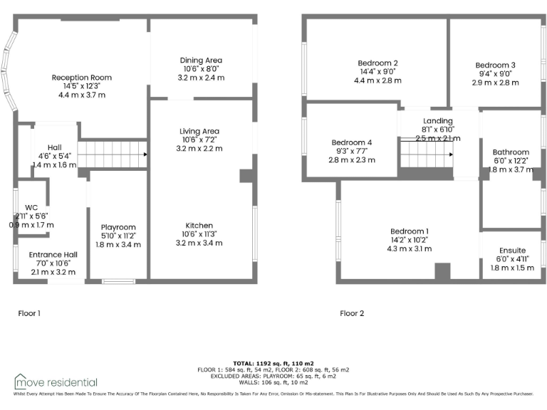
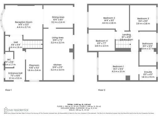
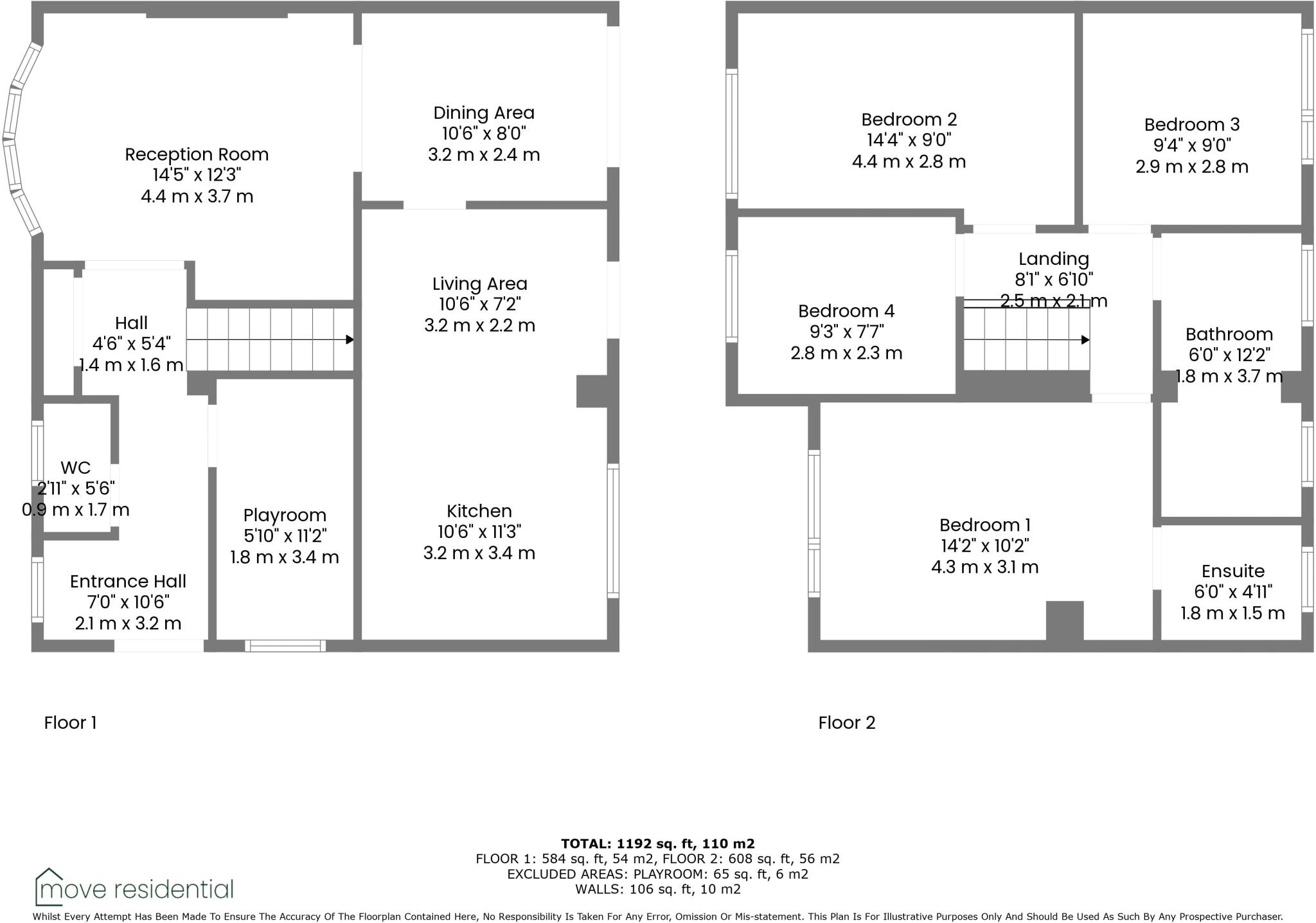
**Standout Features:**
- Four spacious bedrooms, including a master with ensuite
- Bright and inviting living spaces with contemporary decor
- Modern kitchen diner with built-in appliances
- Delightful garden with lawn and patio area
- Off-road parking and garage
- Located in a desirable Woolton neighborhood (L25)
- Good local schools with strong Ofsted ratings
**Concise Summary:**
Discover your family's ideal home in this fantastic four-bedroom semi-detached property situated on a desirable corner plot in Woolton, L25. Offering generous living proportions, the layout includes a welcoming entrance hall, a versatile playroom that doubles as a home office, and a bright lounge that seamlessly connects to a dining area with French doors leading to the charming garden. The modern kitchen diner is perfect for family gatherings and entertaining, complimented by a convenient downstairs WC.
Venture upstairs to find four well-sized bedrooms awash with natural light. The master suite features an ensuite shower room, while a stylish family bathroom caters to the additional bedrooms. Outside, enjoy a delightful garden retreat with ample space for outdoor activities, complemented by off-road parking and a garage for added convenience.
This home not only presents a comfortable living environment but also benefits from a strong community vibe and proximity to good local schools, making it perfect for families. With fast broadband and excellent mobile signal, this property meets the modern demands of both work and play. Don’t miss the opportunity to own this inviting family haven—schedule a viewing today!
3 bedroom semi-detached house for sale in Manor Crescent, Woolton, Liverpool, L25 — £385,000 • 3 bed • 1 bath • 992 ft²
3 bedroom semi-detached house for sale in School Lane, Woolton, Liverpool, L25 — £385,000 • 3 bed • 2 bath • 1258 ft²
3 bedroom semi-detached house for sale in Charterhouse Road, Woolton, Liverpool, L25 — £340,000 • 3 bed • 1 bath • 1162 ft²
4 bedroom semi-detached house for sale in Carkington Road, Woolton, Liverpool., L25 — £350,000 • 4 bed • 1 bath • 1487 ft²
4 bedroom detached house for sale in Winhill, Woolton, Liverpool, L25 — £833,000 • 4 bed • 3 bath • 2786 ft²
3 bedroom semi-detached house for sale in Grassington Crescent, Woolton, Liverpool, L25 — £235,000 • 3 bed • 1 bath • 832 ft²










































































