Spacious three-bedroom home with private garden and outbuildings for rural family life.
Large remodelled country-style kitchen/breakfast/dining/reception room
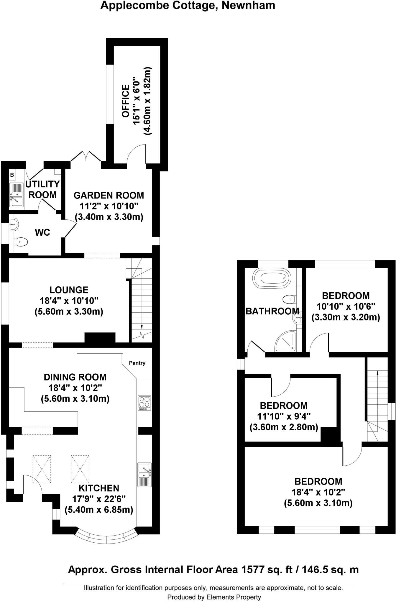
Applecombe Cottage is a roomy, newly remodelled detached home set in a quiet Newnham hamlet, with open field views from the rear garden and summer house. The house has been refitted to provide a large country-style kitchen/breakfast/dining/reception room, a generous lounge with log burner, and a bright garden room — all arranged for comfortable family living and countryside entertaining.
Upstairs are three good-sized bedrooms and a contemporary four-piece bathroom. Practical extras include a separate vaulted office/work space ideal for home-working, a timber workshop/outbuilding, and a five-bar gated driveway providing secure parking for several vehicles. The plot sits behind mature hedging, offering a private, sheltered garden in an attractive rural setting.
Buyers should note some material facts: broadband speeds are very slow in this location, council tax is described as expensive, and the property dates from the late 1970s/early 1980s with partial cavity-wall insulation assumed. Although the house has recently been renovated internally, any buyer seeking full modern performance may want to confirm insulation levels and services before purchase.
This home will suit families or countryside commuters wanting space, character and an established garden with outbuildings. There is scope to extend or reconfigure subject to planning if you need more living space or to tailor the house to longer-term needs. Viewing is recommended to appreciate the layout, garden aspect and detached office/work space in person.
4 bedroom detached house for sale in Newnham Road, Newnham, Hook, Hampshire, RG27 — £750,000 • 4 bed • 1 bath • 1587 ft²
5 bedroom detached house for sale in Woolton Lodge Gardens, Woolton Hill, Newbury, Hampshire, RG20 — £1,150,000 • 5 bed • 3 bath • 3171 ft²
4 bedroom detached house for sale in Mount Road, Highclere, Newbury, Berkshire, RG20 — £775,000 • 4 bed • 2 bath • 2485 ft²
4 bedroom house for sale in Axford, Hampshire, RG25 — £740,000 • 4 bed • 2 bath • 1451 ft²
4 bedroom detached house for sale in Ferrell Field, Hook, Hampshire, RG27 — £795,000 • 4 bed • 2 bath • 1573 ft²
5 bedroom detached house for sale in St. Marys Church Road, Basingstoke, RG25 — £1,750,000 • 5 bed • 3 bath • 4223 ft²


























































































