Characterful four-bed family home on large plot with countryside views and renovation potential.
Detached former village post office with distinctive character
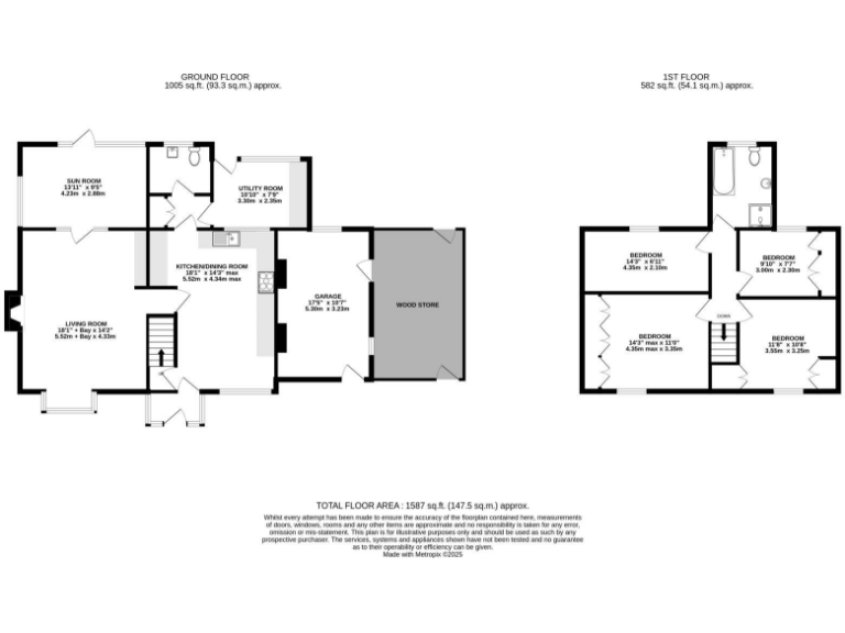
This detached former village post office sits on a generous 0.22-acre plot in desirable Newnham, offering genuine character and rear countryside views. The house provides comfortable family accommodation across two storeys: a generous kitchen/dining room, lounge with open fireplace, sun room, utility, garage and four bedrooms. The footprint and layout give clear scope for reconfiguration or a possible extension (subject to planning).
The property requires renovation throughout, presenting an appealing project for a family or buyer seeking to add value. Notable positives include mains-freehold tenure, low local crime, excellent mobile signal and mature hedged boundaries that create privacy. Heating is provided by a water-source heat pump with radiators and electricity supply; double glazing is installed though ages are unknown.
Practical points to note: there is a single family bathroom and cloakroom only, broadband speeds in the area are very slow, and council tax is described as expensive. Buyers should factor refurbishment costs into budgets and confirm planning potential with the local authority if extending.
For families seeking a village setting with good local schools nearby and countryside outlooks, this home provides space, character and clear scope to modernise and personalise over time.
4 bedroom detached house for sale in Crown Lane, Newnham, Hook, Hampshire, RG27 — £900,000 • 4 bed • 4 bath • 3501 ft²
4 bedroom detached house for sale in Burghclere, Hampshire, RG20 — £960,000 • 4 bed • 2 bath • 2388 ft²
2 bedroom detached house for sale in Newnham Green, Newnham, Hook, Hampshire, RG27 — £785,000 • 2 bed • 2 bath • 1307 ft²
4 bedroom detached house for sale in Bishops Green, Newbury, RG20 4HT, RG20 — £850,000 • 4 bed • 2 bath • 2281 ft²
3 bedroom detached house for sale in Waterbrook Road, Alton, Hampshire, GU34 — £500,000 • 3 bed • 2 bath • 1479 ft²
4 bedroom semi-detached house for sale in Heath Lane, Ewshot, Farnham, Hampshire, GU10 — £600,000 • 4 bed • 2 bath • 1989 ft²


















































































