Practical new home for commuter families seeking low-maintenance living.
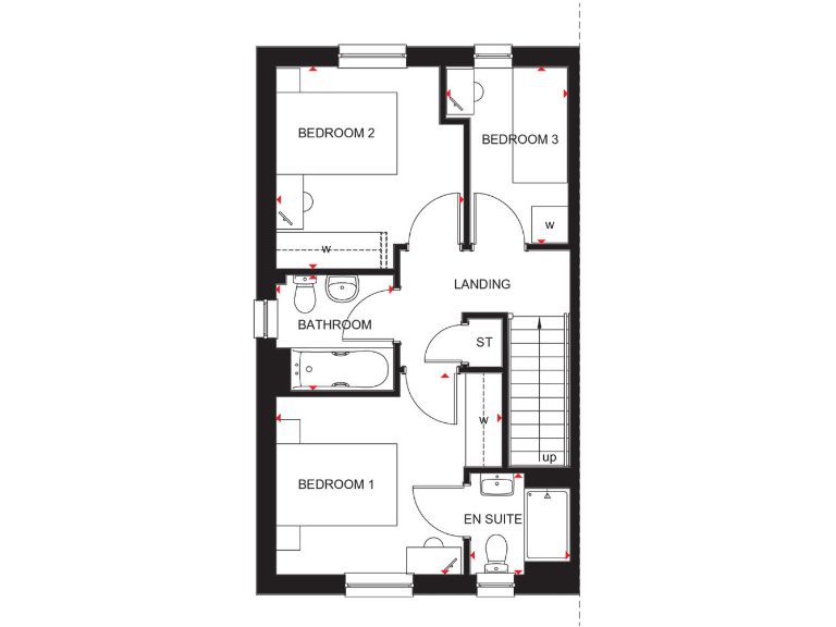
New-build three-bedroom end-terrace with en suite to main bedroom
This newly built three-bedroom end-terrace (The Cupar) offers compact, practical family living with an open-plan kitchen/dining area and a generous lounge. The main bedroom includes an en suite, plus there's a downstairs WC and utility space — useful everyday conveniences for busy households. Patio doors open from the kitchen/diner onto a rear garden, extending the living space in warmer months.
The home is part of a planned development with good road links, including a new junction onto the M9 for straightforward commuting to Edinburgh and Glasgow. Built to contemporary energy-efficiency standards, the property should deliver lower running costs compared with older stock, though finish levels and exact specification should be confirmed with the build documentation.
At about 700 sq ft the house is small for a three-bedroom layout and will suit buyers who prioritise location and low-maintenance new-build living over generous internal space. Garden and plot sizes are modest; external storage and parking arrangements should be checked. Broadband speeds are average and mobile signal is excellent.
Buyers should note the surrounding area is recorded as very deprived; local amenities and outdoor space are available nearby, but prospective purchasers should research local services, schooling and longer-term area plans. Tenure is not specified, and the property is forecast to be ready for occupation in spring 2026 — confirm legal and completion details before committing.
3 bedroom end of terrace house for sale in Shale Road,
Winchburgh,
West Lothian,
EH52 6RD, EH52 — £274,995 • 3 bed • 1 bath • 700 ft²
3 bedroom end of terrace house for sale in Houstoun Road,
Livingston,
West Lothian,
EH54 7AA, EH54 — £281,995 • 3 bed • 1 bath • 700 ft²
3 bedroom terraced house for sale in Shale Road,
Winchburgh,
West Lothian,
EH52 6RD, EH52 — £264,995 • 3 bed • 1 bath • 697 ft²
3 bedroom terraced house for sale in Houstoun Road,
Livingston,
West Lothian,
EH54 7AA, EH54 — £269,995 • 3 bed • 1 bath • 700 ft²
3 bedroom semi-detached house for sale in Shale Road,
Winchburgh,
West Lothian,
EH52 6RD, EH52 — £318,995 • 3 bed • 1 bath • 820 ft²
3 bedroom terraced house for sale in Shale Road,
Winchburgh,
West Lothian,
EH52 6RD, EH52 — £264,995 • 3 bed • 1 bath • 697 ft²


































































































