Ready-to-occupy starter or rental in a quiet, well-served suburb.
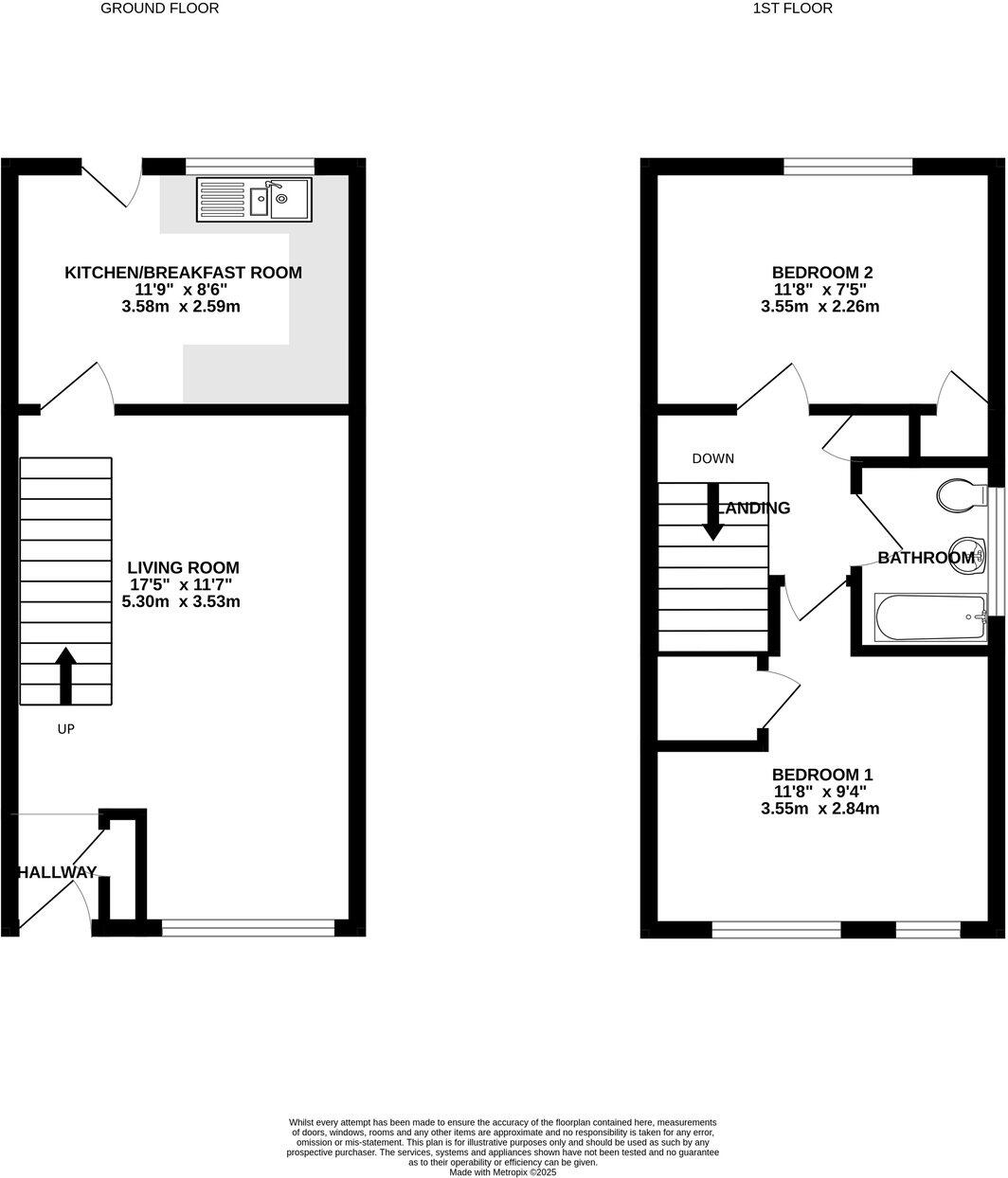
17ft living room with understairs storage
This two-bedroom end-of-terrace mews house offers a straightforward, affordable entry into the Paddock Hill development. The living room measures about 17ft and the kitchen opens onto a small rear patio and raised lawn, while two double bedrooms and a modern bathroom sit on the first floor. Double glazing and mains gas central heating give practical, efficient day-to-day living.
Practical benefits include a garage in a nearby block with communal parking and a small front path/drive area. The property is offered with no onward chain and an EPC rating of C, making it a ready option for first-time buyers or buy-to-let investors looking for reliable rental demand in a comfortable suburban area with good schools and local shops.
Buyers should note the modest overall footprint and small garden typical of a mews house; room sizes and plot are compact. The garage is located to the rear in a communal block (access via a rear lane and Tintagel Drive), so parking is not adjacent to the house. Some construction details are assumed (cavity walls with partial insulation; double glazing with unknown install date), so further checks or upgrades may be needed depending on buyer standards.
Council tax band C is payable (£2,175.25 for 2025/26). The property was built in the late 1970s/early 1980s and presents as a practical, low-maintenance option rather than a large family home. For buyers prioritising location, affordability and immediate occupation, this is a sensible, straightforward purchase.
2 bedroom terraced house for sale in Belmont Mews, Camberley, Surrey, GU15 — £350,000 • 2 bed • 1 bath • 559 ft²
3 bedroom terraced house for sale in Osborne Close, Frimley, GU16 — £425,000 • 3 bed • 1 bath • 1163 ft²
2 bedroom terraced house for sale in Radcliffe Way, Bracknell, Berkshire, RG42 — £325,000 • 2 bed • 1 bath • 570 ft²
2 bedroom terraced house for sale in The Beeches, Ash Vale, Guildford, Surrey, GU12 — £400,000 • 2 bed • 1 bath • 738 ft²
2 bedroom maisonette for sale in Cheyne Way, Farnborough, Hampshire, GU14 — £265,000 • 2 bed • 1 bath • 665 ft²
2 bedroom terraced house for sale in Old Pond Close, Camberley, Surrey, GU15 — £300,000 • 2 bed • 1 bath • 783 ft²






































































