Large retail space with D1 use in a high-footfall location.
Dual-frontage corner unit with excellent street visibility and high footfall
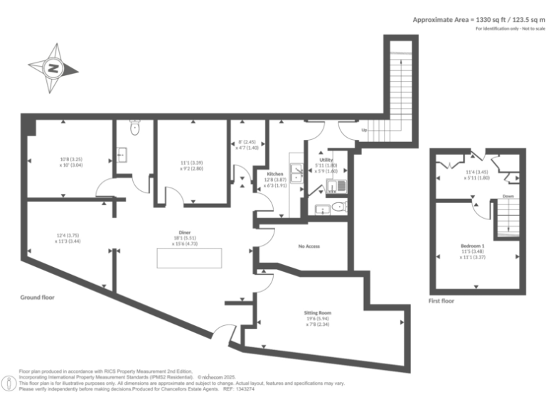
Total area 1,330 sq ft with open-plan layout and approximately seven rooms
D1 licence in place — existing use suitable for clinic or community services
Current income £54,000 pa (approx 5.4% gross yield at asking price)
Freehold title but occupational lease expires March 2027 (2 years left)
Short lease is a material risk — many lenders may refuse finance
Solid brick construction (1900–1929); likely no wall insulation, may need upgrades
Small plot size; mid-20th-century commercial styling with large windows
Set on a prominent corner in Hampstead, this double-fronted commercial freehold offers 1,330 sq ft of open-plan space and strong street visibility. The property holds a D1 licence and currently produces £54,000 pa, giving a straightforward income profile for a short-term hold.
The asking price of £1,000,000 equates to a gross income yield of about 5.4%. Built between 1900–1929 with solid brick walls, the building presents a robust shell and mid-20th-century styling with large frontage windows and modern aluminium frames. The immediate area is very affluent with excellent local amenities, strong transport links and high footfall from cafés, shops and cultural attractions.
Important drawback: the occupational lease expires March 2027 (approximately two years remaining). That short lease is material — many mortgage lenders may refuse lending against this asset, and immediate lease negotiations or a purchase from a cash buyer should be anticipated. Buyers should also note basic construction details (solid brick with assumed no insulation) which could require upgrade work depending on intended future use.
This property will suit investors seeking a visible, income-producing freehold with repositioning potential, or an owner-operator able to manage lease renewal. Viewings recommended to assess layout flexibility and any refurbishment requirements.
3 bedroom mixed use property for sale in Heath Street, Hampstead, London, NW3 — £2,000,000 • 3 bed • 1 bath • 1974 ft²
Commercial development for sale in NW3 Barbers, Agincourt Road, Hampstead, NW3 — £279,950 • 1 bed • 1 bath • 754 ft²
High street retail property for sale in 87 Agincourt Road, Hampstead, London, NW3 2NT, NW3 — £115,000 • 1 bed • 1 bath • 1066 ft²
Property for sale in Finchley Road, London, NW3 — £349,950 • 1 bed • 1 bath • 1000 ft²
High street retail property for sale in 529B Finchley Road, London, NW3 7BG, NW3 — £1,500,000 • 1 bed • 1 bath • 2200 ft²
Commercial property for sale in Ground Floor (Commercial), 327 West End Lane, London NW6 — £525,000 • 1 bed • 1 bath • 894 ft²














































































