**Standout Features:**
- Freehold mixed-use property on a busy main road (Finchley Road, A41)
- Vacant retail shop with high foot traffic potential
- Licensed HMO on upper floors with five letting rooms
- Lapsed planning permission for a potential rear extension
- Immediate access to local conveniences and public transport
- Parking available on-street and to the rear
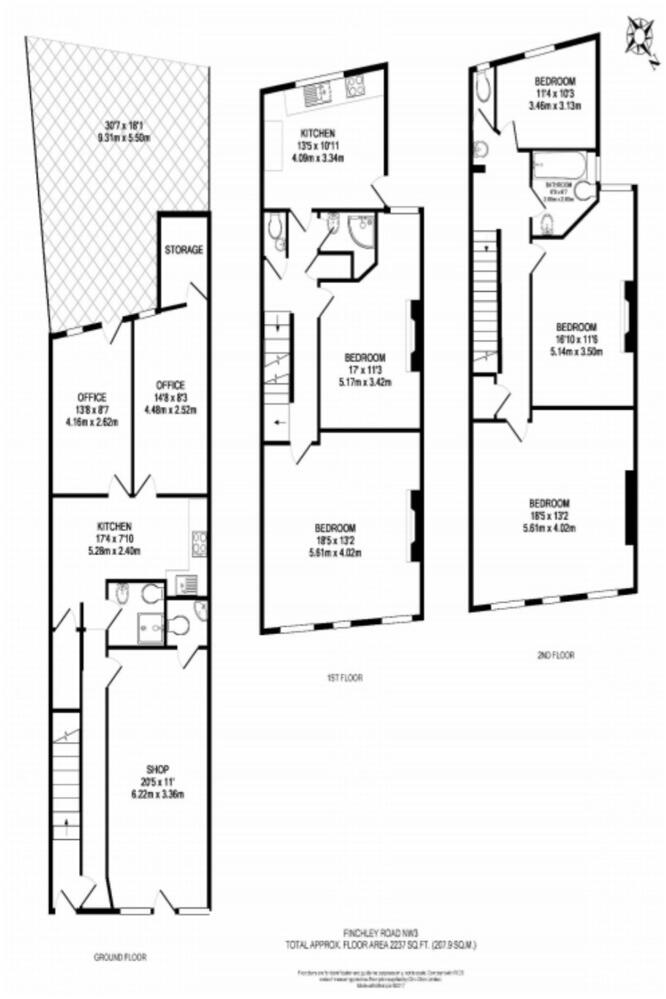
This unique investment opportunity combines a vacant ground-floor shop with a licensed HMO above, perfectly situated in the bustling and vibrant area of West Hampstead. The shop, currently laid out with a kitchen and shower facilities, can be tailored to suit various business needs pending the necessary consents. Its prominent location offers excellent visibility and accessibility, benefiting from the heavy foot traffic of Finchley Road, making it an attractive choice for retail ventures.
The upper levels house a self-contained flat in HMO configuration, ideal for student accommodation given the proximity to local colleges. With a total area of approximately 2,200 square feet and a plot located in a wealthy, urban area, this property presents both immediate rental income potential and promising renovation possibilities.
Note that although the property is generally well-maintained, the need for modern updates is clear, particularly on the shop side. The lapsed planning consent for a rear extension also opens doors for further development, enhancing the long-term value of your investment. This is an ideal prospect for investors looking to seize opportunities in a thriving location. Explore this prime real estate and envision a promising future in one of London’s coveted neighborhoods before it slips away!
5 bedroom terraced house for sale in Finchley Road, London, NW2 — £999,999 • 5 bed • 3 bath
Commercial property for sale in Heath Street, London NW3 6SS, NW3 — £1,000,000 • 1 bed • 1 bath • 1330 ft²
Commercial property for sale in Finchley Road, NW3 — £350,000 • 1 bed • 1 bath • 1187 ft²
Property for sale in Finchley Road, London, NW3 — £375,000 • 1 bed • 1 bath • 1000 ft²
High street retail property for sale in 214 West End Lane, West Hampstead, London, NW6 1UU, NW6 — £1,150,000 • 1 bed • 1 bath • 1920 ft²
Commercial property for sale in 327 West End Lane, West Hamsptead, London NW6 — £1,500,000 • 4 bed • 2 bath • 2202 ft²










































