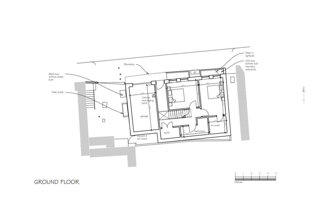
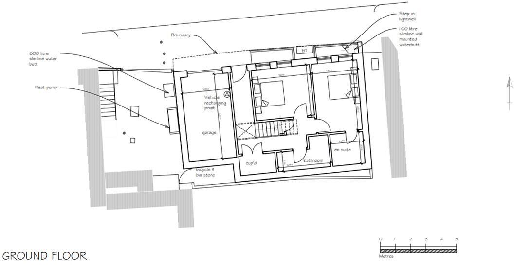
Planning granted for a contemporary three-bedroom home close to station and park.
- Freehold rank of five garages sold with vacant possession
- Planning granted for one 3-bed, 3-bath mews house (24/04008/FUL)
- Water supply pipes reportedly installed to the site
- Minimum CIL payable circa £21,222.69 by buyer
- Buyer’s premium £1,800 (plus VAT) payable on exchange
- Sold at live online auction; eight‑week completion timeframe
- Urban infill plot with main road access and higher traffic
- Development subject to checks in legal pack (rights, services)
A rare freehold development in Bear Flat: a rank of five disused garages with planning granted (24/04008/FUL) for a contemporary three-bedroom, three-bathroom mews house with integral garage. The site is sold with vacant possession and benefits from prepared water supply pipes already installed to the plot.
This is primarily an opportunity for a developer or investor comfortable with auction purchase processes. The location is highly convenient — a 0.3 mile walk to the city centre and Bath Spa station, with Alexandra Park nearby — making the finished home attractive for short‑term lettings or owner-occupiers seeking central convenience.
Buyers should allow for known and material costs: a Community Infrastructure Levy (CIL) payment is payable (minimum quoted £21,222.69), and a buyer’s premium of £1,800 is payable on exchange. Sale is by live online auction with an extended eight-week completion; the lot will be sold as seen and purchasers must consult the legal pack for full rights, easements and utility details.
Planning documentation and proposed drawings are available in the legal pack; the consent permits demolition of the garages and construction of the new mews dwelling with upside-down living, terrace and integral garage. This is a compact infill plot in a busy urban setting, offering redevelopment upside close to major amenities and transport links.
Commercial property for sale in Planning Granted | Midsomer Norton, BA3 — £182,500 • 5 bed • 5 bath • 4998 ft²
Plot for sale in Planning Granted | Midsomer Norton, BA3 — £182,500 • 5 bed • 5 bath • 4998 ft²
Commercial property for sale in Development Opportunity | Central Bath, BA2 — £500,000 • 3 bed • 2 bath • 1651 ft²
3 bedroom flat for sale in Development Opportunity | Central Bath, BA2 — £500,000 • 3 bed • 2 bath • 1651 ft²
Plot for sale in Development | Planning Granted, BA3 — £300,000 • 24 bed • 22 bath • 8947 ft²
4 bedroom terraced house for sale in 47 St. Johns Road, Bathwick, Bath, Bath and North East Somerset BA2 6PZ, BA2 — £575,000 • 4 bed • 2 bath • 1819 ft²


































































