Light-filled central flat with parking and quick tube access for city commuters.
Open-plan reception with large windows and private balcony
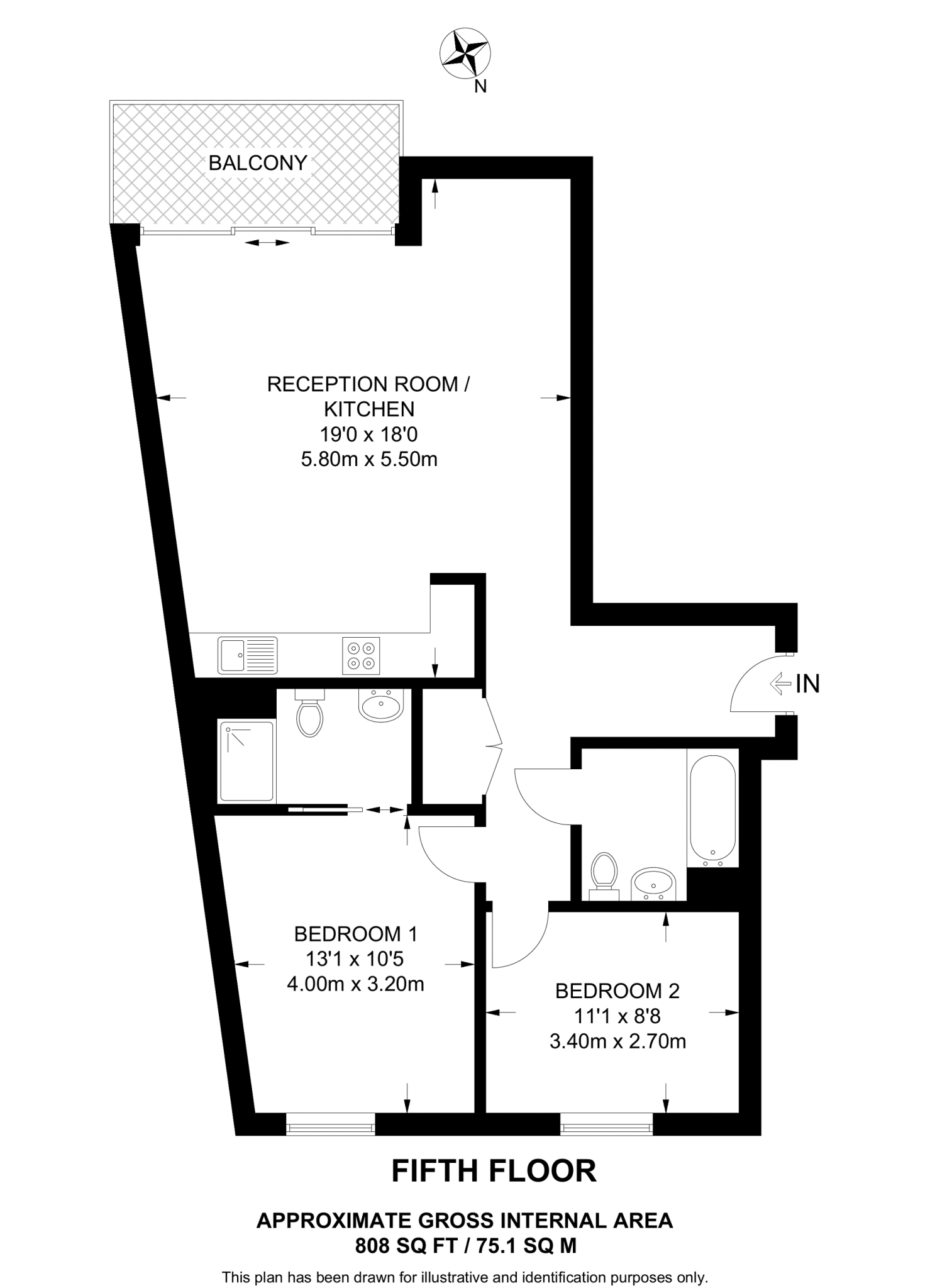
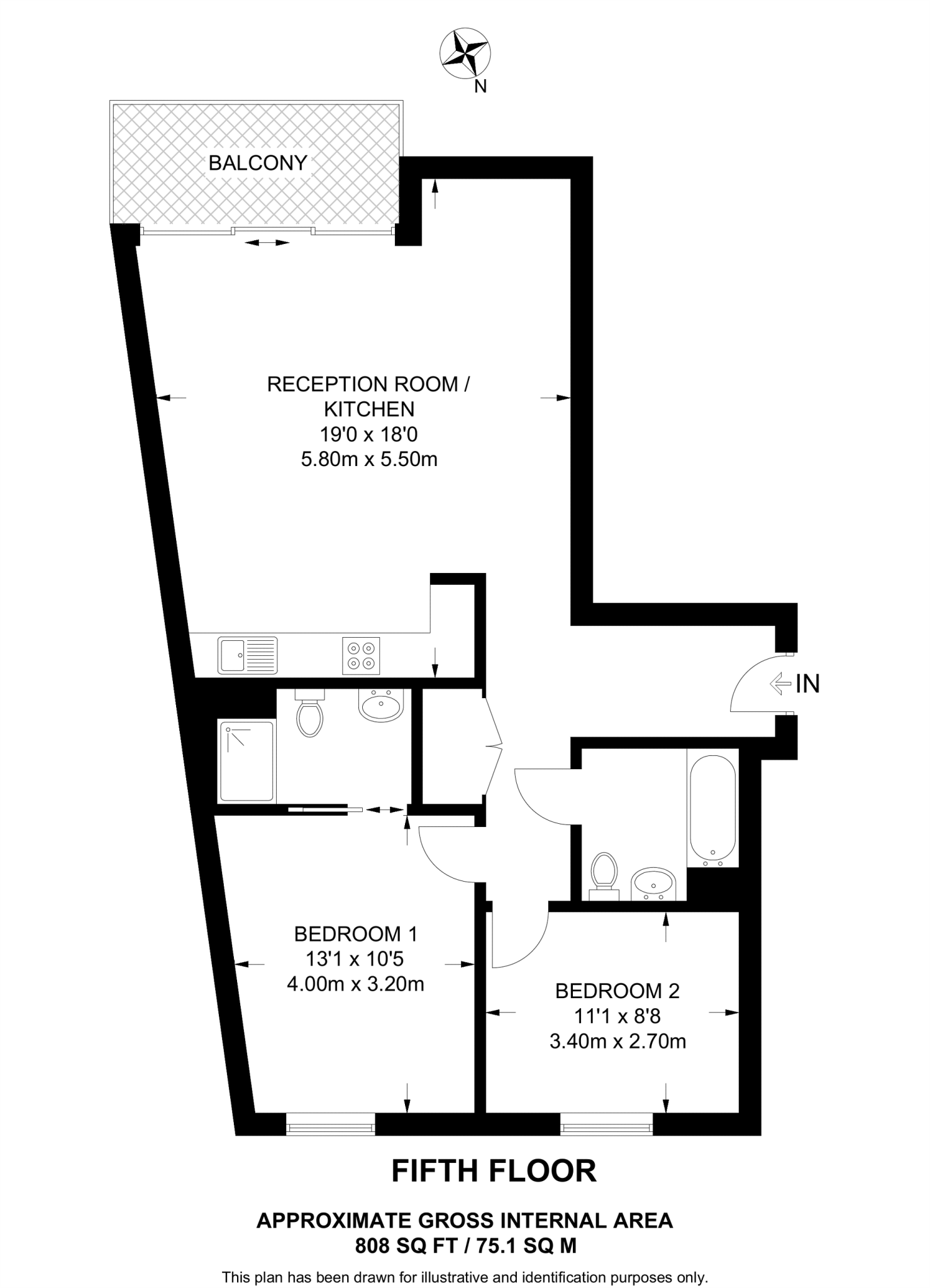
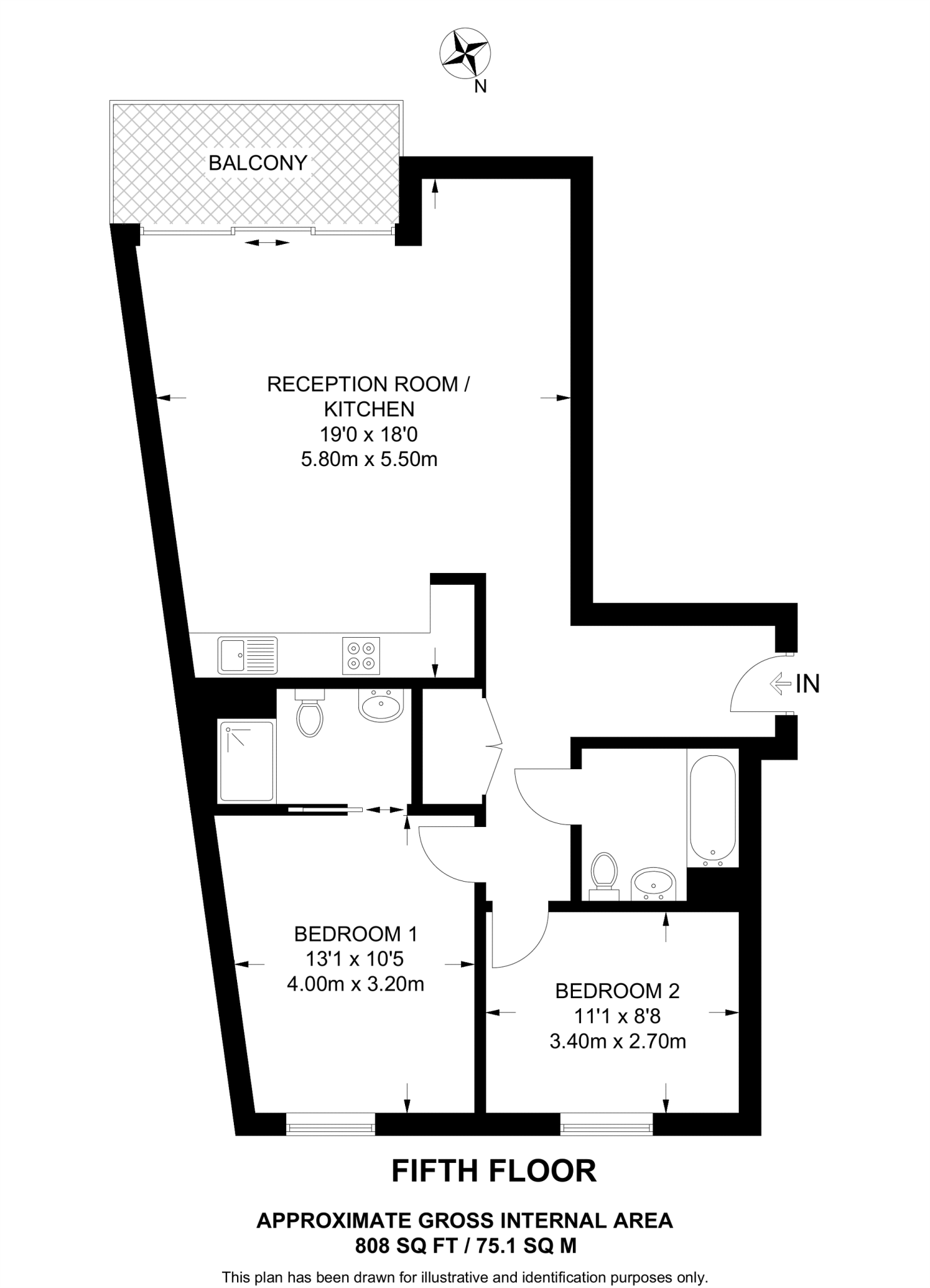
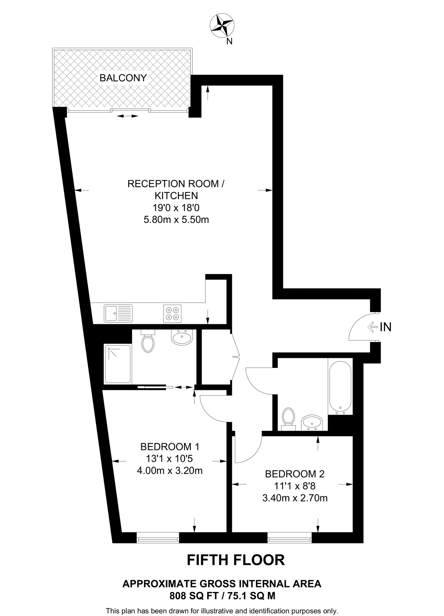
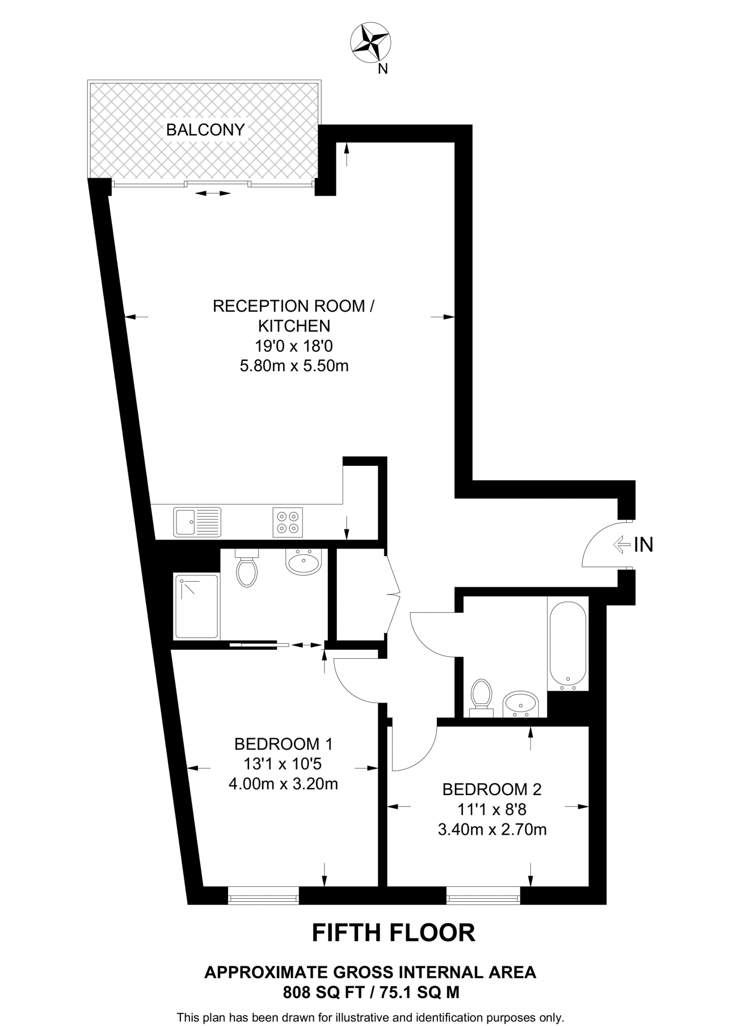
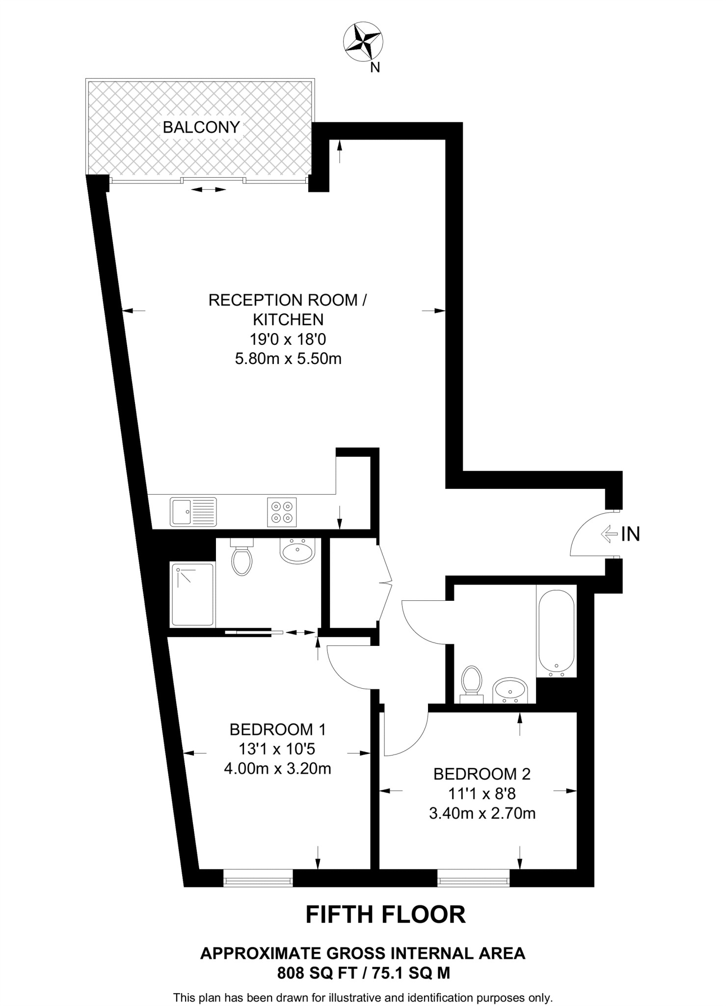
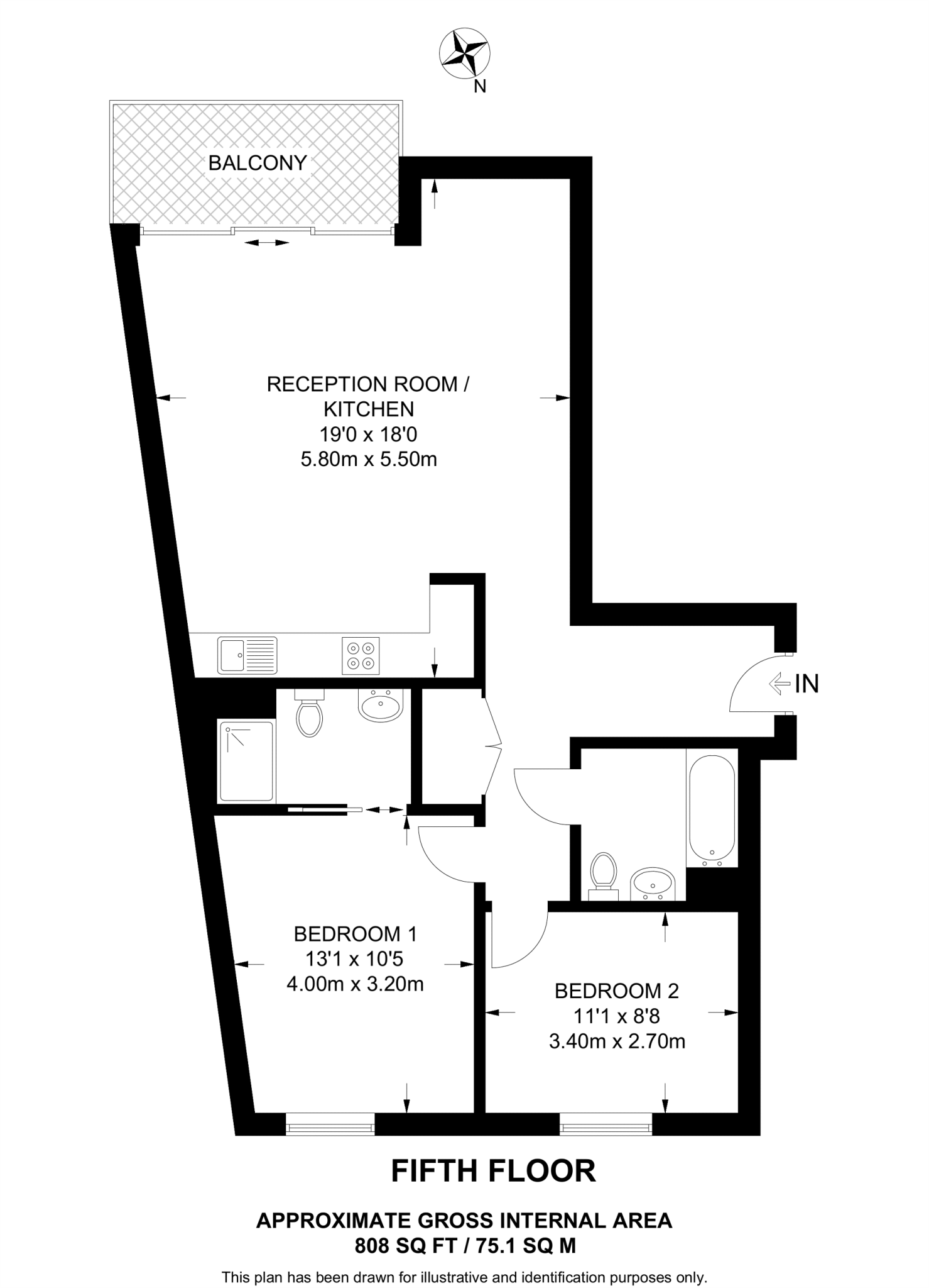
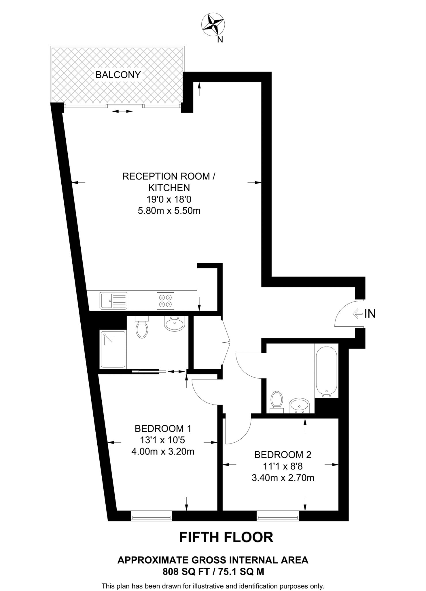
Bright, modern two-bedroom apartment set over 808 sq ft, designed for practical city living. The open-plan reception and contemporary fitted kitchen create a light-filled social space, with a private balcony and large windows that frame city views. The main bedroom includes an ensuite; both bedrooms have built-in storage. Allocated underground parking adds a rare central-London convenience.
The development is well placed for Walworth Road amenities and is a short walk from Elephant & Castle Underground and Overground stations, offering fast links into central London. Local schools nearby have Good Ofsted ratings, and the neighbourhood provides a wide range of shops, cafes and everyday services within easy reach.
Important points to note: the flat is leasehold and heated via a community scheme, so expect service charges and management arrangements. The immediate area is described as very deprived and records above-average crime rates, which may concern some buyers. The apartment is average-sized internally and appears well maintained, though buyers should review lease length, service charges and heating arrangements before committing.
This property will suit first-time buyers seeking a ready-to-move-into city base with parking, or investors looking for a centrally located two-bed with good transport links. It offers comfortable, low-maintenance living with clear potential for rental income, but factor in tenure and local-area considerations when assessing long-term value.
2 bedroom flat for sale in Churchyard Row, Elephant and Castle, London, SE11 — £600,000 • 2 bed • 1 bath • 757 ft²
2 bedroom flat for sale in Walworth Road, Elephant and Castle, London, SE17 — £825,000 • 2 bed • 2 bath • 880 ft²
2 bedroom flat for sale in Waleorde Road, Elephant and Castle, London, SE17 — £550,000 • 2 bed • 1 bath • 758 ft²
2 bedroom flat for sale in Steedman Street, Elephant and Castle, London, SE17 — £500,000 • 2 bed • 1 bath • 912 ft²
2 bedroom flat for sale in Angel Lane, Elephant and Castle, LONDON, SE17 — £585,000 • 2 bed • 2 bath • 815 ft²
2 bedroom flat for sale in Wansey Street, Elephant and Castle, SE17 — £590,000 • 2 bed • 1 bath • 701 ft²










































































































































































































































































































































































