Bright interior, garden and garage ideal for growing families seeking space and transport links.
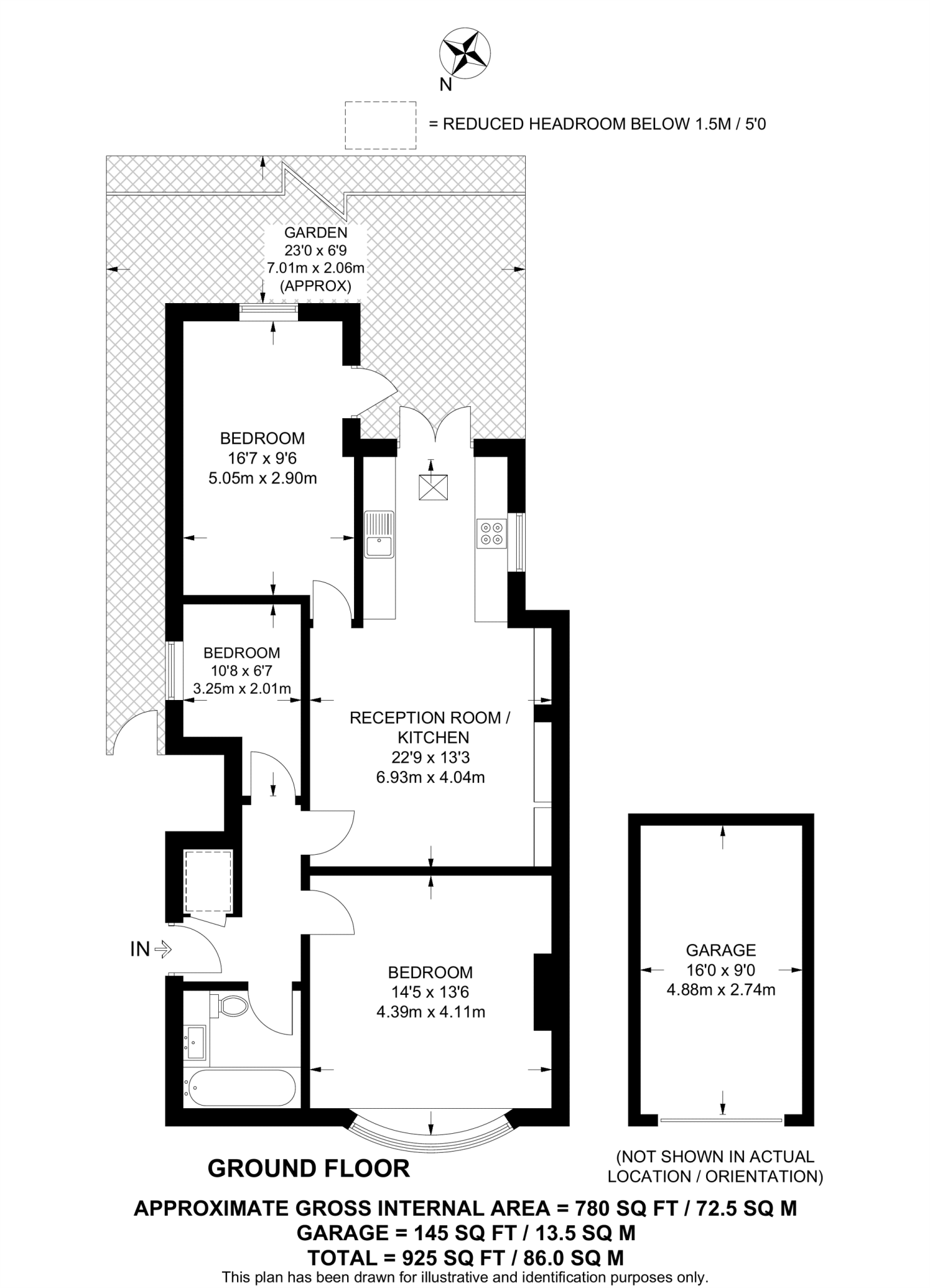
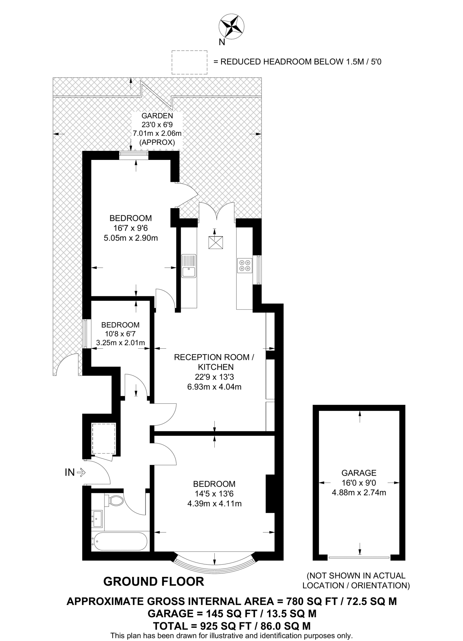
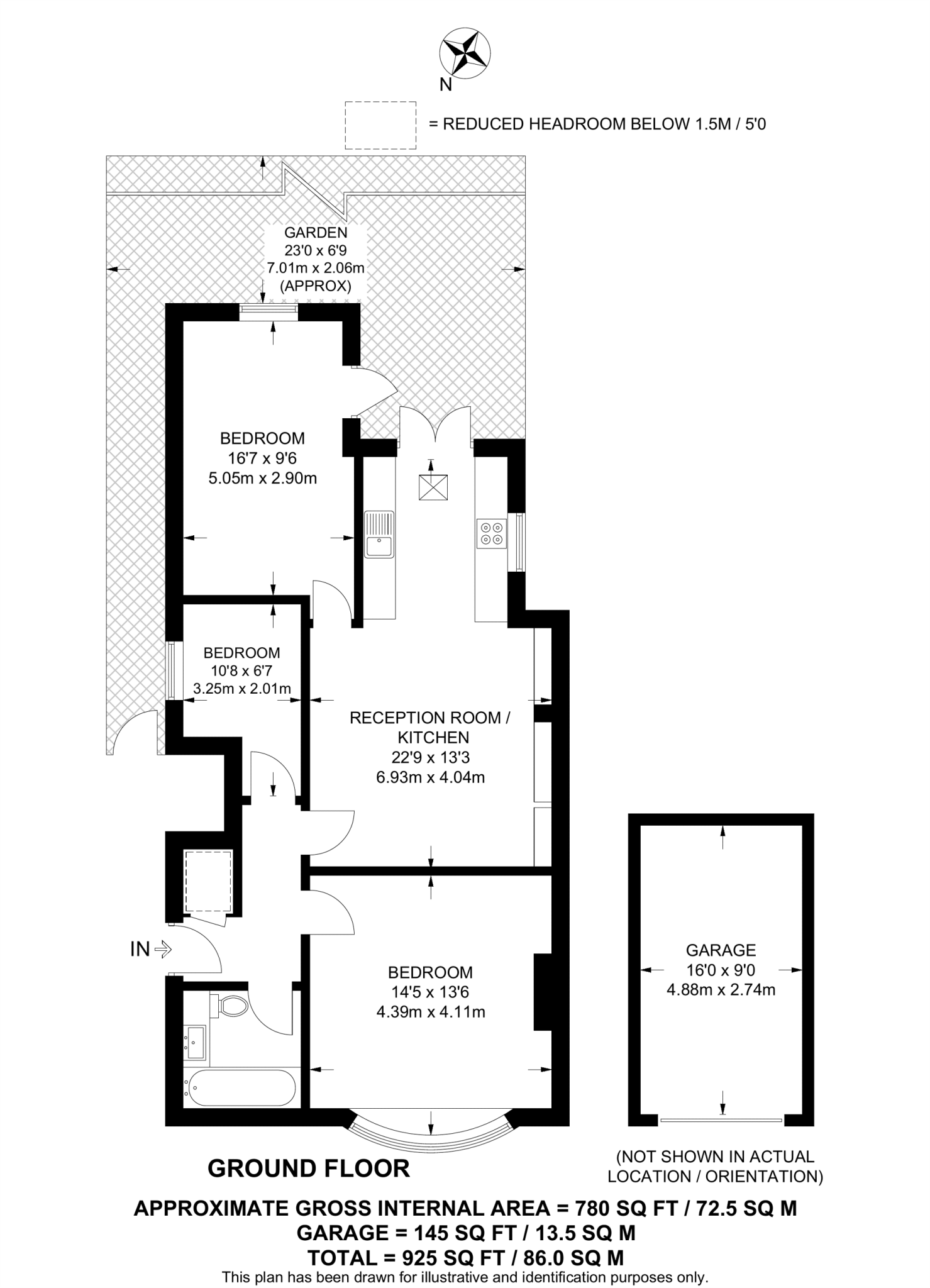
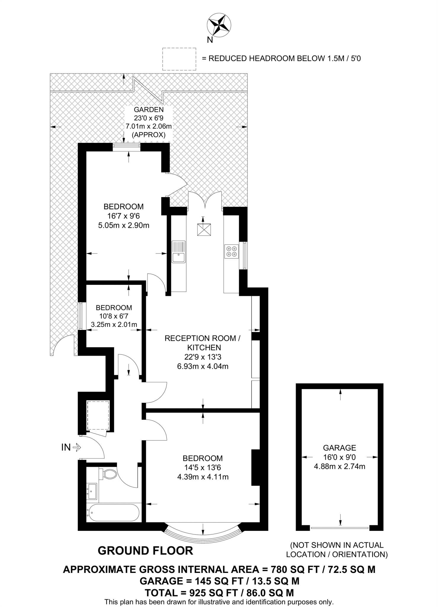
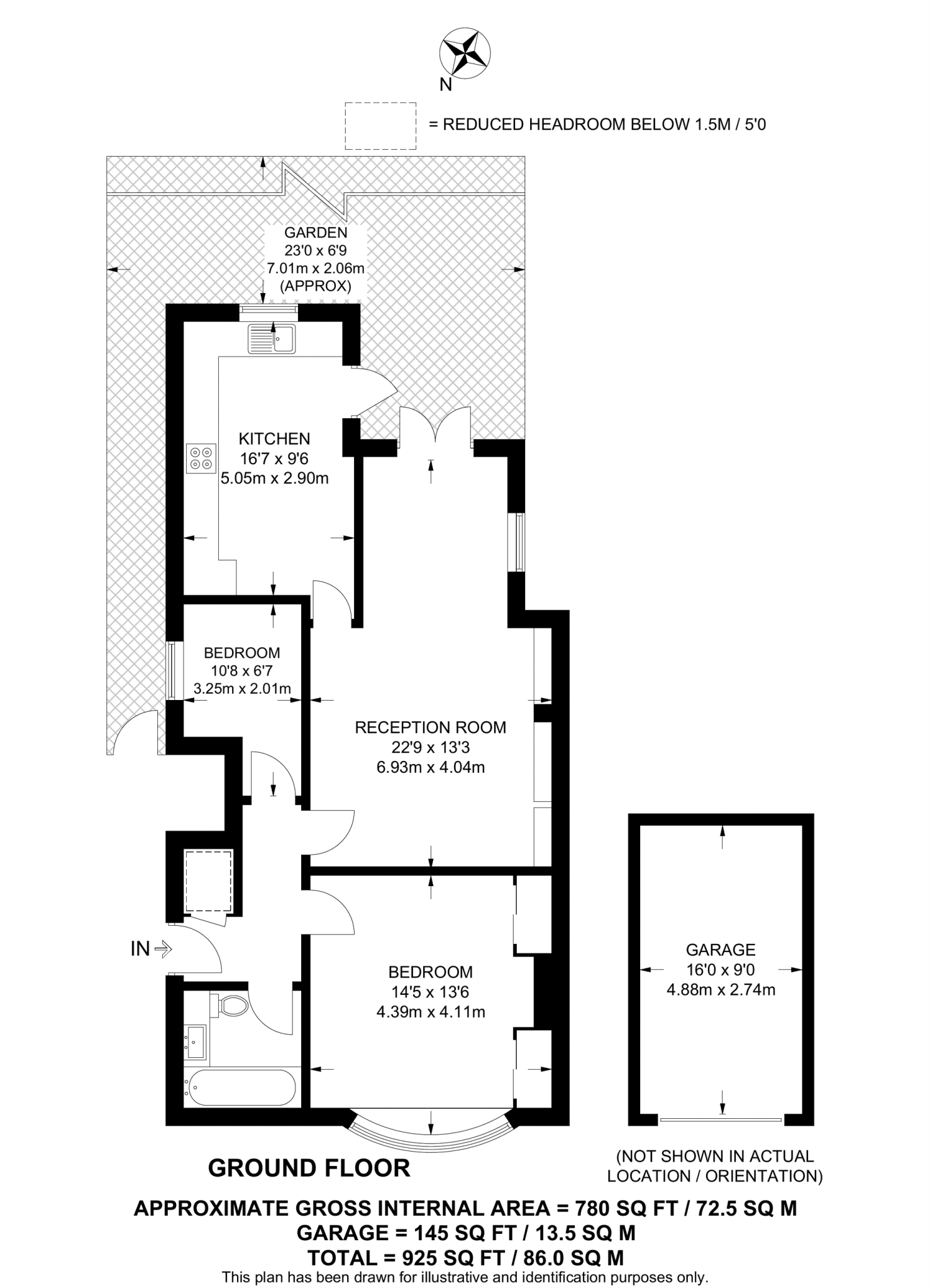
3 double bedrooms and extended, bright reception room
Private rear garden plus single garage — rare for a ground-floor flat
Eat-in contemporary kitchen; modern bathroom
Approx 925 sq ft — generous layout for a maisonette
Share of freehold with 990-year lease — long-term security
Solid brick construction; probable limited wall insulation
High local crime and area deprivation — important for buyers to consider
Near Gladstone Park and Dollis Hill Jubilee Line for city links
This ground-floor 3-bedroom maisonette offers spacious, versatile living across approximately 925 sq ft. A bright, extended reception room and an eat-in contemporary kitchen create comfortable day-to-day living, while a private rear garden and garage add rare outdoor and storage space for a ground-floor flat.
Located on a quiet cul-de-sac close to Gladstone Park and the shops, bars and restaurants of Willesden Green, the property benefits from convenient transport links — Dollis Hill (Jubilee line) provides direct access into central London. Several well-rated local primary and secondary schools are within reach, including an outstanding junior school.
The flat is share of freehold with a very long lease (990 years) and mains gas central heating via boiler and radiators. Built in the 1930s–1940s with solid brick walls, the property has double glazing (install date unknown) but likely limited wall insulation; some energy-improvement work may be beneficial.
Practical considerations: the area records higher crime levels and broader socio-economic deprivation, which may concern some buyers. The property is presented in move-in condition with a modern bathroom, but potential buyers who prioritise top-tier energy efficiency or very low-crime neighbourhoods should factor in likely improvements or ongoing local issues.
2 bedroom flat for sale in Westview Close, Neasden, London, NW10 — £385,000 • 2 bed • 2 bath • 683 ft²
3 bedroom flat for sale in Dollis Hill Lane, Dollis Hill, London, NW2 — £500,000 • 3 bed • 2 bath • 968 ft²
3 bedroom maisonette for sale in Severn Way, Willesden, London, NW10 — £460,000 • 3 bed • 1 bath • 715 ft²
3 bedroom ground floor maisonette for sale in Lovat Close, London, NW2 — £499,950 • 3 bed • 1 bath • 773 ft²
3 bedroom flat for sale in Sidmouth Road, Willesden Green, London, NW2 — £750,000 • 3 bed • 2 bath • 1327 ft²
3 bedroom flat for sale in Palermo Road, Kensal Green, London, NW10 — £600,000 • 3 bed • 2 bath • 853 ft²










































































































































































































































