Move-in ready two-bedroom terrace with garage and low-maintenance garden.
Two double bedrooms and a family bathroom
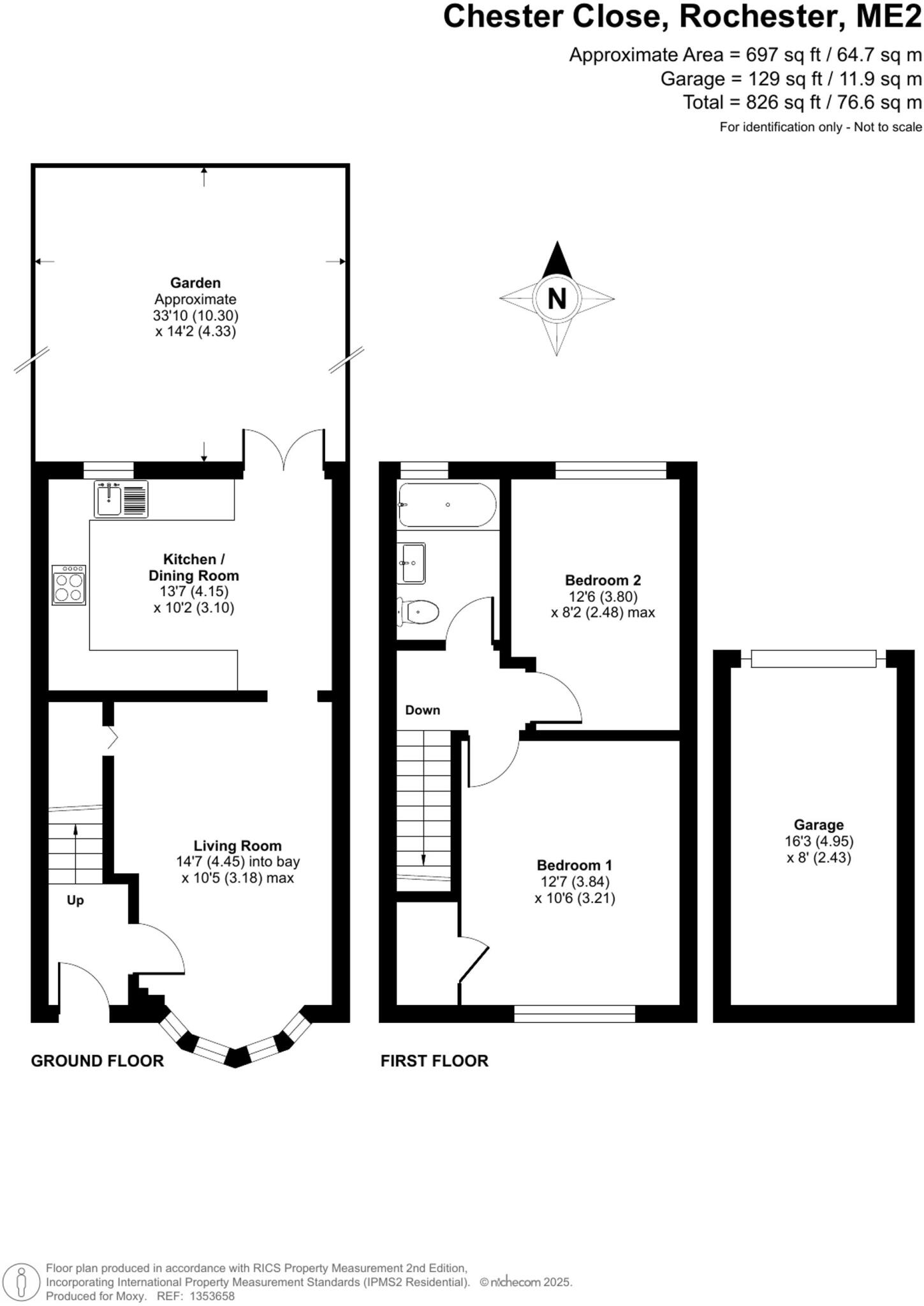
Tidy two-double-bedroom mid-terrace in a quiet Strood cul-de-sac, presented as move-in ready and aimed squarely at first-time buyers or buyers downsizing. The ground floor offers a modern eat-in kitchen/diner and a comfortable living room; upstairs are two generous bedrooms and a contemporary three-piece bathroom. Outside is a low-maintenance rear garden with decking and artificial grass plus an en-bloc garage.
Practical running costs are reasonable: freehold tenure, mains gas central heating with boiler and radiators, double glazing (install date unknown) and an EPC C. There is no reported flood risk and local crime levels are low. The property sits close to good primary and secondary schools (including an Outstanding primary), regular bus routes and Strood station for commuter links to central London.
Known limitations are straightforward and factual: the plot is small, there’s a single family bathroom, and the house was originally built 1976–1982 so some buyers may want to budget for future modernisation or checks on insulation and glazing. The wider area is classified as blue-collar terraces with hampered neighbourhood characteristics, which may influence resale expectations and local amenity levels.
For a first-time buyer seeking an affordable, low-upkeep starter home with a practical layout, garage parking and quick access to transport, this property offers a clear, ready-to-live-in option. Viewings will show whether cosmetic updates or energy-efficiency improvements are priorities for you.
3 bedroom terraced house for sale in Nottingham Walk, Rochester, Kent, ME2 — £300,000 • 3 bed • 1 bath • 1005 ft²
2 bedroom terraced house for sale in Rushdean Road, Rochester, Kent, ME2 — £300,000 • 2 bed • 1 bath • 718 ft²
2 bedroom terraced house for sale in Moore Street, Strood - Close to train station, ME2 — £265,000 • 2 bed • 1 bath • 751 ft²
2 bedroom end of terrace house for sale in Slatin Road, Rochester, Kent, ME2 — £220,000 • 2 bed • 1 bath • 761 ft²
3 bedroom semi-detached house for sale in Rochester, Kent, ME2 — £375,000 • 3 bed • 2 bath • 923 ft²
2 bedroom terraced house for sale in The Spires, Rochester, ME2 — £260,000 • 2 bed • 1 bath • 711 ft²






































































