Low-entry buy-to-let with immediate rental income and uplift potential.
Tenant in situ with consistent long-term payments
Current gross annual income £4,800; market potential £7,008
Freehold flat in Victorian mixed-use building
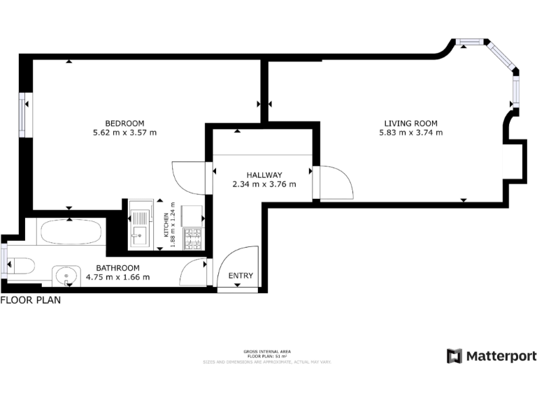
Average 538 sqft; compact rooms, bedroom is small
Building shows period features and high ceilings
Area classified as very deprived — demand risks for some buyers
Property requires light refurbishment and reorganisation
Buyers' premium applies; tenant likely to remain
This one-bedroom flat in a Victorian mixed-use building on Neilston Road offers a straightforward buy-to-let entry at a low purchase price. The property is freehold and comes with a long-term tenant in situ, producing a current gross annual income of £4,800 with realistic potential to rise to £7,008 at market rent.
Accommodation is traditional in layout with an average overall size: lounge, kitchen, bedroom and three-piece bathroom. Period features such as bay windows and high ceilings in the building give character, while internal rooms are compact and would benefit from reorganisation or light refurbishment to maximise rental value.
The flat sits in a very deprived area with excellent mobile signal and fast broadband — practical for working professionals and long-term tenants. There is no flooding risk recorded. Buyers should note the property is sold with an existing tenancy (tenants wish to stay) and a buyers’ premium will apply to secure purchase.
This is primarily an investor/developer opportunity: low entry price, immediate income, and scope to improve returns through redecoration, better furnishings, and rent uplift. However, buyers should factor in the local area’s deprivation level, likely maintenance/modernisation costs, and the presence of the sitting tenant when assessing near-term access and refurbishment plans.
1 bedroom flat for sale in Broomlands Street, Paisley, PA1 — £32,000 • 1 bed • 1 bath • 452 ft²
2 bedroom flat for sale in Rowan Wynd, Paisley, Renfrewshire, PA2 — £100,000 • 2 bed • 2 bath • 786 ft²
2 bedroom flat for sale in Netherhill Road, Paisley, PA3 — £65,000 • 2 bed • 1 bath • 689 ft²
2 bedroom flat for sale in Rowan Wynd, Paisley, Renfrewshire, PA2 — £98,000 • 2 bed • 2 bath • 786 ft²
2 bedroom flat for sale in Brabloch Park, Paisley, PA3 — £115,000 • 2 bed • 2 bath • 466 ft²
2 bedroom flat for sale in Clavering Street West, Paisley, Renfrewshire, PA1 — £50,000 • 2 bed • 1 bath • 624 ft²


































































