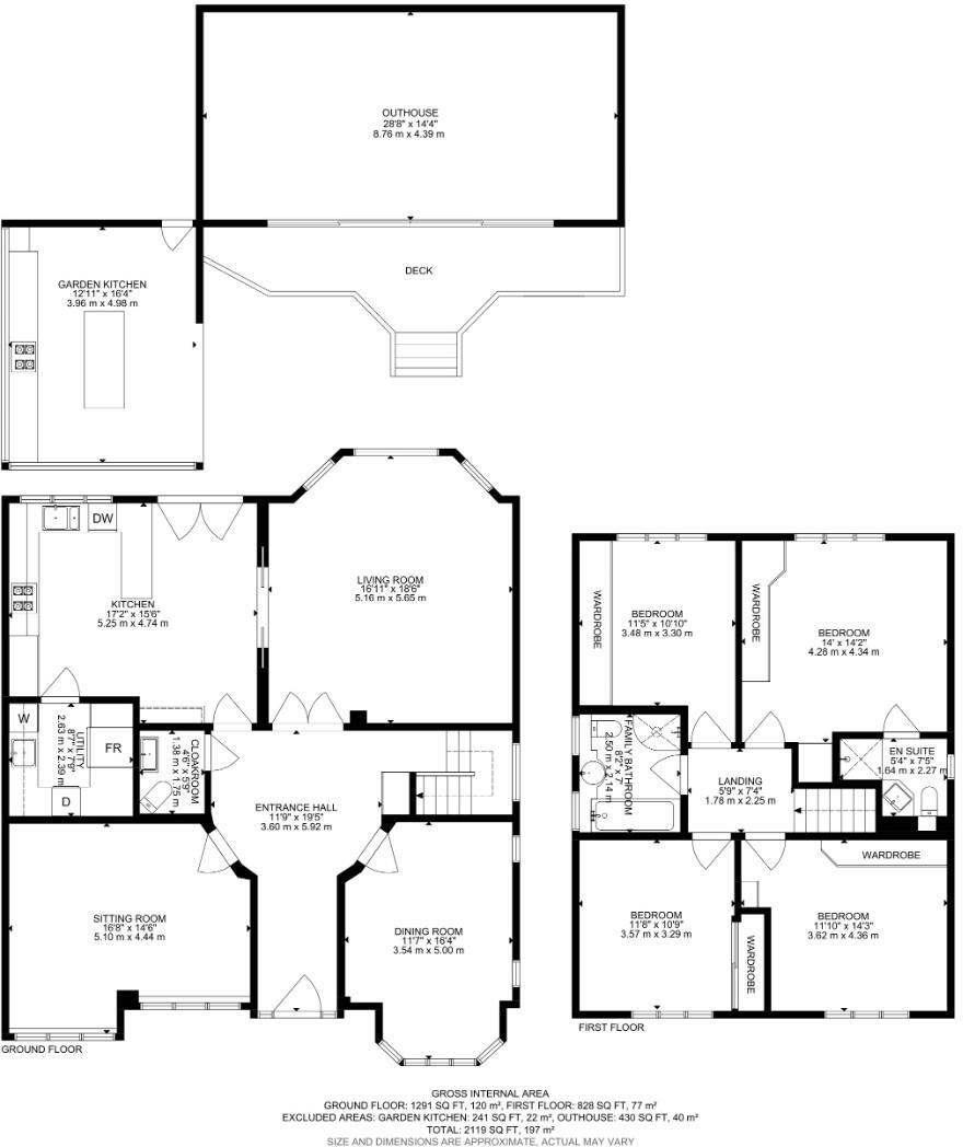
Large family home with versatile outhouse and parking for four cars.
Four double bedrooms and three bathrooms, spacious layout
This substantial four-bedroom detached home on Traps Hill combines Tudor-revival character with generous family space. High ceilings and well-proportioned reception rooms create an airy feel, while double glazing and mains gas central heating offer modern comfort. The property includes a high-quality outhouse with a fully functioning kitchen — ideal as a home office, guest suite or ancillary accommodation.
Practical daily living is well catered for: a utility room, guest cloakroom and private off-street parking for four to five cars remove common suburban headaches. Loughton Underground is about a 15-minute walk and the High Road’s shops and amenities are close by, making commuting and errands straightforward. Local schools are rated Good to Outstanding, which will appeal to families.
Buyers should note this is a large older house (built 1954) on a substantial plot, which brings both charm and potential maintenance or modernisation costs. Council tax is described as quite expensive. Overall, the home offers strong family appeal and scope to personalise, with the outhouse providing flexible additional space.
4 bedroom detached house for sale in Traps Hill, Loughton, IG10 — £1,150,000 • 4 bed • 2 bath • 1903 ft²
6 bedroom detached house for sale in Traps Hill, Loughton, Essex, IG10 — £2,500,000 • 6 bed • 3 bath • 4039 ft²
4 bedroom detached house for sale in Traps Hill, Loughton, IG10 — £1,150,000 • 4 bed • 2 bath • 1788 ft²
5 bedroom detached house for sale in Tycehurst Hill, Loughton, Essex, IG10 — £2,000,000 • 5 bed • 2 bath • 3003 ft²
4 bedroom detached house for sale in Hilltop Close, Loughton, IG10 — £1,450,000 • 4 bed • 1 bath • 2442 ft²
4 bedroom house for sale in Spareleaze Hill, Loughton, IG10 — £1,895,000 • 4 bed • 2 bath • 2527 ft²


























































































































































