Half-acre plot with courts, garages and excellent commuter links to Central London.
Approximately 0.5 acre plot with tennis and basketball courts
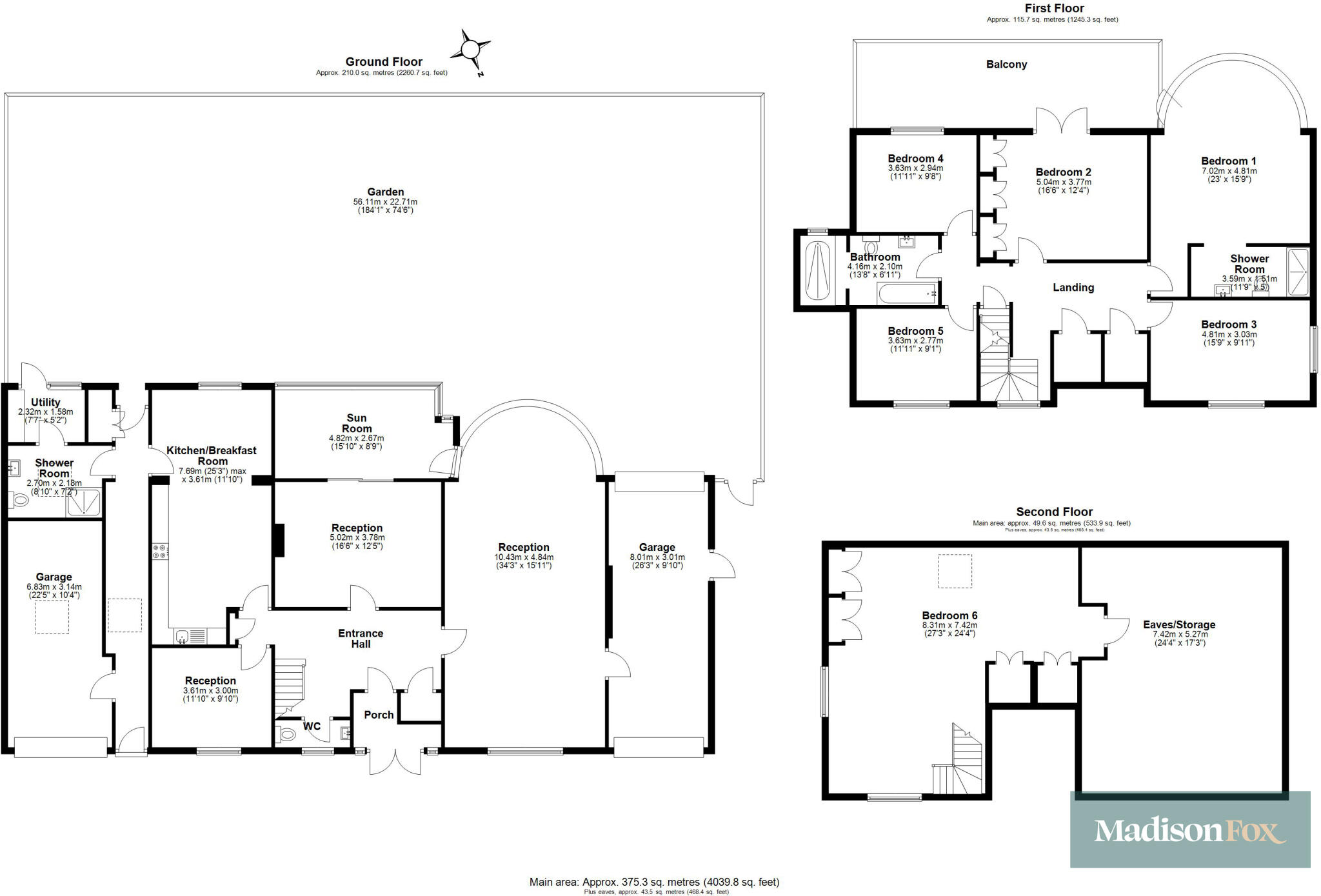
Set on approximately 0.5 acre on one of Loughton’s premier roads, this 4,039 sq ft detached house offers substantial family living across three floors. The ground floor provides multiple reception rooms, a large kitchen-diner, utility, cloakroom and direct garage access, while upper floors include a principal suite with ensuite and private terrace plus five further bedrooms. Large outdoor spaces include a private lawn, tennis and basketball courts and a carriage driveway with two garages.
The house was built mid-20th century and retains traditional solid-brick construction and characterful proportions, but some updating is required. Double glazing was installed before 2002 and walls are assumed uninsulated, so buyers should budget for modernisation and improved energy efficiency if desired. There is planning potential to extend subject to permissions, offering an opportunity to create a bespoke family layout or increase footprint.
Location is a major strength: walking distance to Loughton High Road and the Central Line station (around 30 minutes to central London), excellent local schools nearby, easy access to the M11/M25 and proximity to Epping Forest. The area is very affluent with low crime, fast broadband and strong mobile signal, supporting commuter and family lifestyles.
Practical points: the property is freehold, mains gas heated via boiler and radiators, and not in a flood risk area. Council tax is noted as quite expensive. Interested parties should verify all measurements, planning history and services; some fixtures and systems may need checking or replacement.
4 bedroom detached house for sale in Traps Hill, Loughton, IG10 — £1,500,000 • 4 bed • 3 bath • 2119 ft²
5 bedroom detached house for sale in Tycehurst Hill, Loughton, Essex, IG10 — £2,800,000 • 5 bed • 5 bath • 5085 ft²
4 bedroom detached house for sale in Traps Hill, Loughton, IG10 — £1,150,000 • 4 bed • 2 bath • 1903 ft²
5 bedroom detached house for sale in West View, Loughton, Essex, IG10 — £1,975,000 • 5 bed • 3 bath • 3571 ft²
4 bedroom detached house for sale in Woodbury Hill, Loughton, IG10 — £1,925,000 • 4 bed • 3 bath • 3206 ft²
6 bedroom detached house for sale in St. Johns Road, Loughton, Essex, IG10 — £2,100,000 • 6 bed • 4 bath • 3938 ft²


























































































































































