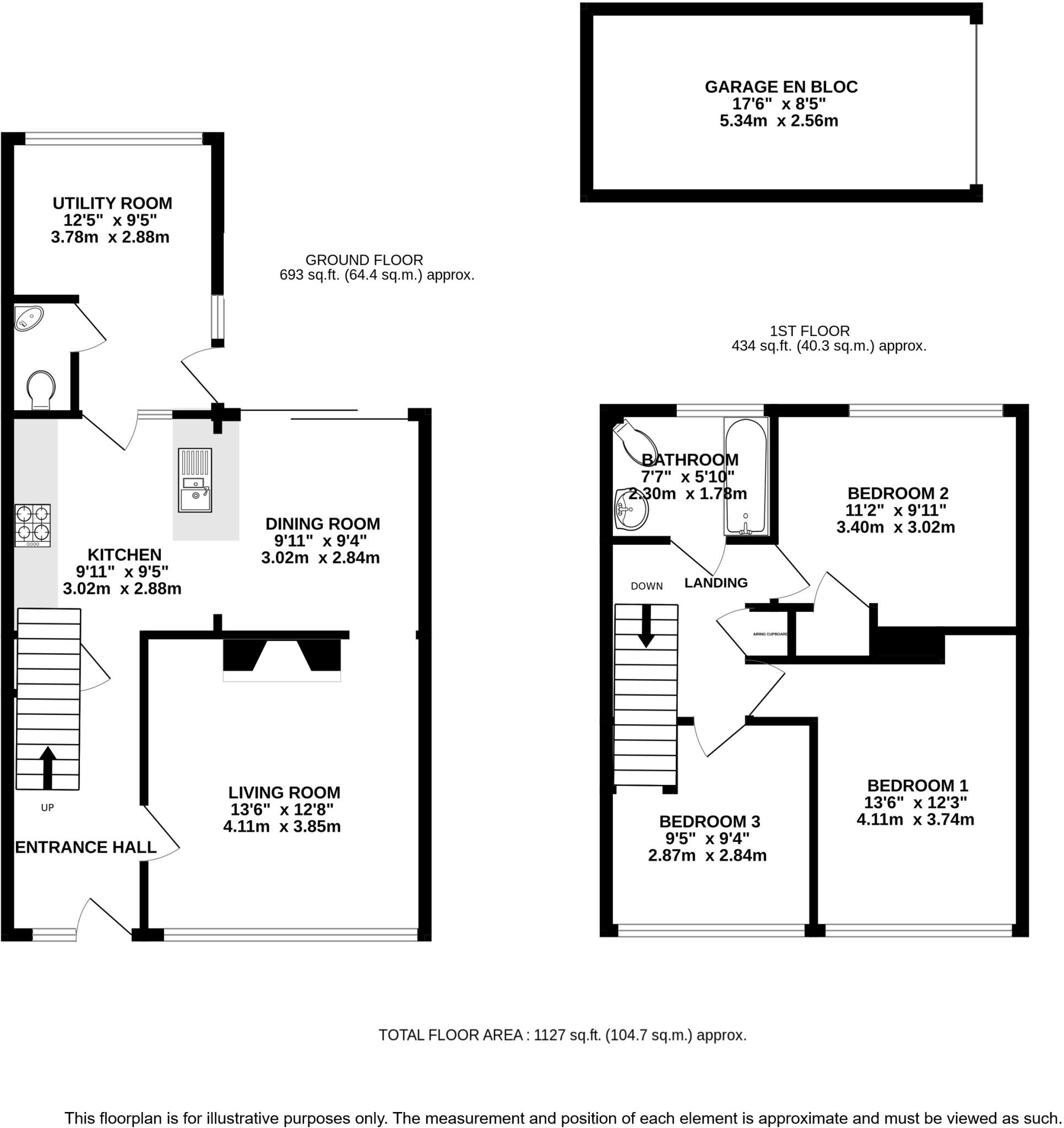
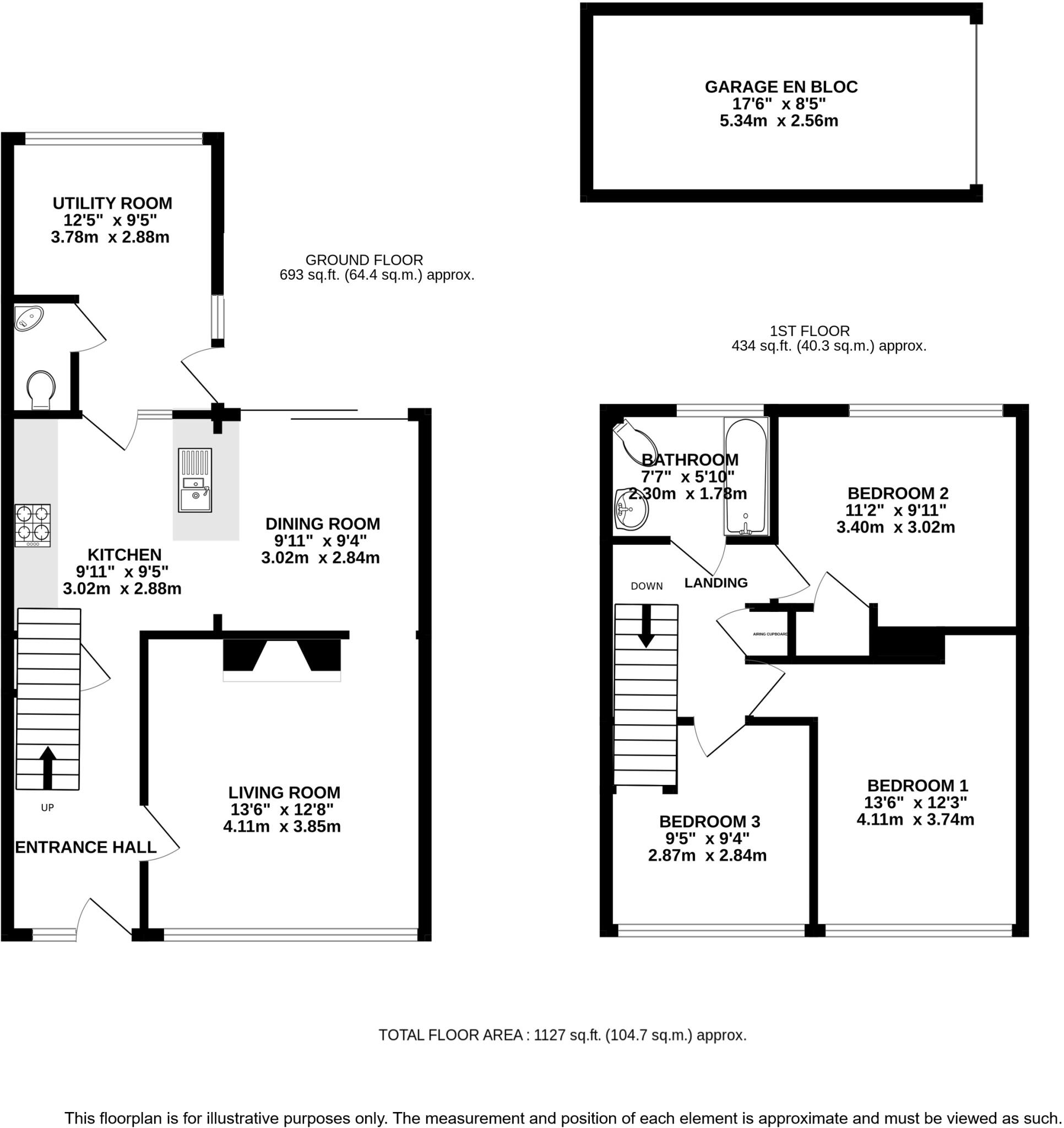
Quiet three-bedroom house with garage and generous rear garden, close to schools and transport links.
- Three bedrooms, two doubles
- Living room with wood-burning stove
- Open-plan kitchen/diner with sliding doors
- Private rear garden approx. 40ft depth
- Single garage at rear (en bloc)
- Timber-frame era, partial insulation assumed
- Double glazing installed before 2002
- Slow broadband and small plot size
This three-bedroom mid-terrace sits on a quiet green in picturesque Kensworth, offering practical family accommodation across two floors. The living room centres on a wood-burning stove and overlooks the front garden; to the rear a bright kitchen/dining room opens via sliding doors onto a private 40ft garden. A useful utility room and a single garage at the end of the garden add everyday convenience.
Built in the late 1960s/early 1970s with timber-frame elements and double glazing fitted before 2002, the house is well presented but offers clear scope to improve energy efficiency and modernise finishes. The family bathroom is stylishly fitted, and two of the three bedrooms are doubles, making the layout well suited to young families or buyers seeking a comfortable village home.
Practical points include mains gas central heating with boiler and radiators, an affordable council tax band, and straightforward access to local amenities, good primary schools, the M1 and Luton Airport. Broadband speeds are slow and the plot is modest in size, which are factors to weigh for those needing high-speed internet or extensive outdoor space.
Overall, the property combines a peaceful village location and usable family living with realistic potential to enhance thermal performance and personalise through updating. It’s a sensible choice for buyers wanting a move-in-ready home with room to add value through targeted improvements.
3 bedroom terraced house for sale in The Chilterns, Kensworth, Bedfordshire, LU6 — £340,000 • 3 bed • 1 bath • 950 ft²
3 bedroom semi-detached house for sale in Lynch Hill, Kensworth, LU6 — £400,000 • 3 bed • 1 bath • 872 ft²
2 bedroom terraced house for sale in Row Beech Cottages, Watling Street, Dunstable, LU6 — £350,000 • 2 bed • 1 bath • 1110 ft²
4 bedroom detached bungalow for sale in Dovehouse Lane, Kensworth, Dunstable, LU6 — £839,000 • 4 bed • 3 bath • 2454 ft²
3 bedroom semi-detached house for sale in Tyburn Lane, Westoning, MK45 — £365,000 • 3 bed • 1 bath • 700 ft²
5 bedroom detached house for sale in Lynch Hill, Kensworth, Dunstable, Bedfordshire, LU6 — £1,650,000 • 5 bed • 6 bath • 4243 ft²














































































































































































