Shared-ownership two-bedroom with parking, Juliette balcony and long lease for first-time buyers..
Shared ownership option reduces upfront cost
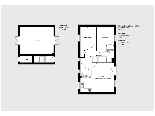
A bright two-bedroom shared-ownership apartment on the ground floor offers a practical entry into the market. The open-plan living area includes a Juliette balcony and a fitted kitchen with oven, hob and hood, while a modern white bathroom serves both bedrooms. The property includes one allocated off-street parking space and benefits from a very long lease (990 years).
This is a new-build apartment with low immediate maintenance needs, though the communal garden area is overgrown and will need attention. Service charges apply (listed as £1,382.64 average) and the development sits in an area with above-average crime rates, which buyers should factor into security and insurance decisions.
Shared ownership reduces the upfront cost: full market value is c. £315,000 with a 40% minimum share example. Estimated monthly costs combining rent and service charge are provided, so calculate total monthly outlay against other commitments. The location is near well-rated primary and secondary schools and quiet waterside/canal scenery, useful for those seeking green nearby amenities.
2 bedroom flat for sale in The Green,
Theale,
Reading,
RG75JQ, RG7 — £123,000 • 2 bed • 1 bath • 535 ft²
2 bedroom flat for sale in The Green,
Theale,
Reading,
RG75JQ, RG7 — £307,500 • 2 bed • 1 bath • 536 ft²
2 bedroom apartment for sale in Quiller Avenue, Arborfield Green, Reading, Berkshire, RG2 — £320,000 • 2 bed • 2 bath • 722 ft²
2 bedroom flat for sale in Beatty Rise, Reading, Berkshire, RG7 — £168,750 • 2 bed • 1 bath • 654 ft²
2 bedroom apartment for sale in Ruskin, Henley Road, Caversham, Reading, RG4 — £56,250 • 2 bed • 1 bath • 631 ft²
2 bedroom apartment for sale in Budd Grove, Winnersh, Wokingham, RG41 — £108,500 • 2 bed • 1 bath • 807 ft²






































































