Shared-ownership first-floor home with parking and long lease ideal for first-time buyers.
Open-plan living room with Juliette balcony
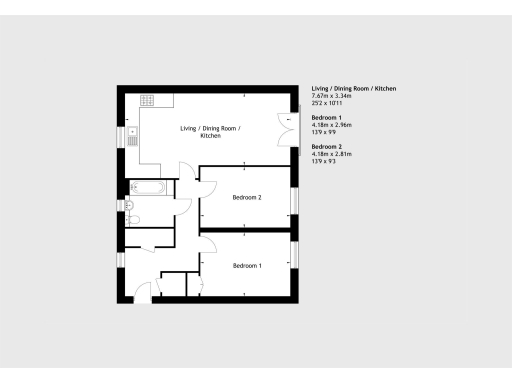
A bright first-floor, two-bedroom apartment arranged around an open-plan living space with a Juliette balcony. The fitted kitchen includes oven, hob and hood; the bathroom is a modern white suite. The home is part of a new-build shared ownership scheme offering a long lease of 990 years and its own off-street parking space.
This property suits a first-time buyer seeking a compact, low-maintenance home close to local amenities. The development sits in a very affluent area with excellent mobile signal and average broadband speeds. Nearby schooling includes several highly rated primary and secondary options, including an Outstanding primary.
Buyers should note the shared ownership costs: a reservation fee of £500, estimated monthly rent (£422.81) and service charge (annual review, approx. £1,382.64 yearly). Estimated combined monthly payments are around £1,201.49 based on a 40% share. The site reports above-average local crime rates, and the overall internal floor area is small at 536 sq ft—best suited to those comfortable with compact living.
The flat’s long lease and new-build specification reduce immediate maintenance concerns and provide straightforward move-in readiness. For a purchaser looking to step onto the property ladder with lower upfront capital, the minimum 40% share and modest deposit requirement may make this a practical option.
2 bedroom flat for sale in The Green,
Theale,
Reading,
RG75JQ, RG7 — £123,000 • 2 bed • 1 bath • 535 ft²
2 bedroom flat for sale in The Green,
Theale,
Reading,
RG75JQ, RG7 — £310,000 • 2 bed • 1 bath • 1448 ft²
2 bedroom flat for sale in Newbury, Berkshire, RG14 — £107,500 • 2 bed • 1 bath • 683 ft²
2 bedroom apartment for sale in Kingman Way, Newbury, Berkshire, RG14 — £119,250 • 2 bed • 1 bath • 777 ft²
2 bedroom apartment for sale in Kingman Way, Newbury, Berkshire, RG14 — £108,000 • 2 bed • 1 bath • 785 ft²
2 bedroom flat for sale in Beatty Rise, Reading, Berkshire, RG7 — £168,750 • 2 bed • 1 bath • 654 ft²






























































































