Significant barns, workshops and land offering flexible residential or commercial potential.
Approximately 17 acres of mature grounds, woodland and pond
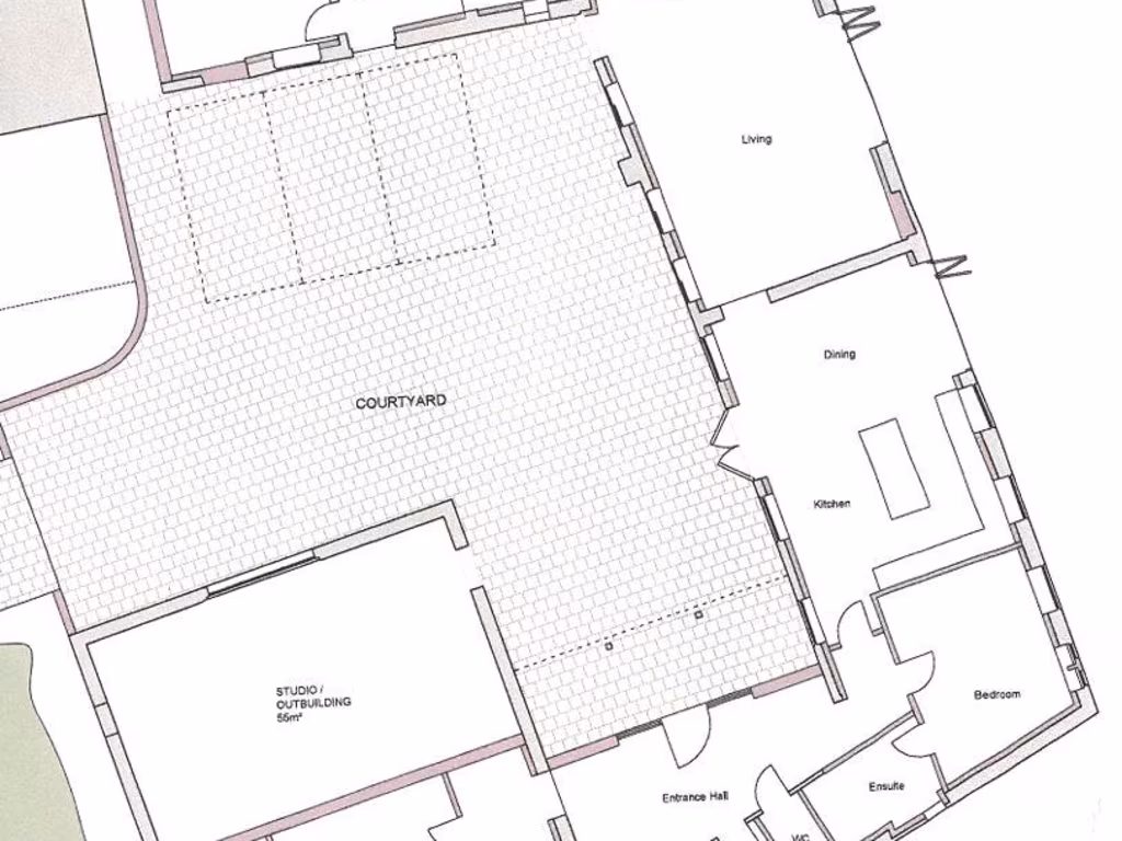
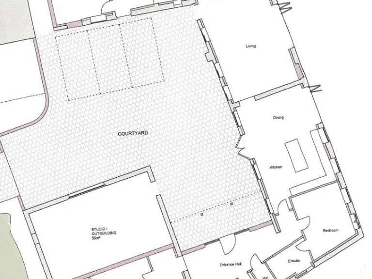
A rare development parcel in north Norwich, North Farm combines a handsome four-bedroom Georgian farmhouse with roughly 17 acres of mature grounds, two historic barns with conversion plans in progress, and extensive commercial workshops. The farmhouse provides about 1,400 sq ft of liveable space — two reception rooms, kitchen, home office/fourth bedroom and one family bathroom — alongside a 22ft x 13ft boiler room that could be repurposed (STP). The site already benefits from double glazing, oil-fired heating, mains water and a septic tank.
The headline value is the outbuildings and land: two very large workshops (approx. 2,400 sq ft and 4,600 sq ft) with existing light industrial commercial use and 3-phase power, a 2,200 sq ft dilapidated barn, and two historic barns for which detailed planning applications are currently awaited. When converted as proposed, the barns could deliver substantial additional living space and a front courtyard with parking — attractive to buyers seeking a high-value barn conversion or mixed commercial/residential project.
Practical considerations are straightforward but important. Detailed planning permission is not yet granted, so timelines and costs for conversion remain uncertain. The property uses a septic tank for drainage and oil-fired heating, which may require upgrades for some buyers. The farmhouse has period character but is modest in size with just one bathroom. Parts of the site — notably the dilapidated barn — will need significant repair or demolition.
For developers, investors or buyers seeking a countryside project with commercial potential, this is a genuinely rare, flexible opportunity. The location offers village tranquillity with quick access to Norwich and the Norfolk coast, fast broadband and excellent mobile signal, making the site viable for a range of future uses subject to planning.
4 bedroom detached house for sale in Norwich Road, Hardingham, NR9 — £600,000 • 4 bed • 1 bath • 5600 ft²
4 bedroom detached house for sale in Ketteringham Lane, Hethersett, NR9 — £1,250,000 • 4 bed • 3 bath • 4730 ft²
5 bedroom detached house for sale in Honingham, Norwich, Norfolk, NR9 — £1,425,000 • 5 bed • 3 bath • 9670 ft²
4 bedroom farm house for sale in Alpington, Norwich, Norfolk, NR14 — £825,000 • 4 bed • 2 bath • 2147 ft²
6 bedroom detached house for sale in Wacton Road, Forncett St. Peter, Norwich, NR16 — £700,000 • 6 bed • 3 bath • 3216 ft²
5 bedroom detached house for sale in Saxlingham Thorpe, NR15 — £1,150,000 • 5 bed • 3 bath • 2246 ft²














































































































































































































































































