Large period house with double-height barn and extensive development potential near Wymondham.
Grade II listed farmhouse with extensive period features
Double-height barn plus multiple outbuildings and large hardstanding
Approx. 5,600 sq ft of barn/outbuilding space to renovate or convert
Offered chain free; large plot with mature gardens and sweeping drive
Requires comprehensive refurbishment; roofs and internal modernisation needed
Listed status will limit alterations and complicate conversions
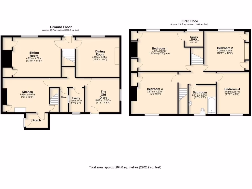
Single family bathroom for a four-bedroom house; services include private drainage
Council tax band F — classified as expensive
Set within tranquil Norfolk countryside, this Grade II listed farmhouse and adjoining double-height barn offer exceptional restoration and development potential. The main house retains period character — wide staircase, original dairy and formal reception rooms — across four large bedrooms. The substantial site includes extensive outbuildings, stabling, a two-storey granary and large hardstanding, creating scope for multiple uses subject to consent.
The property is offered chain free and measures around 5,600 sq ft of internal outbuilding space, approached by a sweeping drive and mature, well-stocked front garden. Services include mains electricity and water, oil-fired central heating to radiators and private drainage. There is no flood risk and the setting is very quiet with low local crime.
Important practical points: the house is unmodernised and requires comprehensive refurbishment throughout, including likely structural and roof works on some buildings. Listed status will restrict alterations and may complicate conversions — prospective buyers should seek specialist advice and investigate planning and listed building consent before proposing works. No planning permissions or development schedules have been lodged.
This is a clear opportunity for an experienced developer, barn-conversion specialist or buyer seeking a large country home with ancillary income potential. The property’s remoter setting provides privacy and broad countryside views, while nearby towns such as Wymondham and Hingham supply amenities and regional rail links.
4 bedroom farm house for sale in The Farm House, Hill Farm, Horning Road, Neatishead, Norfolk, NR12 — £650,000 • 4 bed • 1 bath • 1770 ft²
5 bedroom farm house for sale in Low Common, Deopham, NR18 — £1,250,000 • 5 bed • 4 bath • 3821 ft²
5 bedroom detached house for sale in Silver Street, Besthorpe, NR17 — £975,000 • 5 bed • 4 bath • 5400 ft²
3 bedroom country house for sale in County School, North Elmham, NR20 — £850,000 • 3 bed • 2 bath • 812 ft²
4 bedroom cottage for sale in Hardingham, Norwich, NR9 — £845,000 • 4 bed • 3 bath • 2292 ft²
4 bedroom farm house for sale in Hardwick, Norwich, NR15 — £700,000 • 4 bed • 1 bath • 2644 ft²


























































