- Victorian mid-terrace within Canterbury city walls
- Two bedrooms and two bathrooms in compact 600 sq ft layout
- Log-burning stove in lounge; neutral, move-in ready decor
- Private rear garden with mature plants; very small plot
- Freehold and being sold chain free for quick completion
- Solid brick walls likely without insulation (thermal upgrade needed)
- High local flood risk; may affect insurance and risk plans
- Local area crime reported as very high; consider security measures
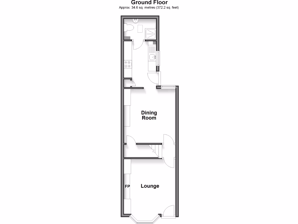
This attractive Victorian mid-terrace sits within Canterbury’s city walls and is presented ready to move into. The bay-fronted façade and period proportions give immediate kerb appeal, while the interior has a neutral, modern finish throughout. The lounge benefits from a cosy log-burning stove and the layout includes two bedrooms and two bathrooms — a rare convenience in a house of this size.
The property is chain free and offered as a freehold, making it straightforward for buyers looking to move quickly. A private rear garden with mature plants provides an outdoor space, but the plot is very small and designed for low-maintenance use rather than extensive gardening. Total internal area is about 600 sq ft, so the home will suit buyers seeking compact city living rather than large family accommodation.
Buyers should note material considerations: the building is a solid-brick Victorian construction with no assumed wall insulation, and the location is in a high flood-risk zone. Crime levels in the immediate area are reported as very high. These factors may affect insurance costs and future improvement plans. Heating is via mains gas boiler and radiators, and windows are double glazed (installation date unknown).
Overall this is a well-presented city home that will appeal to first-time buyers, professionals or investors wanting a compact, characterful property close to amenities. It offers immediate occupation and easy access to local schools, shops and transport, but consider the flood risk, local crime statistics and potential work to improve thermal efficiency before committing.
2 bedroom terraced house for sale in Beer Cart Lane, Canterbury, Kent, CT1 — £400,000 • 2 bed • 1 bath • 786 ft²
2 bedroom terraced house for sale in St Edmunds Road, Canterbury, CT1 — £280,000 • 2 bed • 1 bath • 567 ft²
2 bedroom terraced house for sale in St. Peters Grove, Canterbury, Kent, CT1 — £325,000 • 2 bed • 2 bath • 650 ft²
2 bedroom terraced house for sale in Beer Cart Lane, Canterbury, CT1 2NY, CT1 — £385,000 • 2 bed • 1 bath • 910 ft²
2 bedroom terraced house for sale in Stour Street, Canterbury, CT1 — £350,000 • 2 bed • 1 bath • 613 ft²
3 bedroom terraced house for sale in St. Peter's Lane, Canterbury, Kent, CT1 — £395,000 • 3 bed • 1 bath • 786 ft²














































