Spacious three-storey home with garage, decking and convenient town access.
Four bedrooms across three floors, flexible family accommodation
Main bedroom with built-in wardrobes and private en-suite
Modern fitted kitchen plus separate utility room
Driveway for two cars and single garage for storage
Low-maintenance rear garden with decking
Built 2003–2006, double glazed, gas central heating
Council Tax Band E (above average) and high local crime levels
Area classified as very deprived; consider local socio-economic factors
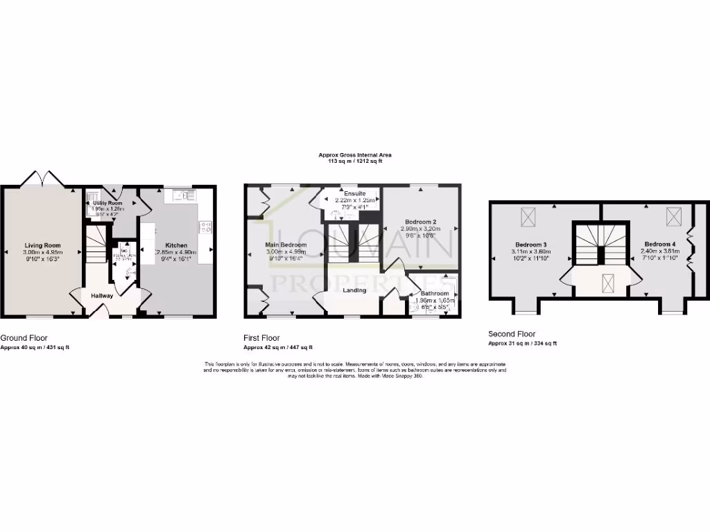
This modern detached family home is arranged over three floors and offers flexible living for a growing household. The well-proportioned living room, modern fitted kitchen with utility, and ground-floor WC provide convenient day-to-day living, while the main bedroom’s en-suite and additional family bathroom add practical comfort.
Externally the house sits on a decent plot with driveway parking for two and a single garage, plus a low-maintenance rear garden with decking—ideal for outdoor relaxing without intensive upkeep. Built between 2003–2006 and fitted with double glazing and gas central heating, the property is largely turn-key for a family buyer.
Location brings everyday convenience: close to the town centre, local amenities, college and leisure facilities, with excellent mobile signal and fast broadband. That makes the house suitable for home-working and family life, with good transport links nearby.
Be candid about the context: the wider area is classified as very deprived with higher-than-average crime levels and above-average council tax (Band E). Buyers should weigh the strong home specification and local convenience against these socio-economic factors when deciding to view.
4 bedroom detached house for sale in Blackwood, NP12 — £328,000 • 4 bed • 4 bath • 1311 ft²
4 bedroom detached house for sale in Blackwood, NP12 — £325,000 • 4 bed • 3 bath • 1259 ft²
4 bedroom detached house for sale in Clos Bronwydd, Ebbw Vale, NP23 — £335,000 • 4 bed • 2 bath • 1074 ft²
3 bedroom detached house for sale in Augusta Park, Victoria, Ebbw Vale, NP23 — £325,000 • 3 bed • 1 bath
3 bedroom detached house for sale in Carn-Y-Cefn, Ebbw Vale, NP23 — £259,700 • 3 bed • 2 bath • 1045 ft²
4 bedroom semi-detached house for sale in Cwm Braenar, Pontllanfraith, Blackwood, NP12 — £290,000 • 4 bed • 2 bath • 1346 ft²


















































































































